Prodej pozemku • 594 m² bez realitky, Durynsko
Tento prostorný a nesmírně pečlivě udržovaný pozemek o rozloze cca 594 m² vám nabízí ideální základ pro naplnění vašich zahradních snů či představ o soběstačnosti.
Na místě se nachází:
• Centrálně umístěný bungalov s přilehlou terasou
• Rozšíření ve formě chléva na nářadí a
• Další nástupní místnost pro úschovu zahradního nářadí
Okouzlující přírodní prostředí s krásnými starými jabloněmi a dalšími zdravými ovocnými stromy dodává pozemku jedinečný ráz, přičemž nabízí výhled až k Inselsbergu. Malý rybník s lekníny pak příznivcům přírody přináší skvělé možnosti k pozorování.
Elektrická přípojka je zajištěna. Připojení pitné vody zde není; majitelé namontovali v přilehlé přístavbě cisternu na nepitnou vodu.
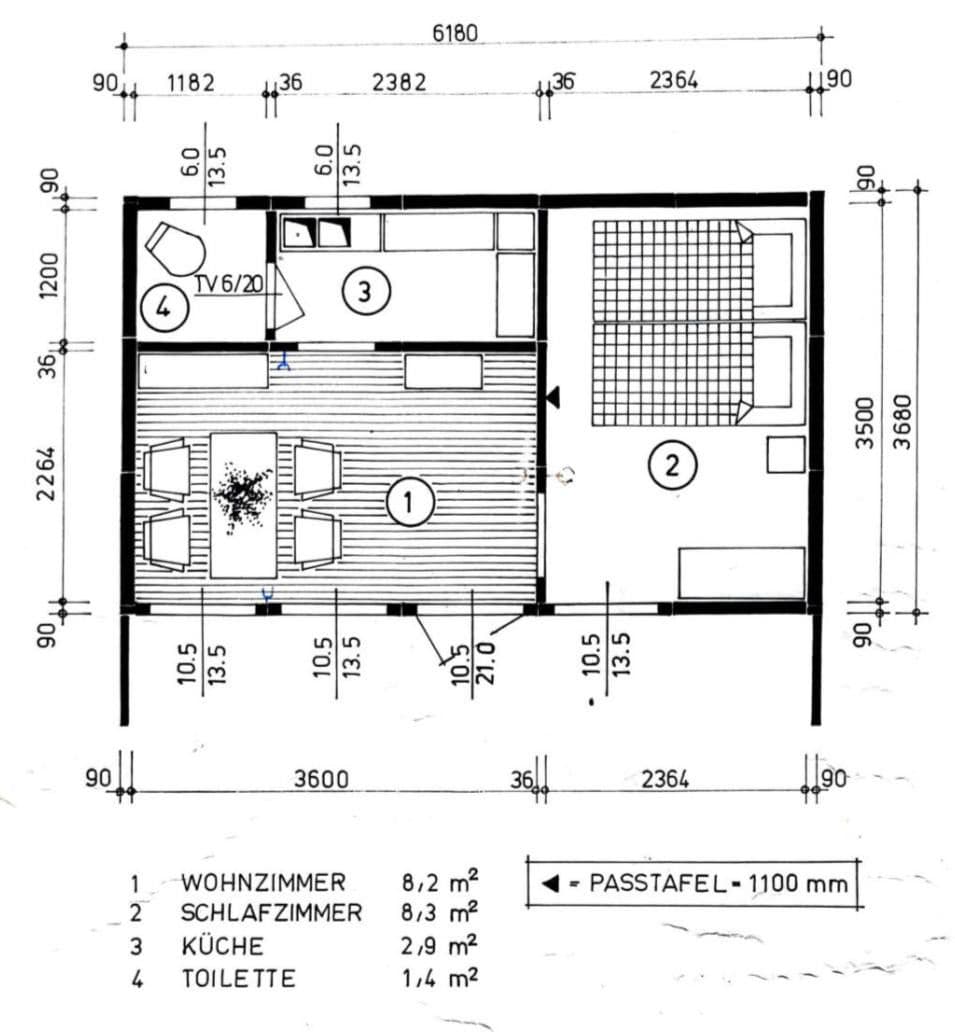
Bungalov se jedná o prefabrikovaný bungalov B22 z dob NDR (postavený v roce 1982) s následujícím uspořádáním místností:
• Obývací pokoj: 8,2 m²
• Ložnice: 8,3 m²
• Kuchyně: 2,9 m²
• Toaleta: 1,4 m²
Délka: 6,18 m
Šířka: 3,68 m
Výška místností: 2,43 m
Střecha byla v roce 2021 kompletně nově pokryta a izolována odbornou firmou – je k dispozici faktura na cca 11 000 €. Fasáda a dřevo byly pravidelně ošetřovány vysoce kvalitní ochranou. Díky vysokému základu je bungalov naprosto suchý.
Cena: k jednání.
Lokalita a okolí:
Lokalita je ideální pro ty, kteří hledají klid a zároveň oceňují blízkost Bad Berka, Weimaru a Erfurtu. Udržovaný pozemek je ohraničený a nachází se v velmi klidné oblasti na okraji vesnice i polí, zasazený do zeleného prostředí a přitom dobře dostupný – autobusová zastávka je dosažitelná pěšky. Parkovací místa pro 2 auta jsou k dispozici přímo na či u pozemku. Přístup na pozemek vede neasfaltovanou zemní cestou a je zabezpečen jednopříčkovou branou a dveřmi.
Důležitá upozornění:
• Upozorňujeme, že se jedná o rekreační zahradnický pozemek, nikoli stavební parcelu!
• Nemá vyznačené číslo popisné.
• Neposkytuje trvalé právo k bydlení.
• Přívod nepitné vody není mrazuvzdorný.
• Pozemek se stavbou je prodáván včetně vybavení a nářadí pro údržbu zahrady přímo od majitele, bez zprostředkování makléřem.
Parametry nemovitosti
| Dostupné od | 27. 3. 2026 |
|---|---|
| Plocha pozemku | 594 m² |
| Číslo inzerátu | 1005963 |
|---|---|
| Cena za jednotku | 0 € / m2 |
Co tato nemovitost nabízí?
V okolí nemovitosti najdete
Stále hledáte to pravé?
Nastavte si hlídacího psa. Nabídky vybrané na míru dostanete souhrnně 1× denně e-mailem. S Premium profilem máte k ruce hlídačů rovnou 5 a když se něco objeví, informují vás obratem.


















