Prodej domu 5+1 • 134 m² bez realitky, Hessen
, HessenMHD 3 minuty pěškyTato nemovitost je ideální pro páry, živnostníky nebo individualisty, kteří ocení městský život v historickém prostředí – a nepotřebují velkou zahradu ani komfort moderní výstavby.
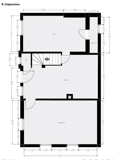
Tato polovina dvořanového domu s fachwerk (před rokem 1900) nabízí přibližně 134 m² obytné plochy s pěti pokoji a prostornou obytnou kuchyní vybavenou vestavěnou kuchyňskou linkou, která slouží jako centrální setkávací místo.
Otevřený jídelní kout vytváří příjemnou atmosféru. Samostatný prostorný obývací pokoj doplňuje přízemí.
V patře se nachází tři ložnice a koupelna s vanou.
Vytvoření další místnosti je snadno možné, například pro domácí kancelář nebo podobné využití.
Typické pro staré město jsou strmější schody a částečně nerovné podlahy – stavební zvláštnosti, které dodávají historickým domům jejich kouzlo. Vysoký sklep z přírodního pískovce nabízí praktický úložný prostor. Podkroví poskytuje prostorný úložný prostor a dodatečné možnosti využití.
V exteriéru se nachází dvůr s terasou, zahrada nebo parkovací místo u domu není k dispozici. Umístění však nabízí krátké vzdálenosti a rozvinutou infrastrukturu okresního města.
Technicky je dům v solidním stavu:
plynové vytápění z roku 2018, izolační okna, žádná ochrana památky.
Nemovitost je obzvláště vhodná pro kupce, kteří vědomě hledají charakterový dům v centrální městské lokalitě.
Máte-li o to zájem, neváhejte nás kontaktovat – rádi vás provedeme touto nemovitostí a zodpovíme všechny vaše dotazy.
Dietzenbach, okresní město v jižní oblasti Porýní-Faalského Porostu, spojuje městskou infrastrukturu s množstvím zeleně a krátkými cestami do Frankfurtu.
Staré město tvoří historické centrum a okouzluje svou vyvinutou atmosférou, klidnými obytnými ulicemi a příjemným sousedským prostředím.
Obchody, kavárny, školy, školky a lékaři jsou snadno dostupní pěšky.
Díky připojení na S-Bahn a rychlé dostupnosti dálnic A3 a A661 je centrum Frankfurtu dosažitelné během krátké doby.
Lokalita tak spojuje historickou atmosféru, dobrou dostupnost a vysokou kvalitu života.
Veškeré údaje vycházejí z předložených dokumentů.
I soukromí prodejci podléhají Nařízení GDPR. Poskytnutím vašich kontaktních údajů prostřednictvím tohoto portálu přenášíte osobní údaje. Tyto údaje jsou zpracovávány výhradně k vyřízení vašeho dotazu a provedení prodeje nemovitosti podle čl. 6 odst. 1 písm. b) GDPR. Předání dat proběhne jen v případě, kdy je to nezbytné k vyřízení smlouvy. Smazání dat proběhne po uplynutí účelu, pokud neexistují zákonné povinnosti k jejich uchovávání.
V okolí nemovitosti najdete
Stále hledáte to pravé?
Nastavte si hlídacího psa. Nabídky vybrané na míru dostanete souhrnně 1× denně e-mailem. S Premium profilem máte k ruce hlídačů rovnou 5 a když se něco objeví, informují vás obratem.



















