
Pronájem bytu 3+1 • 72 m² bez realitkyLoppengasse 21 A, , Bádensko-Württembersko
Loppengasse 21 A, , Bádensko-WürttemberskoMHD 3 minuty pěšky • ParkováníErstbezug nach Sanierung zum 01.06.26:
První bydlení po rekonstrukci od 01.06.2026: V klidné lokalitě nedaleko centra Nusslochu se bez provize nabízejí dva velmi pěkné, kompletně zrekonstruované byty s 72 resp. 32 čtverečními metry obytné plochy. Vaše nové bydlení má krásný, klidný balkon a bude vybaveno kvalitními, zdraví neškodnými materiály. Vybavení je na vysoké úrovni – zahrnuje dlaždice z precizního porcelánového kameniva, okna z masivního dřeva (částečně nová) a parkety.
Důležité: Fotografie pocházejí z již dokončených bytů v přední části objektu. Oba zde nabízené byty jsou momentálně v rekonstrukci.
Jako nájemce budou vybírány pouze osoby se stálým pracovním poměrem na plný úvazek, nebo s ručením. Depozit činí 3 měsíční nájmy bez zahrnutí provozních nákladů.
Smlouvy na elektřinu a internet uzavírají nájemci sami, protože tyto náklady nejsou zahrnuty v předplatném provozních nákladů.
Přehled dostupných bytů a nájmů bez zahrnutí provozních nákladů, elektřiny a internetu:
Byty v zadní části domu, zatím nedokončeně zrekonstruované, k dispozici od 15.05. nebo 01.06.2026
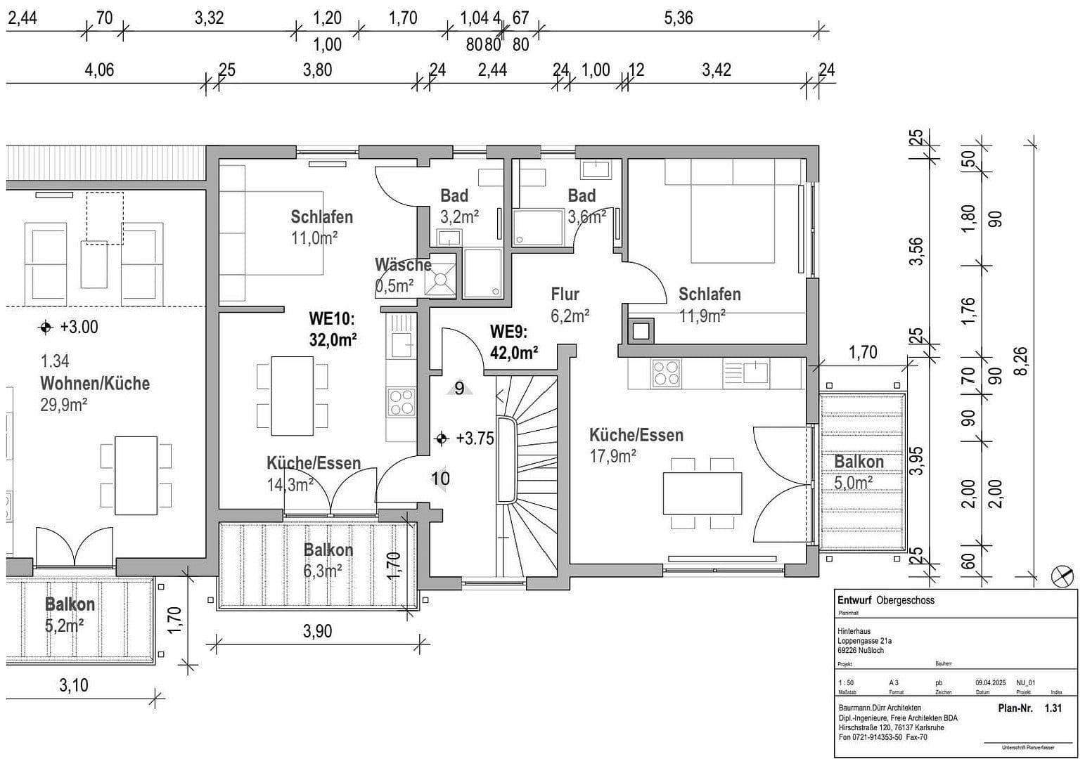
– Byt č. 8 v přízemí s přibližně 72 m² a balkonem, nájem činí 1030 EUR + provozní náklady, elektřina a internet. Předpokládaná dostupnost od 01.06.2026. Volitelně je k dispozici parkovací stání pro automobil za 70 EUR měsíčně.
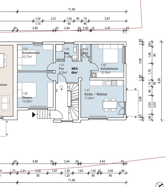
– Byt č. 10 v prvním patře s přibližně 32 m² a balkonem, nájem činí 560 EUR + provozní náklady, elektřina a internet. Předpokládaná dostupnost od 01.06.2026. Volitelně je k dispozici parkovací stání pro automobil za 70 EUR měsíčně.
Budova se nachází v bezprostřední blízkosti centra Nusslochu. Obchody, úřady, lékařské ordinace, veřejná doprava a školy jsou v bezprostředním okolí.
Vybavení je vysoce kvalitní – zahrnuje dlaždice z porcelánového kameniva, okna z masivního dřeva (částečně nové) a parkety. Stěny jsou hladce omítnuté a bíle natřené.
V okolí nemovitosti najdete
Stále hledáte to pravé?
Nastavte si hlídacího psa. Nabídky vybrané na míru dostanete souhrnně 1× denně e-mailem. S Premium profilem máte k ruce hlídačů rovnou 5 a když se něco objeví, informují vás obratem.














