
Prodej bytu 5+kk • 93 m² bez realitkyNa Valentince, Praha - Smíchov
Na Valentince, Praha - SmíchovVyužít program Bydlím hned, koupím později
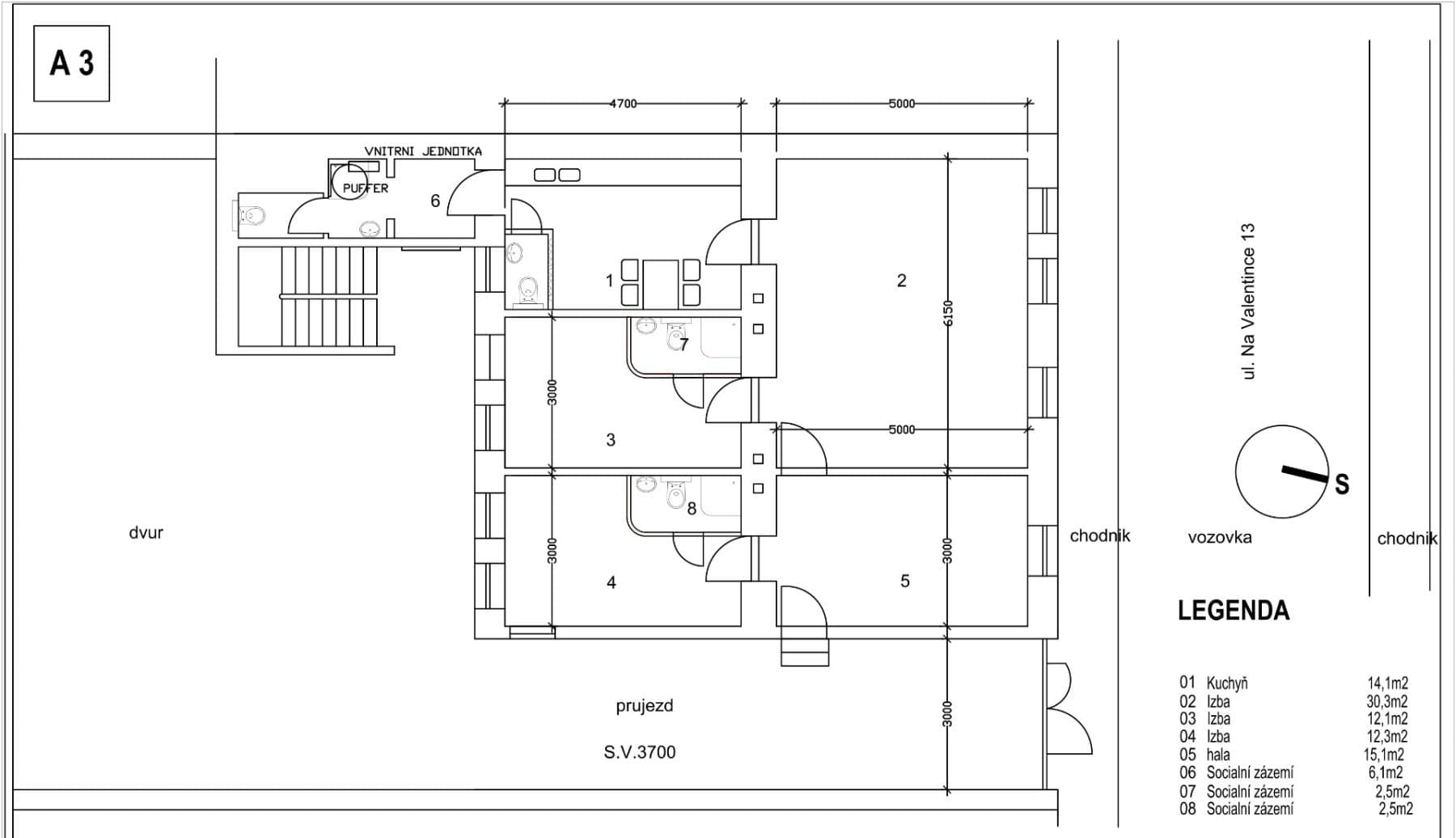
Prodej bytu/nebytové jednotky 5+kk, 92,6 m² – Praha 5, Smíchov, ul. Na Valentince 647/13
Nabízíme k prodeji bytovou / nebytovou jednotku o dispozici 5+kk a celkové užitné ploše 92,6 m², která se nachází v 1. nadzemním podlaží udržovaného domu v atraktivní lokalitě Praha 5 – Smíchov, ulice Na Valentince.
Jednotka je ve velmi udržovaném stavu a nabízí flexibilní využití – může sloužit jak k bydlení, tak například jako kancelář, ateliér nebo investiční nemovitost k pronájmu. Díky své dispozici poskytuje dostatek prostoru pro rodinné bydlení i pracovní zázemí.
V interiéru jsou plovoucí podlahy a dlažba, byt je vybaven novými dřevěnými okny, která zajišťují dobré světelné i tepelně-izolační vlastnosti. Jednotka je pronajata.
Velkou výhodou je výborná poloha v dynamicky se rozvíjející části Smíchova s kompletní občanskou vybaveností v docházkové vzdálenosti – obchody, restaurace, školy, služby i velmi dobrá dostupnost MHD.
Základní informace:
• Dispozice: 5+kk
• Užitná plocha: 92,6 m²
• Podlaží: 1. NP
• Stav: udržovaný
• Podlahy: plovoucí podlahy, dlažba
• Okna: nová dřevěná
• vytápění: vlastní elektrické
• Lokalita: Praha 5 – Smíchov, Na Valentince
• Oblast: rozvojová lokalita
Sale of Apartment/Commercial Unit 5+kk, 92.6 m² – Prague 5, Smíchov, Na Valentince 647/13
We offer for sale an apartment/commercial unit with a 5+kk layout and a total usable area of 92.6 m², located on the 1st floor of a well-maintained building in the attractive area of Prague 5 – Smíchov, on Na Valentince Street.
The unit is in very well-maintained condition and offers flexible use – it can serve as a residence as well as, for example, an office, studio, or investment property for rental. Its layout provides ample space for family living and work.
Inside, you will find floating floors and tiles. The apartment is equipped with new wooden windows that ensure excellent natural light and thermal insulation. The unit is currently rented.
A major advantage is its excellent location in the dynamically developing part of Smíchov, with complete civic amenities within walking distance – shops, restaurants, schools, services – and very good access to public transport.
Basic Information:
• Layout: 5+kk
• Usable Area: 92.6 m²
• Floor: 1st floor
• Condition: Well-maintained
• Floors: Floating floors, tiles
• Windows: New wooden
• Heating: Own electric system
• Location: Prague 5 – Smíchov, Na Valentince
• Area: Developing locality
Parametry nemovitosti
| Dostupné od | 29. 3. 2026 |
|---|---|
| Konstrukce budovy | Cihla |
| Vybaveno | Nevybaveno |
| Číslo inzerátu | 1006804 |
| PENB | G - Mimořádně nehospodárná |
| Užitná plocha | 93 m² |
| Cena za jednotku | 132 258,06 Kč / m2 |
| Stav | Po rekonstrukci |
|---|---|
| Dispozice | 5+kk |
| Podlaží | Přízemí |
| Vlastnictví | Osobní |
| Umístění | Centrum |
| Rizika | Prověřit » |
Vybíráte byt?
Mějte jistotu, že máte všechny důležité informace!
Co tato nemovitost nabízí?
| Bezbariérový přístup |
V okolí nemovitosti najdete
Využít program Bydlím hned, koupím později














