
Prodej bytu 3+1 • 80 m² bez realitky, Dolní Sasko
, Dolní SaskoMHD 2 minuty pěšky • Parkování • Garណít jako na venkově a přitom mít město na dosah: 79,8 m² – sklep – garáž – 15 minut do Wolfsburgu
Prodáváme bez provize téměř 80 m² velký byt v přízemí, který se nachází v hlavní budově bývalé farmy v historickém jádru obce Hoitlingen. Budova z roku 1953 byla v letech 2002/03 zrekonstruována a přeměněna na čtyři byty v osobním vlastnictví. Do společenství vlastníků té vzniklé budovy patří ještě jedna obytná jednotka, která se nachází v přilehlé budově.
Byt:
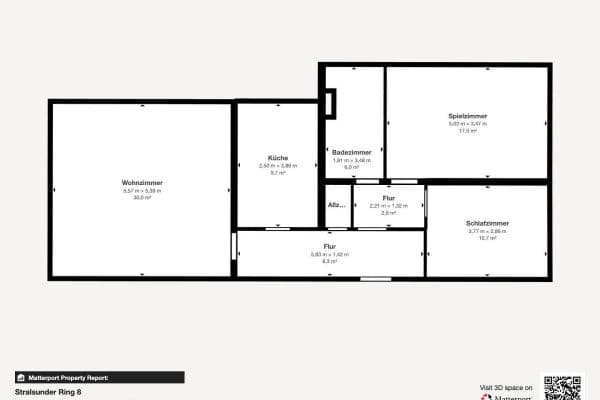
Vstup do budovy je dosažitelný po čtyřech schodech a slouží jako přístup do tří bytů tvořících společenství vlastníků. Přes společný chodek se dostanete do bytu, ze kterého vede velkou chodba se čtyřmi dveřmi do jednotlivých místností – koupelna a tři pokoje. Naproti bytovým dveřím se nachází koupelna. Největší místnost o rozloze 27 m² s jižní orientací je vybavena menší kuchyňskou linkou a nabízí prostor pro jídelní a obývací část. Rovněž na jih směřuje velký pokoj, který lze využít jako ložnici, dětský pokoj či pracovnu. Další místnost s oknem směřujícím na západ je vhodná jako ložnice.
K bytu náleží garáž umístěná vzadu za domem a velký sklep o rozloze 19 m². Sklep je přístupný ze západní strany budovy po venkovním schodišti.
Vytápění a měsíční poplatky:
• Plynové topení Buderus z roku 2003, bylo požádáno o budoucnost schválené a podle dolnonsaských požadavků na CO2-neutralitu do roku 2040 odpovídající využití teplého okolního prostředí (předpokládaně od roku 2027): Zápis z shromáždění vlastníků již existuje, potřebné investiční prostředky jsou k dispozici v rezervním fondu na údržbu.
• Měsíční poplatek: 200 € (voda, topení, včetně příspěvku do údržbového fondu)
• Energetický průkaz budovy bude při prohlídce předložen
Vesnice:
Hoitlingen patří k obci Tiddische, která je součástí společenství obcí Brome. Jedná se o přátelskou vesnici, jež si z velké části zachovala svůj původní charakter a má funkční společenství obyvatel. Zde se stále dodržují mnohé tradice a slaví se různé slavnosti, takže nově příchozí rychle najdou společnost.
Hoitlingerské děti obvykle navštěvují v Tiddische mateřskou školu a v Parsau základní školu.
Vzdálenosti:
3 km / 5 minut do Jembke (supermarket, lékárna, čerpací stanice)
8 km / 10 minut k dálnici A39
12 km / 16 minut do centra Wolfsburgu (City-Galerie)
Vybavení:
• Okna: plastová, dvojitě zasklená z roku 2003, v ložnici trojitě zasklená (2025), v každé místnosti výklopné okno, žaluzie
• Podlahy: dlaždice v chodbě a koupelně, v ostatních místnostech laminát z různých let
• Koupelna: vana a sprchový kout (z roku 2003) a připojení pro pračku
• Vestavěná kuchyň od IKEA (2009) s varnou deskou a plotýnkami (málokdy používaná) a myčkou na nádobí. Lednice se pravděpodobně neprodává.
• Ložnice: bílá posuvná skříň (3 m, IKEA PAX) se prodává, další nábytek lze převzít po domluvě
Možnost pro velké rodiny nebo více generací:
Místnosti nabízeného bytu momentálně využíváme pouze jako pracovní a hostinské prostory, neboť naše ostatní obytné prostory se nacházejí v přilehlém mězonetovém bytě, který je rovněž k prodeji – při pořízení obou bytů dohromady vznikne obytná plocha o rozloze přibližně 200 m² rozprostřená na třech patrech. Obě jednotky lze propojit vnitřním schodištěm, což je zajímavé například pro rodiny s velkými nároky na prostor, nebo je lze využít odděleně, například pro velkou rodinu, kde pod jednou střechou žije několik generací.













