
Prodej bytu 4+1 • 98 m² bez realitkyAllerseeweg 14, , Bavorsko
Ušetříte 11 780 eur na provizi makléře!
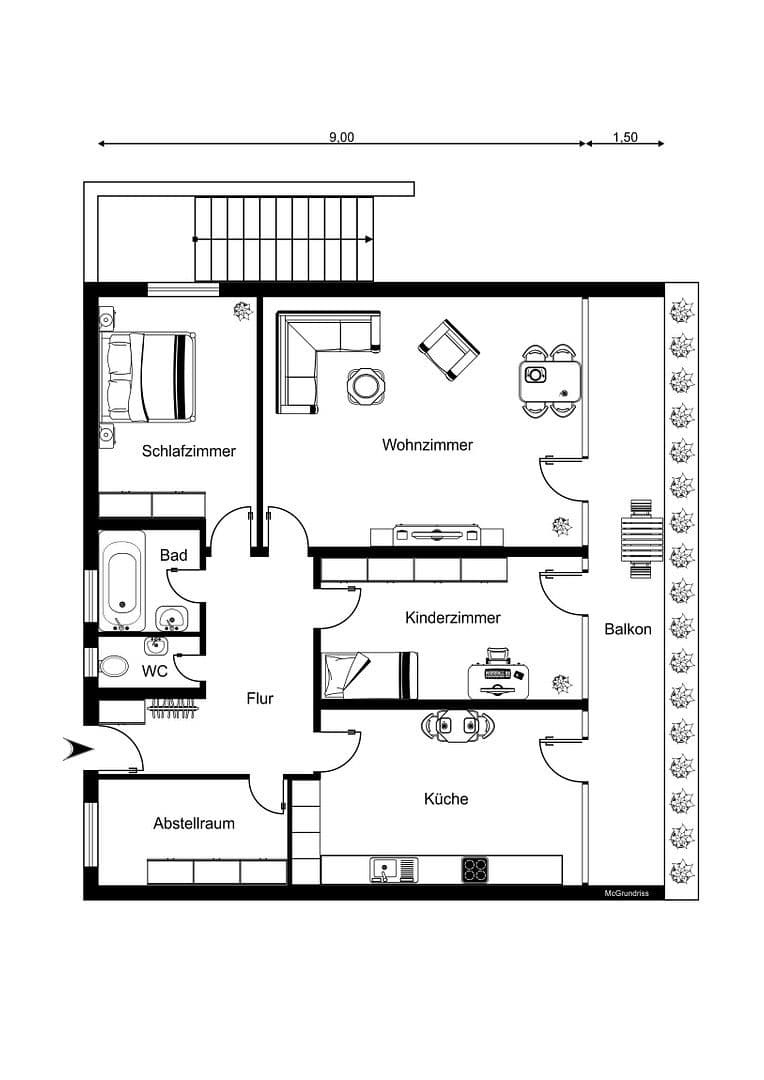
V žádané rezidenční lokalitě Höchberg Hexenbruch u Würzburgu se nachází tento prostorný, bezbariérový přízemní byt. Jednotka byla původně plánována jako 4-pokojový byt, avšak nakonec byla realizována jako 3-pokojový varianta. Tím vznikl zvláště otevřený, světlý pocit prostoru s nadprůměrně velkými obytnými částmi. V případě potřeby může být byt opět využit jako 4-pokojový: Ve skladovací místnosti jsou již připraveny připojení kuchyně, protože tam se původně nacházela kuchyň. Současná kuchyň byla původně plánována jako ložnice a může být opět tak využita. Tímto způsobem nabízí byt flexibilní využití jako 3- nebo 4-pokojový – v závislosti na životní situaci.
Rozložení prostor a přednosti:
Již při vstupu do bytu zaujme prostorný vstupní prostor s velkorysým úložným prostorem a spoustou místa na uskladnění – což je v porovnání s podobnými objekty vzácnost.
Obývací pokoj, kuchyň i dětský pokoj mají každá jednu stěnu zcela vyplněnou okny od podlahy až ke stropu. Tato okna nejenže zajišťují vynikající světelné podmínky, ale také umožňují přímý vstup na velký, střešně krytý balkon.
Balkon se nachází po straně domu, je příjemně klidný a nabízí výhled do zeleně – ideální pro relaxační chvíle venku s vysokou mírou soukromí.
Sanitární vybavení:
• Samostatná toaleta s denním světlem
• Koupelna s vanou a denním světlem
Oba prostory mají výhodu přirozeného osvětlení a větrání.
Stav a vybavení:
Byt byl zrenovován a prezentuje se ve velmi udržovaném stavu. Částečné zařízené vybavení je zahrnuto v kupní ceně, což je zvláště zajímavé pro investory nebo vlastníky s krátkodobou potřebou nastěhování.
Poloha v přízemí umožňuje zcela bezbariérový přístup – komfortní pro všechny věkové kategorie.
Parkovací stání (volitelně):
• Parkovací místo na povrchu: 10 000 €
• Parkovací místo v podzemní garáži: 15 000 €
Obě parkovací místa lze volitelně zakoupit dodatečně.
Allerseeweg 14 Höchberg. Byt se nachází v žádané rezidenční lokalitě Höchberg–Hexenbruch u Würzburgu – jedné z nejvyhledávanějších a nejprestižnějších rezidenčních oblastí v okolí Würzburgu. Okolí se vyznačuje udržovanou zástavbou, příjemným sousedstvím a množstvím zeleně. Obchodní možnosti, mateřská škola, školy a další zařízení každodenní potřeby jsou snadno dosažitelné. Výborné spojení s Würzburkem a rychlý přístup na dálnici. Kombinace klidného bydlení, dobré infrastruktury a přírodního okolí činí tuto lokalitu zvláště atraktivní.
V okolí nemovitosti najdete
Stále hledáte to pravé?
Nastavte si hlídacího psa. Nabídky vybrané na míru dostanete souhrnně 1× denně e-mailem. S Premium profilem máte k ruce hlídačů rovnou 5 a když se něco objeví, informují vás obratem.




















