Pronájem domu 3+1 • 80 m² bez realitky, Bavorsko
, BavorskoMHD 2 minuty pěšky**** POZOR, PROSÍM PŘEČTĚTE !!! ****
POKUD MÁTE ZÁJEM O DŮM:
Napište mi přes kontaktní formulář následující:
- Kolik osob bude dům obývat?
- Co a kde pracujete?
- Máte záznamy o špatné platební morálce?
- Jaká domácí zvířata máte?
- Od kdy se chcete nastěhovat?
Prosím, uveďte své mobilní číslo!
************************
Můžete se nastěhovat ihned: Tento krásný a pevný řadový dům byl postaven v roce 1989. Dům se nachází v klidném prostředí Bruckbergu.
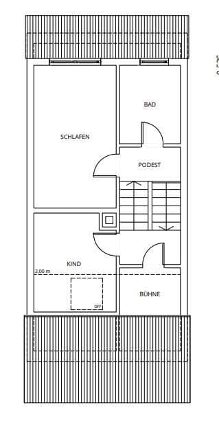
V přízemí se nachází několik místností a moderní koupelna pro hosty s toaletou a sprchou, stejně jako prostorný obývací pokoj. V suterénu se nachází moderní kuchyně s jídelnou. Odtud se dostanete přímo na nádhernou slunečnou terasu a do zahrady. Tato klidná slunečná terasa je ideální pro grilování a užívání si slunce. V horním patře se nachází tři ložnice, velká a moderní koupelna se sprchou a toaletou.
Bude k dispozici nová kuchyň.
Dům stojí prázdný a je ihned k dispozici.
K řadovému domu patří garáž, která se nachází nedaleko domu.
Dům je vytápěn moderním olejovým topením.
Energetický štítek je momentálně ve výrobě.
Dotazy realitních makléřů nejsou výslovně vítány a nebudou zodpovězeny.
V okolí nemovitosti najdete
Stále hledáte to pravé?
Nastavte si hlídacího psa. Nabídky vybrané na míru dostanete souhrnně 1× denně e-mailem. S Premium profilem máte k ruce hlídačů rovnou 5 a když se něco objeví, informují vás obratem.















