Prodej bytu 3+1 • 103 m² bez realitkyObinger Str. 1A Eggstätt Eggstätt Bayern 83125
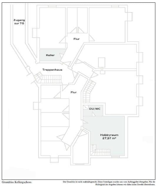
Tento půvabný byt se nachází v mimořádně udržovaném bytovém domě na klidném místě. Exkluzivní dojem pokračuje i v interiéru osmipokojového domu s podzemní garáží. V přízemí se byt dělí na dvě ložnice, koupelnu, toaletu pro hosty, halu a chodbu, dále na samostatnou kuchyň a prostorný obývací s jídelním prostorem. Na jižní a západní stranu obklopují prostory vlastní zahrádkový podíl a terasa. Bílé okenní rámy s křídlovými skly, bílé vnitřní dveře a bytová vlastní bílá lakovaná dřevěná schodiště vedoucí do suterénu podtrhují přátelský, světlý charakter bytu. Zastavěná plocha v suterénu o rozloze cca 28 m² je do údajů o obytné ploše zahrnuta pro 14 m². Tento prostor má světlou výšku 2,36 m a okno se svahováním o rozloze přibližně 1,34 m² v rámci zdiva. Z obývacího pokoje vedou velké francouzské dveře do zahrady upravené ve stylu parku. V kupní cenu je již zahrnuto jedno venkovní parkovací místo a dvě místa v podzemní garáži (každé v hodnotě 25 000 EUR). Byt je prodáván kompletně jako balíček včetně parkovacích míst.
Pět kilometrů severozápadně od Chiemsee se, mezi mírnými kopci a řadou jezer, rozkládá obec Eggstätt. Eggstätter-Hemhofer Seenplatte je celou pýchou Eggstättu, neboť náleží k nejstarší chráněné oblasti Baverska (1939). Už před 100 lety objevili první „Sommerfrischler“ kouzlo tohoto místa. Okouzlující turistické a cyklistické stezky vedou skrze úchvatnou a jedinečnou krajinu jezer. Řada kulturních a zábavných akcí v Eggstättu a okolí zve: v Domě hosta nebo na jiných kulturních místech se po celý rok koná pestrý program – od Hoagascht až po večer věnovaný domovským tradicím, od komorních koncertů po pouliční vystoupení, od venkovského divadla po slavnosti v lese. Pro aktivní volnočasové aktivity nabízejí Chiemsee i Eggstätter Seenplatte ideální podmínky pro koupání a plachtění. Turistika, lezení, cyklistika a všechny varianty zimních sportů jsou zajištěny nedalekými Chiemgau Alpami. I milovníci golfu a jezdectví jsou v blízkém okolí spokojeni. V bezprostřední blízkosti se nachází Bad Endorf (8 km), Prien am Chiemsee (10 km) a Rosenheim i Traunstein (každý 23 km). V Bad Endorfu naleznete vlakové spojení jak směrem na Mnichov, tak i do Salcburku. Obec dále nabízí nákupní možnosti, školky i základní školu. Všechny střední školy se nacházejí v Prien am Chiemsee, Traunsteinu a Rosenheimu. Letiště v Salcburku je dosažitelné za cca 40 minut a mnichovské letiště za cca 90 minut. Eggstätt je kouzelná obec s bavorskou atmosférou a opravdovou pohostinností.
V posledních letech v bytě proběhly následující rekonstrukční práce: dubový parketový podlahový kryt v obývacím pokoji a chodbě a nová kvalitní vestavěná kuchyně (ta je zahrnuta v kupní ceně).
V okolí nemovitosti najdete
Stále hledáte to pravé?
Nastavte si hlídacího psa. Nabídky vybrané na míru dostanete souhrnně 1× denně e-mailem. S Premium profilem máte k ruce hlídačů rovnou 5 a když se něco objeví, informují vás obratem.












