Prodej bytu 5+kk • 99 m² bez realitky, Bádensko-Württembersko
Jedná se o samostatně stojící dvojrodinný dům s plným sklepem v klidné rezidenční oblasti. K prodeji jsou nabízeny prostory v přízemí a suterénu s celkovou užitnou plochou přibližně 169 m².
Přízemí má užitnou plochu přibližně 98 m². Dalších asi 46 m² bylo v suterénu přestavěno na obytné prostory. K dalšímu využití slouží také dodatečný sklepní pokoj a úložný prostor ve sklepě. V přízemí se nachází obývací pokoj, ložnice, dětský pokoj, samostatné WC, koupelna se sprchou/toaletou, kuchyň s velkorysě zařízenou vestavěnou kuchyní, jídelna s přímým vstupem na terasu u zahrady se sluneční markýzou a krásnou zahradou o rozloze přibližně 600 m² orientovanou na jihozápad, vybavenou sprinklerovým systémem pro výhradní využití a úspornou dešťovou nádrží. Samostatně přístupný suterén byl přestavěn na obytný/ložnicový prostor, jídelnu s kuchyní a koupelnu s toaletou.
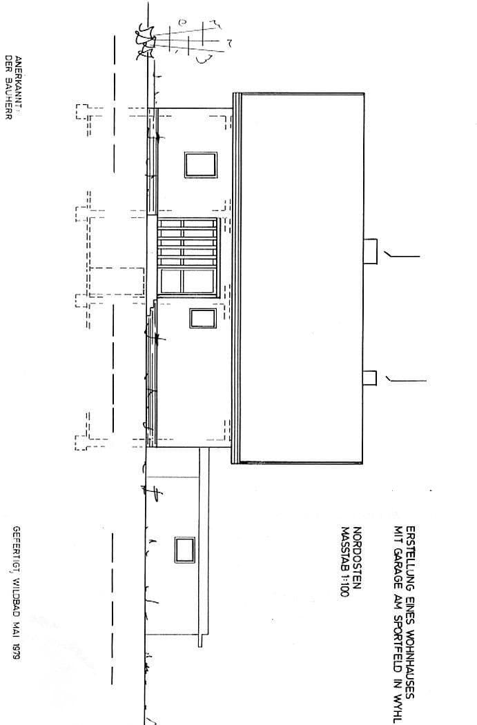
Dále k prodejnímu objektu náleží dvojgaráž s sedlovou střechou, která může sloužit jako další skladovací prostor, 2 parkovací stání pro osobní vozy před dvojgaráží, 2 další venkovní parkovací stání a jedno kryté parkovací stání. Pod krytým prostorem lze rovněž využít i úložný prostor pro jízdní kola.
V Rheinebene u severního Kaiserstuhu, mezi Černým lesem a Vosges, se nachází atraktivní obec Wyhl s více než 4 000 obyvateli. Wyhl disponuje dobrou infrastrukturou (školy, školky, lékaři, obchody s denními potřebami a spojení s veřejnou dopravou). Napojení na silnici L113 umožňuje výhodné spojení s dálnicovým uzlem A5, který se nachází přibližně 10 km vzdálen.
Moderní sportovní a volnočasové centrum nabízí řadu sportovních volnočasových aktivit. Nedaleký Rheinauewald se svým původním stromovým porostem poskytuje turistům a milovníkům přírody klid a možnosti k odpočinku.
Pozemek se nachází v rozvinuté čistě rezidenční oblasti.
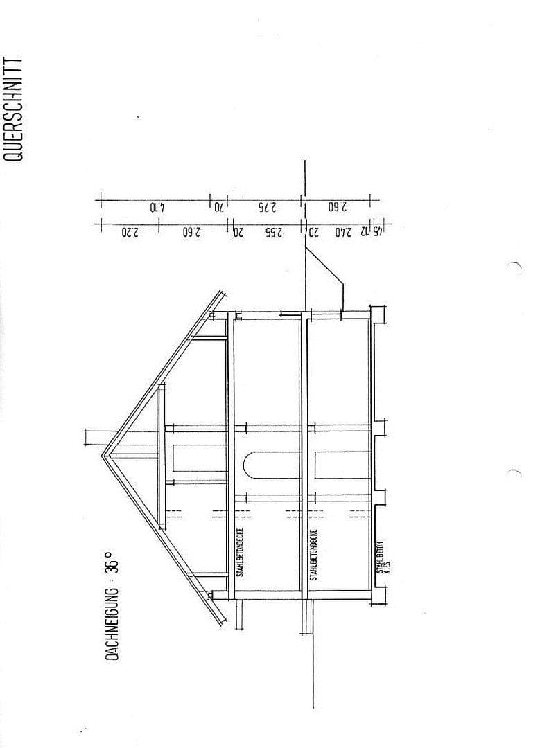
Rok výstavby: 1981
V roce 1996 byl rozsáhle modernizován.
Topení: centrální olejové vytápění (značka Weisshaupt) z roku 2002
Okna a vstupní dveře byly v roce 2013 vyměněny
Švédský kamna
Vestavěná kuchyň
Dešťová nádrž
Sedlová střecha (rok výstavby 2018) u dvojgaráže, která může být využita jako další skladovací prostor.
V okolí nemovitosti najdete
Stále hledáte to pravé?
Nastavte si hlídacího psa. Nabídky vybrané na míru dostanete souhrnně 1× denně e-mailem. S Premium profilem máte k ruce hlídačů rovnou 5 a když se něco objeví, informují vás obratem.















