Prodej pozemku • 1000 m² bez realitky, Dolní Sasko
, Dolní SaskoMHD 8 minut pěškyZde je překlad textu do češtiny:
• Přímý kontakt: Dieter Büge 01728118000
• Pro soukromé kupce bez provize! Pro obchodní kupce, kteří chtějí například postavit vícebytový dům (již jsou k dispozici první zájemci o pronájem), 3 % navíc k 19 % DPH.
Tvůj stavební pozemek se nachází v exkluzivní novostavbě na jedinečné pozici u jezera kategorie 1a!
• Tyto atraktivní pozemky (např. č. popisný 21) lze zakoupit včetně městské vily jako rozšiřovací dům – viz https://www.allkauf-ausbauhaus.de/de/haeuser/hausserie/city-villa/city-villa-4 – již od 595 000 EUR.
V ceně této městské vily (kupní cena od 355 999 € jako rozšiřovací dům) s plochou 250 m² jsou zahrnuty:
– služby architekta,
– stavební bezpečnostní balíček,
– balíček pro topné zařízení a elektroinstalaci,
– trojitě zasklená okna včetně hliníkových rolet,
– vzduch-voda tepelná čerpadla,
– schody z masivního dřeva,
– podlahové krytiny a tapety,
– měření vzduchotěsnosti,
– světlá výška místnosti 2,75 m,
– izolační a krycí balíček,
– domácí technika včetně potrubí,
– řízený ventilační systém s rekuperací tepla,
– sanitární zařízení,
– interiérové dveře, obklady a dlaždice,
– zásuvky.
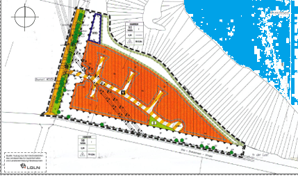
• Pouze jen několik pozemků pro rodinné domy, dvojdomky a vícebytové domy je k dispozici.
Nejexkluzivnější novostavba v Hemmooru s výhledem na jezero je vzdálena pouhých několik minut autem či na kole od centra Hemmooru (okres Cuxhaven).
• Zajisti si co nejdříve své kousnutí, protože již nebude vyhlašováno ani schvalováno žádné nové území s výhledem na jezero!
Počet pozemků je omezen na 18.
• 9 volných pozemků pro soukromou výstavbu rodinných domů (viz WA 1): 839 až 1 990 m².
Jednodomky a dvojdomky, jednopodlažní (+ přístavba) až do výšky štítu 8,50 m.
• Pozemky pro jednopodlažní a vícebytové domy (WA2, WA3) od 1 000 m².
Výška štítu: u WA2 10 m a u WA3 11,50 m se 2 či 3 plnými podlažími.
Koeficient zastavění (GFZ): 0,4.
• Zažij již brzy to privilegium a kouzlo dechberoucího panoramatického výhledu na krystalicky čisté jezero Kreidesee, který si můžeš vychutnat jako náročný majitel luxusní nemovitosti nebo jako nájemce exkluzivního bytu v nejlepší lokalitě!
• Postav si podle svých představ vysněný dům ve stylu Bauhaus, městskou vilu, dvojdomek nebo jako developer či investor vícebytový dům na prostorném pozemku o rozloze 810–1 990 m², případně na pozemku od 1 000 m²!
Stavební pozemky v první linii u jezera mohou hostit jednopodlažní, dvoupodlažní a dvojdomky s 1 plným podlažím + 1 přístavbou s výškou budovy až 8,50 m, zatímco pozemky pro rodinné a vícebytové domy v druhé řadě lze zastavit 2–3 podlažími do výšky 10 m resp. 11,50 m.
• Pokud hledáš jako soukromý či obchodní kupující pozemek na centrálním a klidném místě u jezera první třídy, měl bys co nejdříve domluvit prohlídku! K dispozici je jen několik pozemků!
Poznámka: Další stavební pozemky v této lokalitě u jezera již nebudou schváleny.
• Kontaktní osobou pro nájemce, soukromé i obchodní kupce je Dieter Büge.
Telefonická dostupnost denně (včetně soboty a neděle) od 9:30 do 20:00!
Telefon: 01728118000
E-mail: info@win-marketing.de
Internet: www.wain-marketing.de
Exkluzivní prodej / kontaktní osoba: Dieter Büge – realitní makléř a odhadce
• WIN-MARKETING, vlastník Dieter Büge – exkluzivní prodej pozemků a nemovitostí od roku 1992!
• Těšíme se, že vás od začátku provedeme hledáním stavebního pozemku, jako kupce domu nebo bytu či jako nájemce bytu a doprovodíme vás při realizaci vašeho projektu.
• Jezero Kreidesee se nachází ve Spodním Saska, v okrese Cuxhaven. Jezero se nachází v západní části města Hemmoor-Warstade.
Objevte Hemmoor – idylickou oázu na západním břehu řeky Oste v malebném okrese Cuxhaven, Spodní Sasko!
Toto půvabné městečko, obklopené nedotčenou přírodou, vám nabízí nejen vysokou kvalitu života, ale také ideální lokalitu pro váš nový domov.
• Jen kousek od oblíbeného jezera Kreidesee se nachází asi 1 000 m² pozemek s jedinečným panoramatickým výhledem na jezero, ideální pro milovníky přírody a volnočasových aktivit.
Jezero Kreidesee není pouze vyhledávaným lokalitou pro potápění, ale také místem odpočinku a relaxace – zde si můžete odpočinout a užívat krásy přírody.
• S přibližně 8 700 obyvateli nabízí Hemmoor srdečnou komunitu a příjemné životní prostředí.
Město se nachází strategicky výhodně mezi Stadem a okresním městem Cuxhaven, a je tak ideálním výchozím bodem pro výlety do okolí.
• Centrum Hemmooru, vzdálené pouze cca 3 000 m, vám poskytne řadu obchodních možností.
V bezprostřední blízkosti najdete lékaře, autobusové zastávky, mateřskou školu a všechny úrovně škol.
Všechno, co potřebujete pro běžný život, je pohodlně a rychle dostupné.
• Díky napojení na silnici B73 máte rychlý přístup do měst Cuxhaven (cca 45 km), Stade (cca 30 km), Bremerhaven (cca 55 km) a Hamburk (cca 83 km).
Nádraží v Hemmooru je dosažitelné za pouhých 15 minut autobusem nebo na kole a nabízí výborné spojení s veřejnou dopravou.
• Využijte příležitosti stát se součástí tohoto půvabného maloměsta a naplňte si sen o vlastním bydlení v Hemmooru – místě, kde se snoubí kvalita života, příroda a komunita!
________________________________________
Informace dle § 5 TMG
WIN-MARKETING, vlastník Dieter Büge
Obor podnikání: DBI – DIETER BÜGE NEMOVITOSTI
Licence podle § 34c GewO.
Adresa:
Süderende 12
D – 21782 Bülkau
Kontakt D/A/CH:
info(at)win-marketing.de
https://www.win-marketing.de
Telefon: 0172/8118000
Identifikační číslo DPH dle §27a zákona o DPH: DE204939419
________________________________________
Řešení sporů:
Evropská komise poskytuje platformu pro online řešení sporů (OS): https://ec.europa.eu/consumers/odr.
Naši e-mailovou adresu naleznete výše v kontaktu.
Nejsme připraveni ani povinni se účastnit řízení o řešení sporů před spotřebitelským orgánem.
________________________________________
Odpovědnost za obsah:
Jako poskytovatelé služeb neseme odpovědnost za vlastní obsah na těchto stránkách dle § 7 odst. 1 TMG a podle obecných zákonů. Podle §§ 8 až 10 TMG však nejsme povinni sledovat nebo vyhledávat oznámení o cizím obsahu, pokud neexistují konkrétní indicie o nezákonné činnosti.
Závazky odstranit nebo zablokovat použití informací podle všeobecných zákonů zůstávají nedotčeny. Jakákoli odpovědnost v této souvislosti nastává až od okamžiku, kdy se dočkáme oznámení o konkrétním porušení zákona. Jakmile se o takovém porušení dozvíme, tyto informace okamžitě odstraníme.
________________________________________
Odpovědnost za odkazy:
Naše nabídka obsahuje odkazy na externí webové stránky třetích stran, nad jejichž obsahem nemáme žádnou kontrolu. Proto nemůžeme nést odpovědnost za jejich obsah. Za obsah odkazovaných stránek vždy odpovídá příslušný poskytovatel či provozovatel. Odkazy byly ke dni vložení ověřeny na případná porušení zákona – nezákonné obsahy nebyly při odkazu rozpoznatelné.
Trvalá kontrola obsahu odkazovaných stránek však není rozumná bez konkrétních indicie porušení zákona. Jakmile se o porušení dozvíme, takové odkazy okamžitě odstraníme.
________________________________________
Autorská práva:
Obsahy a díla vytvořená provozovateli těchto stránek podléhají německému autorskému zákonu. Kopírování, úpravy, distribuce i jakékoliv jiné využití mimo hranice autorských práv vyžadují písemný souhlas příslušného autora či tvůrce. Stahování a kopírování těchto stránek je dovoleno pouze pro soukromé, nekomerční účely.
Pokud obsah na této stránce nebyl vytvořen provozovatelem, budou respektována autorská práva třetích stran, přičemž tyto obsahy budou odpovídajícím způsobem označeny. Pokud si přesto všimnete porušení autorských práv, kontaktujte nás prosím, abychom situaci mohli neprodleně napravit.
Parametry nemovitosti
| Dostupné od | 5. 4. 2026 |
|---|---|
| Plocha pozemku | 1 000 m² |
| Číslo inzerátu | 1007078 |
|---|---|
| Cena za jednotku | 170 € / m2 |
Co tato nemovitost nabízí?
| MHD 8 minut pěšky |
V okolí nemovitosti najdete
Stále hledáte to pravé?
Nastavte si hlídacího psa. Nabídky vybrané na míru dostanete souhrnně 1× denně e-mailem. S Premium profilem máte k ruce hlídačů rovnou 5 a když se něco objeví, informují vás obratem.
























