Prodej domu 6+1 • 120 m² bez realitkyHauptstr. 80, , Severní Porýní-Vestfálsko
Hauptstr. 80, , Severní Porýní-VestfálskoMHD 4 minuty pěškyAtraktivní rodinný dům pro 2 rodiny v Niederkrüchten Elmpt, Hauptstr. 80, PSČ 41372, k prodeji od soukromé osoby. Dům je momentálně pronajatý, lze jej však využít jako rodinný dům nebo jako investici – 2 rodinný dům s okamžitými příjmy.
Přes společný vstup do domu vstoupíte:
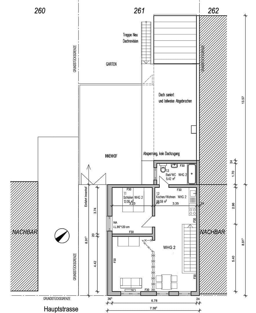
1. do moderní, světlé a kvalitně zrenovované přízemní bytu s terasou (rekonstruovaný v roce 2014), o přibližně 60 m². Nachází se zde ložnice s trojitým zasklením a elektrickými rolety, obývací pokoj s elektrickými rolety a přípojkou pro krb, 2 satelitní přípojky, velká kuchyňsko-jídelna (s LED stropními svítidly) s přístupem na vnitřní dvůr s terasou o cca 47 m², vnitřní dvůr s oddělenou bránou, samostatná technická místnost s vchodem z terasy, vybavená plošinou pro pračku a sušičku, umyvadlem, pisoárem a toaletou, malý sklad vedle kuchyně s klenutým sklepem pro uskladnění vína, světlá koupelna s bezbariérovou sprchou, toaletou, umyvadlem se zrcadlem a ručníkovým radiátorem (opět s LED stropními svítidly). Všechny místnosti jsou nově obklazeny, topení a ohřev vody probíhají pomocí nového plynového kondenzačního kotle, všechny dveře, stropy i stěny jsou bílé.
2. do bytu v patře, o přibližně 63 m² obytné plochy, kompletně zrenovovaného v roce 2014, vše v bílé barvě, všechna plastová okna mají dvoj- nebo trojsklo. K bytu patří velká slunná střešní terasa o cca 45 m² s přístupovými schody do zahrady. Nachází se zde ložnice o rozloze 16 m², obývací-jídelna s otevřenou vestavěnou kuchyní, vestavěná LED stropní svítidla. Výjimečná atmosféra domova je umocněna krbovým kamenem v obývacím pokoji. Dále je zde světlá, moderní koupelna s sprchou, toaletou, ručníkovým radiátorem a prostorem pro pračku, designové umyvadlo s podskříní, zrcadlem a osvícením, stropní LED svítidla. Podkroví bylo v roce 2025 zatepleno a slouží jako skladovací prostor. Lze jej rovněž dále rozšířit na přibližně 40 m². Slunná zahrada o rozloze cca 300 m² zahrnuje prostor pro párty, sklad a kůlnu.
Celková obytná plocha domu: 151 m²
Energetické zateplení fasády a zateplení stropu podkroví proběhlo v roce 2025 a 2026.
Rok výstavby domu: 1966, kompletní rekonstrukce v roce 2010. Nové centrální plynové topení bylo instalováno v roce 2010 v podkroví, energetický průkaz – průkaz spotřeby z 7/2025, 84,9 kWh/m²·rok. Roční údržba topení.
Samostatné elektroměry, měřiče vody a měřiče tepelné energie.
Zastavěná plocha pozemku: 470 m²
Čisté nájemné z přízemí: 838 €; čisté nájemné z patra: 720 €; roční celkové příjmy: 18 696 € – současný výnos cca 6,35 %.
Pevná cena: 295 000 €
Prosíme o zaslání poptávky s uvedením jména, adresy, telefonního čísla a e-mailové adresy.
Prohlídka je možná až po doložení bonity (kapitálovědnost nebo potvrzení o financování)!
Dopravní spojení je komfortní a umožňuje rychlý přístup do okolních měst. Po dálnici A52 se za krátkou dobu dostanete do měst Mönchengladbach, Düsseldorf nebo do Roermondu v Nizozemsku.
Dvě expresní autobusové linky do Mönchengladbachu nebo do okresního města Viersen vás dovezou na místo během půl hodiny. Dále je k dispozici dobré spojení na letiště Düsseldorf a Weeze.
V přibližné vzdálenosti 500 m se nachází mateřská škola, další jsou vzdálená asi 1,5 km. Základní škola se nachází ve vzdálenosti 2,1 km.
Střední školy se pak nacházejí v Brüggen (3,9 km), Niederkrüchten (6,9 km) a Waldniel (12 km).
Velké nákupní centrum, v jehož bezprostřední blízkosti (cca 3 km) najdete například obchody Rossmann, Aldi, Edeka, Lidl, nápojový obchod, pekárnu atd., se nachází nedaleko.
Ve městě samotném i v okolí je dostatek restaurací zmíněných měst.
Dále je zde kalendář kulturních akcí a přírodní park Schwalm-Nette.
Prosíme makléře, aby se neozývali.
Bez doložení bonity nebude prohlídka možná!!!
Nezajímáme se o "krádeže času" ani o turistiku za prohlídkami.
V okolí nemovitosti najdete
Stále hledáte to pravé?
Nastavte si hlídacího psa. Nabídky vybrané na míru dostanete souhrnně 1× denně e-mailem. S Premium profilem máte k ruce hlídačů rovnou 5 a když se něco objeví, informují vás obratem.













































