Prodej domu 5+1 • 137 m² bez realitky, Braniborsko
Tento upravený řadový dům z roku 2002 nabízí přibližně 137 m² obytné plochy ve třech patrech s dostatkem prostoru pro celou rodinu. Pět pokojů je chytře rozmístěno do přízemí, nadpodlaží a plně zrekonstruovaného podkroví.
V přízemí vás uvítá světlý obývací a jídelní prostor s přímým přístupem na terasu orientovanou na jihozápad. Samostatná kuchyň je plně vybavená a je zahrnuta v kupní ceně. Přízemí dále zahrnuje koupelnu se sprchou, praktickou komoru a chodbu s půvabnými dřevěnými schody.
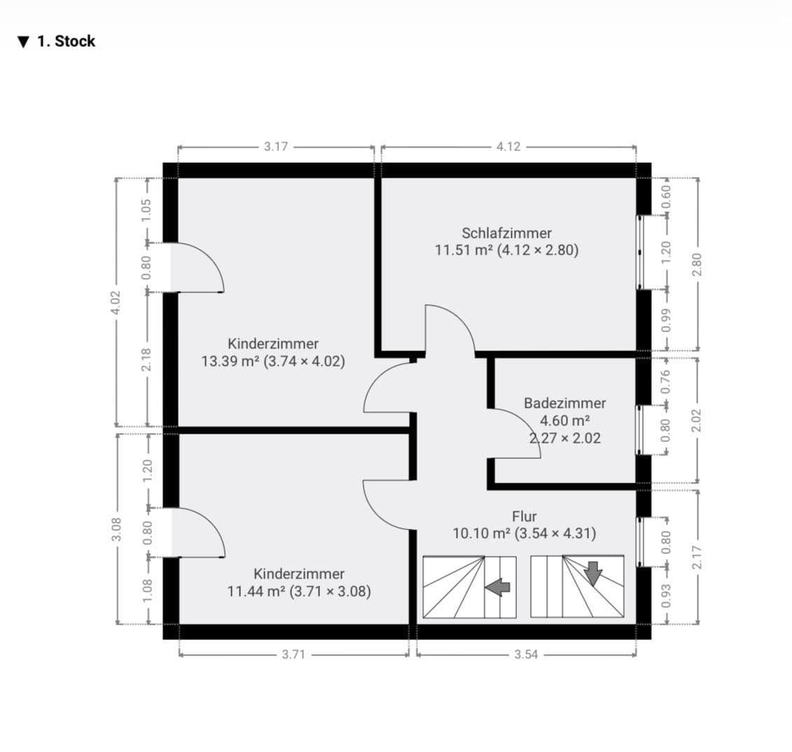
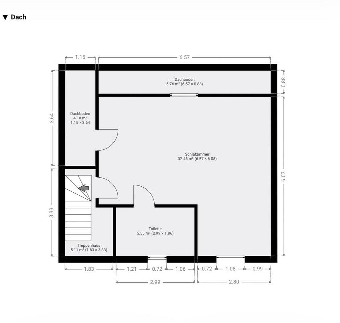
V nadpodlaží se nacházejí tři pokoje, které lze ideálně využít jako rodičovskou ložnici a dětské pokoje, a také koupelna s vanou. Další dřevěné schody vedou do zařízeného podkroví s prostorným pokojem, který se skvěle hodí jako pokoj pro mládež, home office nebo hobby místnost. Samostatné WC a další skladovací prostor doplňují nabídku prostorů.
Hvězdou domu je něžně upravená zahrada s dřevěnou terasou, trávníkem a bazénem, ideálním pro pohodové letní dny. Jihozápadní orientace zajišťuje slunce až do pozdních večerních hodin.
K domu náleží garáž s elektrickými sekčními vraty a carport, takže lze pohodlně pojmout dvě vozidla.
Nemovitost je ihned k dispozici a je nabízena bez provize.
Dům se nachází v klidné obytné ulici v Ludwigsfelde, rostoucím městě s přibližně 25 000 obyvateli v okrese Teltow-Fläming jižně od Berlína.
Okolí je charakterizováno rodinnými domy a řadovými domy, což vytváří příznivé prostředí pro rodiny s krátkými vzdálenostmi.
Obchody jsou dosažitelné pěšky: supermarket Rewe se nachází asi deset minut chůze. V bezprostřední blízkosti je také jesle a v okolí se právě buduje nová základní škola – jasný důkaz rostoucí rodinné přívětivosti této čtvrti.
Dopravní spojení je touto lokalitou velkou výhodou. Regionální vlak vás doveze na berlínské letiště za přibližně 10 minut. Díky blízkým přístupům na dálnici A10 (berlínský okruh) a státní silnici B101 jste rychle v Berlíně nebo Potsdamu. Dobře propracovaná městská autobusová síť je dalším pozitivem.
Samo město Ludwigsfelde nabízí kompletní infrastrukturu se několika jeslemi, školami všech stupňů, hudební a uměleckou školou, lékaři, lékárnami a pestrou nabídkou spolků. Současně město jako regionální růstové centrum využívá silný pracovní trh, zejména v oblastech automobilového průmyslu, logistiky a řemesel. Ti, kdo chtějí bydlet v okolí Berlína, aniž by se vzdali městské infrastruktury, zde naleznou ideální lokalitu.
Dům je ve velmi dobrém stavu a od výstavby byl v několika ohledech modernizován.
V ložnicích byly dodatečně instalovány klimatizace, které zajišťují příjemnou teplotu i v horkých letních dnech. Podlahy byly částečně nahrazeny – v obytných prostorách je moderní laminát, v kuchyni, koupelnách a chodbě kvalitní dlažba.
Okna jsou celá dvojitě zasklená s plastovými rámy. Vnější žaluzie, které jsou částečně ovládány elektricky, poskytují ochranu před sluncem a zajišťují soukromí.
Otevřené dřevěné schody z světlého přírodního dřeva spojují všechna tři patra a dodávají domu teplý, přívětivý charakter.
V přízemí se nachází koupelna s bezprahovou sprchou, v nadpodlaží koupelna s vanou – praktické řešení pro rodinný život. V podkroví je navíc samostatné WC.
Vestavěná kuchyň s dřevěnými frontami, troubou, keramickou varnou deskou, dřezem a dostatkem úložného prostoru je součástí kupní ceny.
Venkovní prostor byl upraven – dřevěná terasa s pevně zabudovaným bazénem tvoří srdce zahrady.
Garáž je vybavena elektrickými sekčními vraty, zastřešený carport poskytuje další parkovací místo.
Topení je zajištěno zemní plynovou kotelnou. Energetický průkaz ukazuje konečnou spotřebu energie 136,32 kWh/(m²·rok) s energetickou účinností třídy E.
V okolí nemovitosti najdete
Stále hledáte to pravé?
Nastavte si hlídacího psa. Nabídky vybrané na míru dostanete souhrnně 1× denně e-mailem. S Premium profilem máte k ruce hlídačů rovnou 5 a když se něco objeví, informují vás obratem.

















