Prodej bytu 3+1 • 80 m² bez realitky, Bádensko-Württembersko
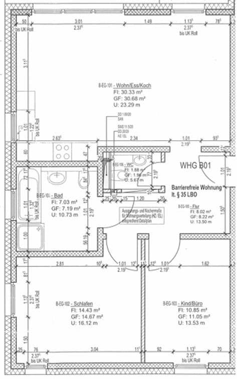
K prodeji je světlý bezbariérový 3-pokojový vlastnický byt ve věži v obytném komplexu postaveném v roce 2016 v rezidenční zóně „Kohlstätter Hardt“ ve Freudenstadtu. Byt se nachází v přízemí a vyznačuje se zejména rozsáhlou soukromou zahradou o rozloze přes 200 m², která je k výlučnému užívání.
Byt je prodáván bez provize přímo od vlastníka.
Byt disponuje moderním dispozicím. Díky podlahovým oknům je zajištěn přímý přístup na terasu a následně do zahrady. Všechny místnosti jsou vybaveny dlažbou. Koupelna je vybavena bezbariérovým sprchovým koutem, vanou a připojením pro pračku. Je k dispozici vestavěná kuchyň.
K bytu náleží podzemní garážové stání v ceně 25 000 €.
K bytu náleží také soukromý sklepení s rozlohou téměř 8 m².
V kupní ceně je zahrnut kompletní zahradní inventář. Ten zahrnuje mimo jiné sekačku na trávu, motyčku na živé ploty, zahradní boxy, kompletní zavlažovací systém a stávající zásoby.
Nemovitost se nachází v obytné oblasti Kohlstätter Hardt v severní části města. Lokalitu charakterizuje klidné prostředí a zároveň blízkost k centru Freudenstadtu. V okolí se nacházejí zařízení každodenní potřeby (lékárna, supermarkety a diskontéry, lékaři, mateřské školy, základní školy, střední školy, gymnázia, všeobecné školy) i napojení na veřejnou hromadnou dopravu.
V okolí nemovitosti najdete
Stále hledáte to pravé?
Nastavte si hlídacího psa. Nabídky vybrané na míru dostanete souhrnně 1× denně e-mailem. S Premium profilem máte k ruce hlídačů rovnou 5 a když se něco objeví, informují vás obratem.


















