Prodej bytu 3+1 • 72 m² bez realitkyHohenstein 28, , Severní Porýní-Vestfálsko
Hohenstein 28, , Severní Porýní-VestfálskoMHD 8 minut pěšky • Výtah • GarážLuxusní byty k vlastnictví v 51766 Engelskirchen - Ründeroth
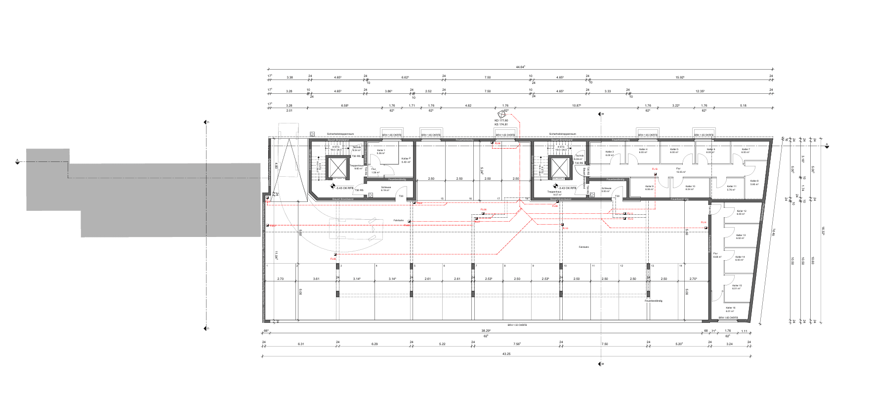
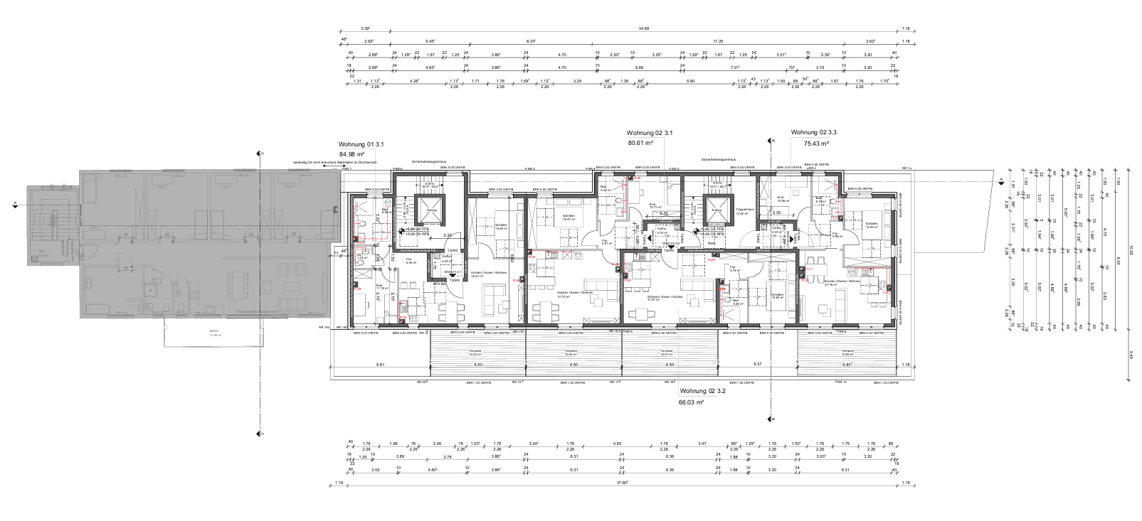
Novostavba – 32 bytů s obytnou plochou od 60 do 95 m² a podzemní garáží.
Stavební projekt bude realizován ve 2 fázích.
Zahájení stavby od června 2026, dokončení první fáze konec roku 2027.
Výjimečnosti:
1. Lokalita je jedinečná, sluncem zalité balkony s výjimečným, nezaslopitelným panoramatickým výhledem.
2. Nejmodernější stavební technologie, bezbariérový přístup, parkovací místa pro automobily v dobře přístupné podzemní garáži s výtahem až na jednotlivé patra.
3. Přímo u lesa / chráněné přírody s krásnými turistickými trasami, přesto vše potřebné na dosah pěšky s velmi dobrou dostupností na dálnici A4 (4 km vjezd), regionální železnice Köln-Lüdenscheid (nádraží cca 1,5 km), autobus do Kolína, Gummersbachu atd. zastávka 1 km, základní škola v bezprostřední blízkosti.
4. Byty budou předány jako klíčové hotové, včetně vybavení koupelen, podlahových krytin, malířských prací a vestavěných kuchyní ve slušné standardní provedení. Pokud to bude možné a bude o to zájem, existují ještě další nákupní možnosti, které je nutné předem dohodnout před koupí.
5. Kupujete za pevné ceny přímo od developerské skupiny zkušených stavebních firem z regionu. Platba proběhne pro vaši bezpečnost až po dokončení stavby a předání bytu, jak je sjednáno v kupní smlouvě.
6. Navzdory dnešním vysokým stavebním nákladům díky našemu plánování a zkušenostem nabízíme tyto velmi kvalitní a jedinečné byty za ceny odpovídající novostavbám v našem regionu, v rozmezí 4 450,00 € až 4 800,00 € za m² obytné plochy (v závislosti na bytě).
Máte-li zájem, další dotazy, přejete-li si osobní setkání a prohlídku, kontaktujte nás nejprve e-mailem.
Tel. č.: 0162 1870480
Hledáme nemovitosti určené ke s demolici a stavební pozemky.
Kontaktujte nás, pokud máte v úmyslu prodat svou nemovitost.
V okolí nemovitosti najdete
Stále hledáte to pravé?
Nastavte si hlídacího psa. Nabídky vybrané na míru dostanete souhrnně 1× denně e-mailem. S Premium profilem máte k ruce hlídačů rovnou 5 a když se něco objeví, informují vás obratem.
















