Pronájem bytu 4+1 • 122 m² bez realitky, Bavorsko
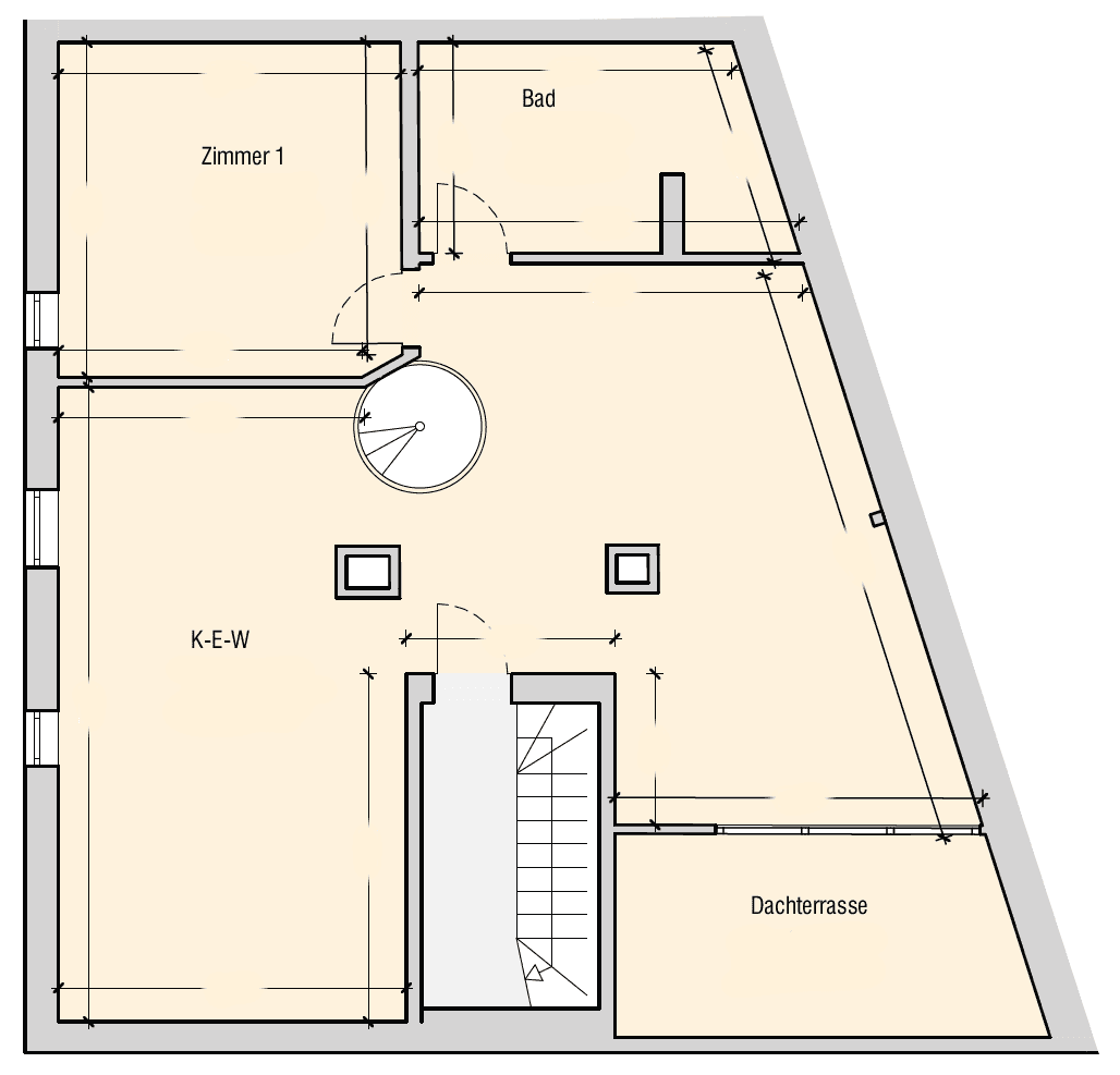
, BavorskoMHD 2 minuty pěškyTento prostorný a velkoryse navržený dvoupodlažní byt se rozprostírá na dvou úrovních. Dolní patro je vymezeno otevřeným konceptem propojujícím kuchyň, jídelnu a obývací pokoj. Odtud je přímo přístupna lodžie, která nabízí nádherný výhled na Dunaj. Samostatně umístěná místnost na této úrovni je ideální jako ložnice nebo pracovnu, doplněná funkční koupelnou. Přístup do horního patra je zajištěn závitovou (spirálovou) chodbou. Zde se nachází rozsáhlá galerie a další uzavřená místnost, které poskytují různé možnosti využití jako útočiště, pokoj pro hosty nebo prostor pro koníčky.
Byt zaujme svou bezprostřední blízkostí k dunajskému břehu, které je dosažitelné za pár minut chůze a zve k dlouhým procházkám nebo sportovním aktivitám v přírodě. Bezprostřední okolí zaručuje vysokou kvalitu života s bohatou gastronomickou infrastrukturou. Různá restaurace, útulné pivní zahrádky a oblíbené zmrzlinárny jsou v pohodlné pěší vzdálenosti.
V okolí nemovitosti najdete
Stále hledáte to pravé?
Nastavte si hlídacího psa. Nabídky vybrané na míru dostanete souhrnně 1× denně e-mailem. S Premium profilem máte k ruce hlídačů rovnou 5 a když se něco objeví, informují vás obratem.












