Prodej domu 6+1 • 166 m² bez realitky, Dolní Sasko
, Dolní SaskoMHD 1 minuta pěšky • Parkování • GarážSchönes und sehr familienfreundliches Reihenendhaus mit sonniger Südwest-Ausrichtung und großzügigen Wohnflächen auf drei Etagen, plus Keller. Das Haus ist in solider Bauweise in Stahlbeton errichtet und bietet sowohl im Innen- als auch im Außenbereich viel Platz für die ganze Familie (Nutzfläche 237qm). Ein großer Garten mit Obstbäumen und Wiese lädt zum Entspannen ein.
Krásný a velmi rodinně přátelský řadový dům na konci řady se sluneční jihozápadní orientací a prostornými obytnými prostory rozprostřenými do tří podlaží, plus sklep. Dům je postaven v pevné konstrukci z armovaného betonu a nabízí spoustu prostoru jak v interiéru, tak v exteriéru pro celou rodinu (užitná plocha 237 m²). Velká zahrada s ovocnými stromy a loukou zve k odpočinku.
Im Erdgeschoss finden sie ein großzügiges Wohnzimmer, das mit bodentiefen Fenstern den Blick in den Garten freigibt und direkt auf die Terrasse führt. Im Erdgeschoß befindet sich eine moderne Wohnküche und ein Gäste-WC.
V přízemí naleznete prostorný obývací pokoj, který díky podlahovým oknům nabízí výhled do zahrady a vede přímo na terasu. V přízemí se také nachází moderní kuchyňský kout a hostinská toaleta.
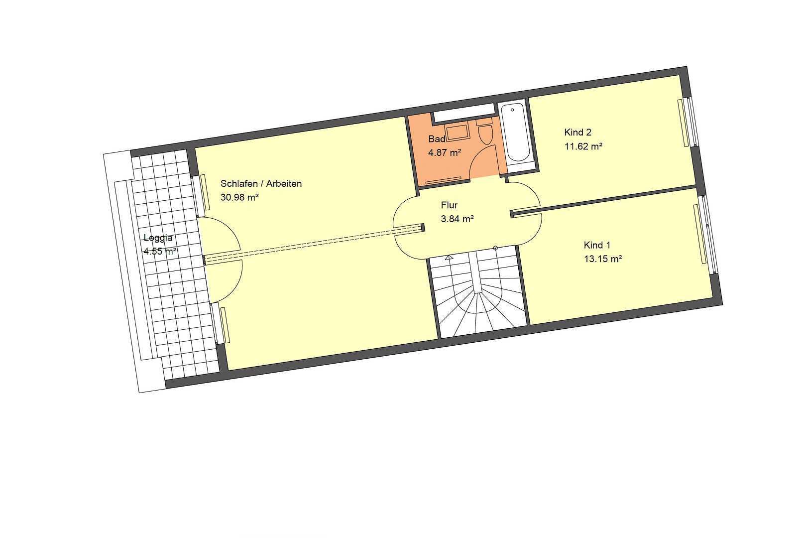
Im ersten Obergeschoss befinden sich drei Schlafzimmer sowie ein Wannenbad. Ein Zimmer verfügt über einen großen Balkon, von dem Sie einen schönen Blick auf den Garten haben.
V prvním patře se nacházejí tři ložnice a koupelna se vanou. Jedna místnost disponuje velkým balkonem, ze kterého je krásný výhled na zahradu.
Das Dachgeschoss bietet ein großes Atelier, ein Schlafzimmer, eine Sauna sowie ein weiteres Bad. Zusätzlich gibt es einen ausgebauten Raum, der vielfältig genutzt werden kann.
Podkroví nabízí velké ateliérové prostory, ložnici, saunu i další koupelnu. Kromě toho je zde zrekonstruovaná místnost, kterou lze využít různorodě.
Der Vollkeller umfasst einen großzügigen Hobbyraum, einen Heiz- und Waschkeller sowie einen Vorratskeller. Über eine Außentreppe gelangen Sie auch von außen in den Kellerbereich. (Die Kellerfläche ist nicht in der Gesamtfläche von 166 qm berechnet)
Plně podzemní sklep zahrnuje prostornou místnost pro koníčky, sklep pro topení a praní i sklep pro uskladnění. Zevenčívenní schodiště vám umožní přístup do sklepa i zvenku. (Plocha sklepa není zahrnuta v celkové ploše 166 m²)
Ausstattung:
Das Haus wurde 1978 erbaut und fortlaufend renoviert. Die Innenwände bestehen aus massiven Gipsblockwänden und die Außenwände sowie Decken sind aus Stahlbeton. Die Trennung zwischen den Reihenhäusern erfolgt durch solide 2x 20 cm dicke Wände, so dass keine Schallübertragung stattfindet. Die Fundamentierung besteht aus einer Stahlbetonplatte mit weißer Wanne.
Vybavení:
Dům byl postaven v roce 1978 a průběžně renovován. Vnitřní příčky jsou z masivních sádrokartonových bloků a vnější stěny i stropy jsou z armovaného betonu. Oddělení mezi řadovými domy je provedeno pevnými zdmi o tloušťce 2 x 20 cm, což zaručuje absenci přenosu hluku. Základy jsou realizovány z armované betonové desky s bílým litým prvkem.
Das Satteldach ist in Kunstschieferdeckung ausgeführt und wurde zimmermannsmäßig verarbeitet. Das Dachgeschoss ist gut isoliert und bietet einen vollwertig nutzbaren Raum.
Sedlová střecha je pokryta umělým břidlicovým krytinou a byla zpracována podle tradičních řemeslných postupů. Podkroví je dobře izolované a poskytuje plnohodnotně využitelný prostor.
Im Jahr 2020 wurde eine neue Brennwerttherme der Marke Viessmann installiert. Das Haus ist modern und gepflegt und bietet zahlreiche Extras wie einen Balkon, ein Wannenbad, ein Duschbad, ein Gäste-WC, einen Vorratskeller, einen Waschkeller, einen Hobbyraum, einen Dachboden sowie eine Terrasse, einen Garten und ein Gewächshaus.
V roce 2020 byla instalována nová kondenzační kotel značky Viessmann. Dům je moderní a udržovaný a nabízí řadu bonusů, jako je balkon, koupelna se vanou, sprchová koupelna, hostinská toaleta, sklep pro uskladnění, prádelna, místnost pro koníčky, půda, terase, zahrada a skleník.
Das Haus befindet sich in einer Top-Wohnlage. Insbesondere die Ruhe und Entspanntheit zeichnet die familienfreundliche Wohnqualität aus. Das Reihenendhaus liegt in einer verkehrsberuhigten Straße in Grasdorf, einem begehrten Ortsteil von Laatzen. Die Anbindung an den öffentlichen Nahverkehr ist ideal: Eine Bushaltestelle ist in unmittelbarer Nähe, und in nur 10 Minuten erreichen Sie die Üstra-Linien 1 und 2 sowie den S-Bahnanschluss in Rethen Bahnhof.
Dům se nachází v špičkové obytné lokalitě. Především klid a pohoda zdůrazňují rodinně přátelskou kvalitu bydlení. Řadový dům se nachází na klidné ulici v Grasdorfu, vyhledávané čtvrti Laatzen. Dopravní spojení hromadnou dopravou je ideální: autobusová zastávka je v bezprostřední blízkosti a za pouhých 10 minut se dostanete k linkám Üstra 1 a 2 a také na přestup S-Bahn na nádraží Rethen.
Die Umgebung besticht durch ihre ruhige und grüne Lage in einem attraktiven Wohnviertel, das vorwiegend von Einfamilienhäusern geprägt ist. In der Nachbarschaft befinden sich zahlreiche Spielplätze, Kitas, Sporteinrichtungen sowie verschiedene Schularten. Einkaufsmöglichkeiten für den täglichen Bedarf sind ebenfalls schnell zu erreichen.
Okolí zaujme svou klidnou a zelenou polohou v atraktivní obytné čtvrti, která je převážně tvořena rodinnými domy. V sousedství se nachází řada dětských hřišť, jeslí, sportovních zařízení a různých typů škol. Obchody s potravinami a další nezbytnosti pro denní potřebu jsou taktéž snadno dostupné.
Das Naturschutz- und Naherholungsgebiet „Leinemasch“ mit dem Flusslauf der Leine und der Alten Leine ist nur 3 Gehminuten entfernt und bietet zahlreiche Freizeitmöglichkeiten.
Přírodní rezervace a rekreační oblast „Leinemasch“ s tokem řeky Leine a starou Leine je vzdálena pouhé 3 minuty chůze a nabízí řadu volnočasových možností.
Das Haus ist ein Reihenendhaus und verfügt über einen Carport auf dem Grundstück (mit Platz für zwei Fahrzeuge). Eine zusätzliche Garage ist ebenfalls in unmittelbarer Nähe vorhanden.
Dům je řadový a disponuje na pozemku krytým parkovacím stáním (pro dvě vozidla). Další garáž se rovněž nachází v bezprostřední blízkosti.
Weitere Details:
Gern teilen wir Ihnen weitere Einzelheiten zu diesem außergewöhnlichen Angebot auf Anfrage mit.
Další podrobnosti:
Rádi vám na vyžádání poskytneme další informace o této výjimečné nabídce.
Bezugsfrei: Ab sofort
K nastěhování: ihned k dispozici
Hinweis:
Alle Angaben erfolgen nach bestem Wissen. Irrtümer und Zwischenverkauf sind vorbehalten. Als Rechtsgrundlage gilt ausschließlich der notariell abgeschlossene Kaufvertrag.
Upozornění:
Všechny údaje jsou uvedeny dle nejlepšího vědomí. Případné chyby a mezitímní prodej jsou vyhrazena. Právní základ má výhradně notářsky uzavřená kupní smlouva.
Besichtigungen sind nur nach vorheriger Vereinbarung möglich. Bitte keine Makleranfragen! Makleranfragen werden nicht beantwortet.
Prohlídky jsou možné pouze po předchozí domluvě. Prosíme, žádné poptávky od makléřů! Poptávky makléřů nebudou zodpovězeny.
V okolí nemovitosti najdete
Stále hledáte to pravé?
Nastavte si hlídacího psa. Nabídky vybrané na míru dostanete souhrnně 1× denně e-mailem. S Premium profilem máte k ruce hlídačů rovnou 5 a když se něco objeví, informují vás obratem.

























