Pronájem domu 6+1 • 180 m² bez realitkyPoppenreuther straße Fürth Fürth Bayern 90765
Poppenreuther straße Fürth Fürth Bayern 90765MHD 2 minuty pěšky • ParkováníTato výjimečně udržovaná polodvojdomek z roku 2021 kombinuje moderní design, vysoce kvalitní vybavení a centrální, zároveň rodinně přívětivou polohu ve Fürthu.
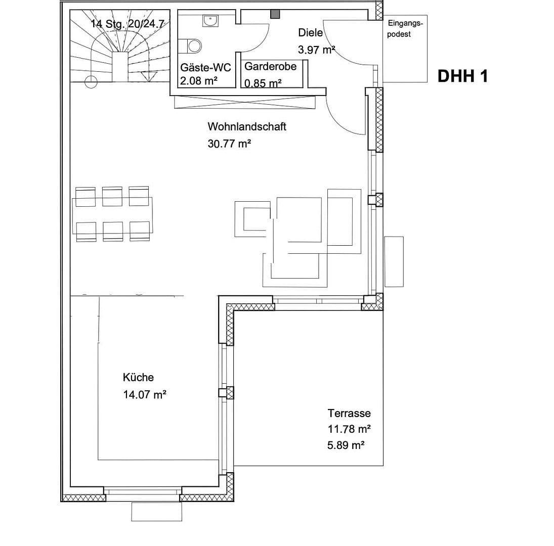
Už při vstupu do domu se vytváří pocit prostornosti a jasnosti. Obývací a jídelní část jsou prosvětlené a tvoří srdce domu. Velká okna vytvářejí příjemnou atmosféru a harmonicky spojují vnitřní prostor se slunnou terasou a pečlivě upravenou zahradou. V přízemí se navíc nachází hostinské WC a sprchový kout.
Moderní vestavěná kuchyň se elegantně začleňuje do konceptu bydlení a svým kvalitním provedením přesvědčuje – místo, které splňuje nejvyšší funkční i estetické nároky.
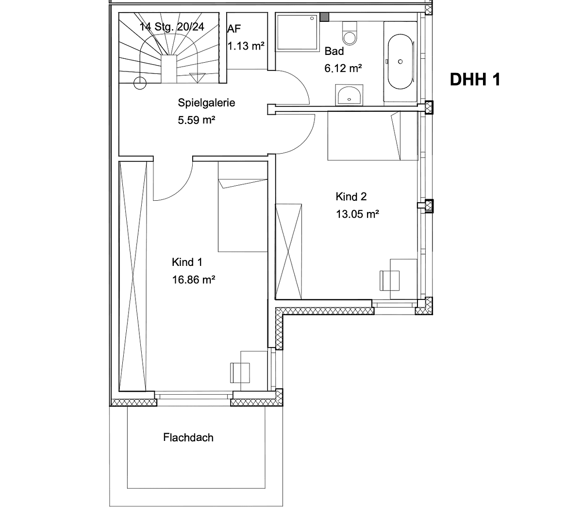
Rozložení místností je ideálně přizpůsobeno potřebám rodiny. V patře se nacházejí dvě světlé a dobře navržené dětské pokoje a moderní koupelna.
Podkroví je zařízeno jako soukromé útočiště pro rodiče a nabízí kromě ložnice také samostatnou šatnu a přístup na balkon s krásným výhledem do zeleně. Díky integrované koupelně na této úrovni není třeba se přesouvat mezi patry.
Zvláštní vlastností této nemovitosti je její vynikající vhodnost pro moderní práci z domova. Díky integrovanému LAN propojení lze home office a každodenní život optimálně zkombinovat.
Plně dokončený sklep výrazně rozšiřuje obytnou a užitkovou plochu a nabízí široké možnosti využití – od místnosti pro koníčky až po fitness oblast. Všechny místnosti ve sklepě jsou vybaveny podlahovým topením.
Poloha této nemovitosti spojuje městský život s vysokou kvalitou bydlení.
Nákupní možnosti, supermarkety či autobusová zastávka jsou snadno dostupné pěšky. Zvláště atraktivní je blízkost vzdělávacích zařízení: mateřská škola, jesle a základní škola se nacházejí pouhých asi 300 metrů od domu.
Přestože se nemovitost nachází v centrální oblasti, okolí přesvědčuje svou klidností a rodinnou přívětivostí.
Vybavení této nemovitosti odpovídá modernímu a vysoce kvalitnímu standardu bydlení:
- Podlahové topení ve všech místnostech, včetně sklepa
- Energeticky účinné tepelné čerpadlo
- Smart Home systém pro pohodlné ovládání (LCN Bus System)
- Elektrické rolety
- LAN propojení pro home office
- Zařízení pro změkčování vody (BWT)
- Vysoce kvalitní sprchová WC
- Tři stylově vybavené koupelny
- Prostorný obývací a jídelní prostor s množstvím denního světla
- Moderní vestavěná kuchyň (75 € měsíčně)
- Částečně zařízeno (skříně, TV stěna, kuchyň, koupelnové doplňky atd.)
- Plně sklepněno
- Venkovní prostor (vysoce kvalitní krytá terasa s LED osvětlením a topnými paprsky, zabezpečovací skleněné posuvné dveře, krásná zahrada s rolkovou trávou a dvojitým plotem pro zajištění soukromí)
Nemovitost nabízí atraktivně upravený venkovní prostor, který přináší jak relaxaci, tak zvýšenou kvalitu života.
Krytá terasa zve k relaxaci na čerstvém vzduchu, zatímco zahrada nabízí dostatek prostoru pro děti nebo volnočasové aktivity. Balkon v podkroví pak poskytuje příjemný výhled do zeleně a dokonale doplňuje celkový dojem.
Parkovací místo přímo u domu zajišťuje další komfort v každodenním životě.
Nemovitost je upřednostňována pro nekuřáky. Domácí mazlíčci nejsou povoleni.
Doložení příjmu je podmínkou pro sjednání termínu prohlídky.
V okolí nemovitosti najdete
Stále hledáte to pravé?
Nastavte si hlídacího psa. Nabídky vybrané na míru dostanete souhrnně 1× denně e-mailem. S Premium profilem máte k ruce hlídačů rovnou 5 a když se něco objeví, informují vás obratem.


















