Prodej domu 7+kk • 170 m² bez realitkyRembrandtstraße 67, , Braniborsko
Rembrandtstraße 67, , BraniborskoMHD 1 minuta pěšky • ParkováníVítejte v domově, který harmonicky spojuje moderní bydlení, udržitelnost a flexibilitu.
Tento nový dvojdomek (novostavba 2025, energetická třída A+) nabízí přibližně 170 m² obytné plochy, rozdělené do 7 místností, 3 koupelen a komfortního samostatného bytu – ideální pro rodiny, vícegenerační bydlení nebo jako kombinace bydlení a práce.
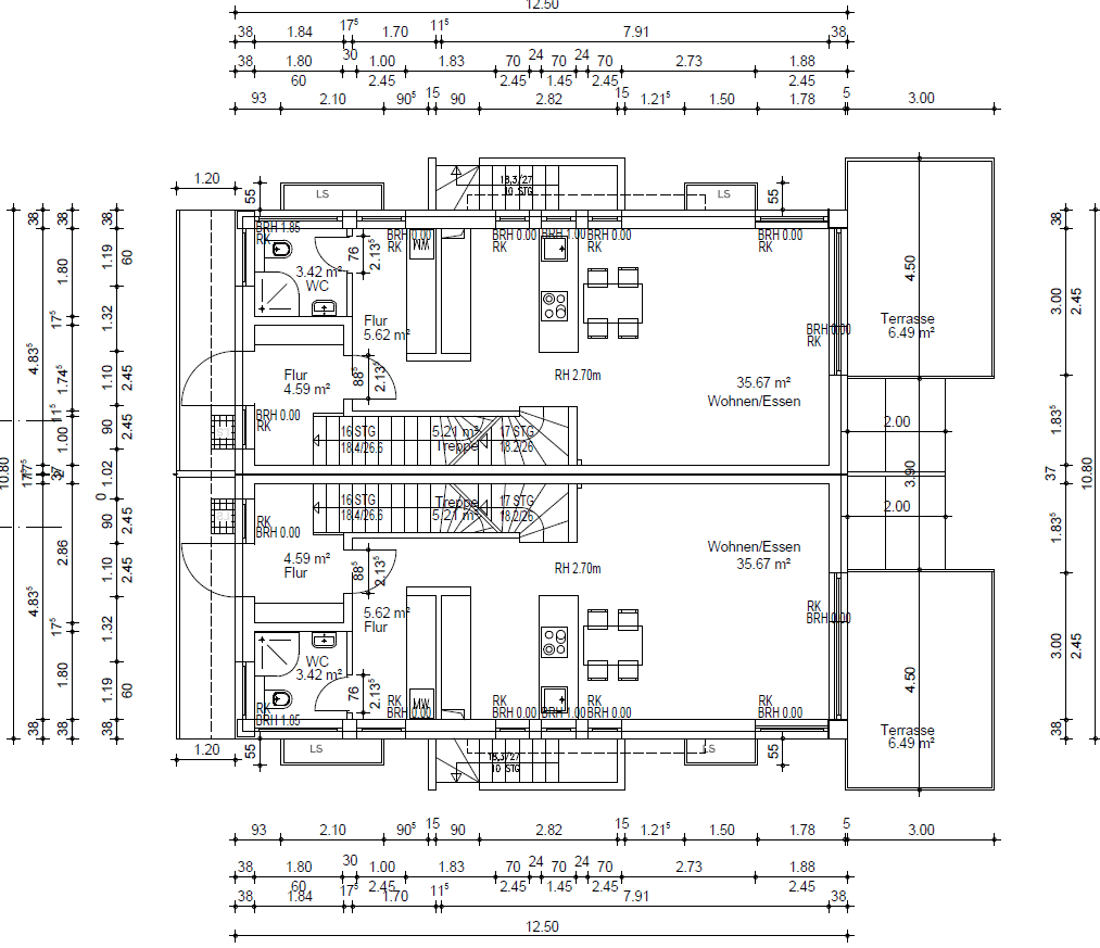
Rozložení prostor
Přízemí (EG):
- Prostorný obývací a jídelní kout s podlahovými okny, přístup na slunnou terasu a do zahrady.
- Otevřená kuchyně s možností ostrovního uspořádání, technická místnost a moderní hostinská koupelna se sprchou.
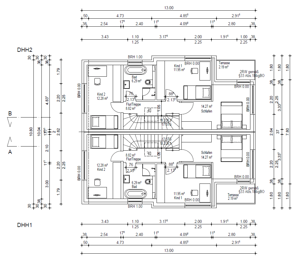
Nadzemí (OG):
- Tři světlé, optimálně uspořádané ložnice a elegantní rodinná koupelna s vanou a sprchovým koutem bez prahu.
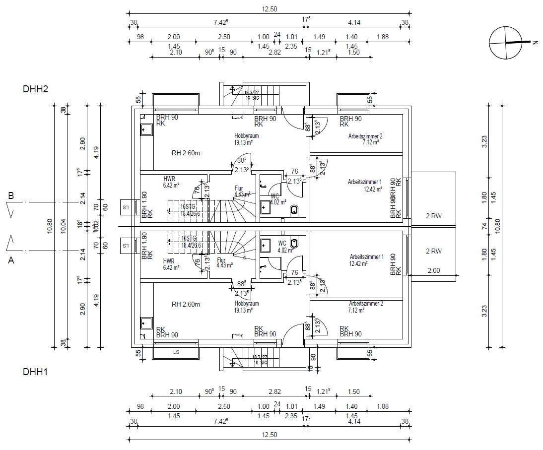
Samostatný byt (suterén, cca 50 m²):
- Samostatný vstup, útulný obývací/jídelní kout s kuchyňským koutem, dvě ložnice a vlastní koupelna.
- Perfektně vhodný jako byt pro příbuzné (např. pro prarodiče nebo au pair), pro dospělé děti, jako oddělená část pro hosty nebo s malou ordinací/kanceláří.
- Možnost pronájmu: cca 900–1 100 € / měsíc – bezpečná investiční varianta s výnosem z pronájmu.
Vybavení & Zvýrazněné vlastnosti
• Energetická třída A+ – nízké provozní náklady a připravenost na budoucnost
• Masivní konstrukce z cihel a železobetonových prvků
• Tepelné čerpadlo s funkcí chlazení
• Podlahové topení ve všech místnostech
• Trojitě zasklená okna a elektrické žaluzie
• Slunná terasa a vlastní část zahrady
• 2 parkovací místa s přípravou pro wallbox
Vaše výhody
• Dva koncepce využití: rodinný dům s připojeným bytem nebo ordinace
• Vysoká energetická účinnost → nízké provozní náklady
• Stabilní výnos z pronájmu nebo vícegenerační řešení
• Bez provize – přímo od developera
• Kompletně dokončeno – nastěhujte se a užívejte si pohodlí
Závěr
Moderní, plnohodnotný rodinný dům s dostatkem prostoru, flexibilitou a udržitelnou technologií.
Ať už hledáte dům pro více generací nebo kombinaci bydlení a práce – zde investujete do kvality života, komfortu a budoucnosti.
Rembrandtstraße 67, 15827 Blankenfelde-Mahlow
Blankenfelde-Mahlow nabízí dokonalou kombinaci přírody, rodinné přívětivosti a blízkosti velkoměsta.
Zde si užijete klid, bezpečí a vysokou kvalitu života – s přímým spojením do Berlína.
• Rodinné prostředí s jeslami, školami, lékaři a nákupními možnostmi v bezprostřední blízkosti
• S-Bahn pěšky (cca 10 minut) – cca 25 minut do Potsdamer Platz
• Rangsdorfer See zve k procházkám, vodním sportům a odpočinku
• Obklopeno lesy, loukami a cyklostezkami – ideální pro volný čas a užívání si přírody
• Řada sportovních a volnočasových aktivit: tenis, jízda na koni, golf, cyklistika a pěší turistika
• Rychlé spojení s dálnicí A10 a letištěm BER (cca 20 minut)











