Prodej domu • 251 m² bez realitky, Bavorsko
, BavorskoMHD 1 minuta pěšky • Parkování • GarážNemovitosti se nacházejí v žádané rezidenční oblasti, jižně od historického centra Pegnitzu, přímo u Wiesengrundu. Historické centrum s četnými nákupními možnostmi je dosažitelné pěšky za pouhých 5 minut. Zahradní pozemek sousedí přímo s břehem řeky Pegnitz. Nemovitosti se nacházejí v pečlivě udržovaném prostředí, které tvoří převážně vícepodlažní obytné domy.
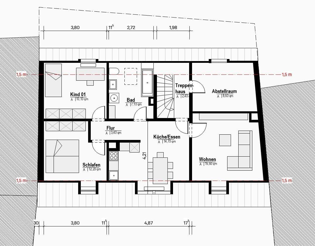
Pěkně udržovaný rodinný dům určený pro tři rodiny se nachází bezprostředně na okraji centra Pegnitzu, v výhodné poloze s krásným výhledem, centrálně a dobře dostupný. Budova byla postavena v 70. letech v masivní, solidní zdivo s podkrovním sklepem. Celkový stav je dobrý. Zahradní pozemek s dvojgaráží a přístavbou se nachází přímo u Wiesengrundu, v poloze bez omezení pohledu. Východo-západně orientovaný obytný dům je dvoupatrový s využitelným podkrovím a díky rozdílné úrovni terénu disponuje přímo přístupným a dobře osvětleným sklepem. Severní a jižní strana budovy jsou konstruovány jako protipožární příčky a jsou k budově přistavěny.
V přízemí se nachází upravený čtyřpokojový byt s přibližnou obytnou plochou a prostorným, slunným západním balkonem s výhledem na Wiesengrund.
Přes společný, otevřený schodiště se dostanete do 1. patra, kde se rovněž nachází čtyřpokojový byt s přibližnou obytnou plochou.
V podkroví na vás čeká opět čtyřpokojový byt s úložným prostorem. Přístup na půdorysné podkroví je možný vysouvacím žebříkem umístěným u střešní šachty.
Nemovitost je kompletně s podkrovím. Sklep je na západní straně otevřený do nádvoří. V sklepním podlaží se nacházejí skladovací místnosti, kotel na topení na olej spolu s úložným prostorem pro olej a prádelna. Přiléhající dlážděné nádvoří může být využito také jako parkovací místo pro automobily.
V exteriéru naleznete ještě přístavbu s uzavřeným i otevřeným skladovacím prostorem. V horním patře této přístavby se nacházejí rovněž skladovací prostory.
Zahradní pozemek na západě s dvojgaráží a přístavbou je možné na vyžádání dokoupit.
Pegnitz, s přibližně 13 000 obyvateli, je největším městem na jižní straně okresu Bayreuth, zasazeným do přírodní krajiny mezi Franckou švýcarskem a lesem Veldensteiner Forst. Pegnitz se nachází zhruba 30 kilometrů jižně od Bayreuthu. Město patří do metropolitní oblasti Norimberk a plánovací oblasti Horní Fráky – východ.
Pegnitz, s přibližně 13 000 obyvateli, je největším městem na jižní straně okresu Bayreuth, zasazeným do přírodní krajiny mezi Franckou švýcarskem a lesem Veldensteiner Forst.
Jako sídlo celosvětově působících firem se Pegnitz etabloval jako středisko regionu a nabízí široké spektrum zaměstnavatelů pro okolí.
V Pegnitzu je také k dispozici řada vzdělávacích zařízení. Kromě základních a středních škol, reálné školy a UNESCO gymnázia se v městě nachází také hotelová škola a odborná škola pro hotelový management, odborná škola s kovářskými dovednostmi a Bavorské justiční školení.
Infrastruktura
Nádraží Pegnitz se spojeními na regionální expres je vzdáleno asi 10 minut chůze. Odtud se vaši zákazníci dostanou rychle jak do Bayreuthu, tak do Norimberka.
Pegnitz se nachází uprostřed opravdového pěšího ráje – "Veldensteiner Forst", jednoho z největších souvislých lesních celků Bavorska. Četné turistické stezky nabízejí různé možnosti volnočasových aktivit a zve k odpočinku a regeneraci. To přitahuje do města řadu návštěvníků a potenciálních zákazníků.
Mnoho restaurací a celoročních oslav, například Pegnitzná letní koncertní série, slavnost na tržním náměstí nebo poutě, zve obyvatele ke společenským setkáním.
Pegnitz nabízí pestrou a různorodou strukturu podniků, což způsobuje vysoký průchodnost lidí. V centru města se konají známé akce po celý rok, i o víkendech, což dále přispívá k živé atmosféře (podrobnosti naleznete na internetových stránkách města Pegnitz).
Parametry nemovitosti
| Stáří | Nad 50 let |
|---|---|
| Číslo inzerátu | 1009032 |
| Užitná plocha | 251 m² |
| Celkem podlaží | 3 |
| Stav | Dobrý |
|---|---|
| PENB | G - Mimořádně nehospodárná |
| Plocha pozemku | 717 m² |
| Cena za jednotku | 1 115,54 € / m2 |
Co tato nemovitost nabízí?
| Balkón | |
| Garáž | |
| Parkování |
| Sklep | |
| MHD 1 minuta pěšky |




















