
Prodej bytu 2+kk • 39 m² bez realitkyŠluknovská, Praha - Střížkov
Šluknovská, Praha - StřížkovČástečně vybavenoVyužít program Bydlím hned, koupím později
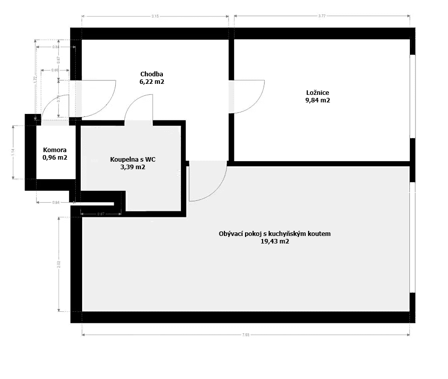
Prodej světlého bytu 2+kk, 39,3 m² – Praha 9, Střížkov, ul. Šluknovská
Nabízíme k prodeji velice světlý a útulný byt 2+kk v oblíbené a vyhledávané lokalitě Praha 9 – Střížkov, ulice Šluknovská. Byt se nachází ve 3. nadzemním podlaží ze 7 v panelovém domě, který prošel kompletní revitalizací (zateplení, nová fasáda, plastová okna, moderní výtah, bezbariérový přístup včetně rampy a renovované společné prostory).
Byt je v osobním vlastnictví a disponuje podlahovou plochou 39,30 m². K bytu náleží praktická komora na patře o velikosti 0,96 m². Na patře je dále k dispozici společná lodžie sdílená pouze se dvěma dalšími byty.
Velkou předností bytu je jeho jižní orientace do klidné zeleně, která zajišťuje ticho a příjemnou atmosféru pro bydlení. Byt je vybaven kuchyňskou linkou, mikrovlnnou troubou, lednicí, pračkou a kombinovaným sporákem. Interiér doplňují plovoucí podlahy, dlažba v chodbě, vestavěná zrcadlová skříň a bezpečnostní vstupní dveře.
Praktickým prvkem je také dřevěné patro na spaní. Koupelna je zděná s vanou. Vytápění je řešeno dálkovým ústředním topením.
Lokalita nabízí kompletní občanskou vybavenost – v bezprostřední blízkosti naleznete obchody, služby, restaurace, dětské hřiště, mateřskou i základní školu, polikliniku či sportovní centrum. Výborná dopravní dostupnost: autobusová zastávka cca 4 minuty chůze, stanice metra cca 7 minut.
Prohlídky a nastěhování možné ihned.
Přímý majitel – neplatíte provizi!
REALITNÍ KANCELÁŘE NEVOLAT, PROVIZI NEPLATÍME!
Sale of a Bright 2+kk Apartment, 39.3 m² – Prague 9, Střížkov, Šluknovská Street
We offer for sale a very bright and cozy 2+kk apartment in the popular and sought-after area of Prague 9 – Střížkov, on Šluknovská Street. The apartment is situated on the 3rd floor of a 7-story panel building that has undergone a complete renovation (insulation, new façade, plastic windows, modern elevator, barrier-free access including a ramp, and renovated common areas).
The apartment is privately owned and has a floor area of 39.30 m². It comes with a practical storage room on the landing measuring 0.96 m². Additionally, there is a shared loggia on the landing, which is shared with only two other apartments.
A major advantage of the apartment is its southern orientation towards a quiet, green environment, which ensures peace and a pleasant atmosphere for living. The apartment is equipped with a kitchen unit, a microwave, a refrigerator, a washing machine, and a combined stove. The interior is complemented by floating floors, tiled hallway, built-in mirrored wardrobe, and a secure entrance door.
A practical feature is the wooden mezzanine for sleeping. The bathroom is built with brick and includes a bathtub. Heating is provided by a remote central heating system.
The locality offers complete civic amenities – in the immediate vicinity, you will find shops, services, restaurants, a children’s playground, both a kindergarten and a primary school, a polyclinic, and a sports center. Excellent transport accessibility: the bus stop is approximately a 4-minute walk away, and the metro station is about 7 minutes away by foot.
The apartment was long-term rented out; the photos were taken before the rental period began.
Available for move-in from May 15, 2026. Viewings are possible immediately.
Direct owner – no commission fee!
Real estate agencies, please do not contact.
Parametry nemovitosti
| Dostupné od | 15. 5. 2026 |
|---|---|
| Konstrukce budovy | Panel |
| Vybaveno | Částečně |
| Číslo inzerátu | 1009336 |
| PENB | G - Mimořádně nehospodárná |
| Užitná plocha | 39 m² |
| Cena za jednotku | 184 358,97 Kč / m2 |
| Stav | Velmi dobrý |
|---|---|
| Dispozice | 2+kk |
| Podlaží | 3. podlaží z 7 |
| Vlastnictví | Osobní |
| Umístění | Klidná část |
| Rizika | Prověřit » |
Co tato nemovitost nabízí?
V okolí nemovitosti najdete
Využít program Bydlím hned, koupím později












