Prodej domu 5+1 • 167 m² bez realitky, Bádensko-Württembersko
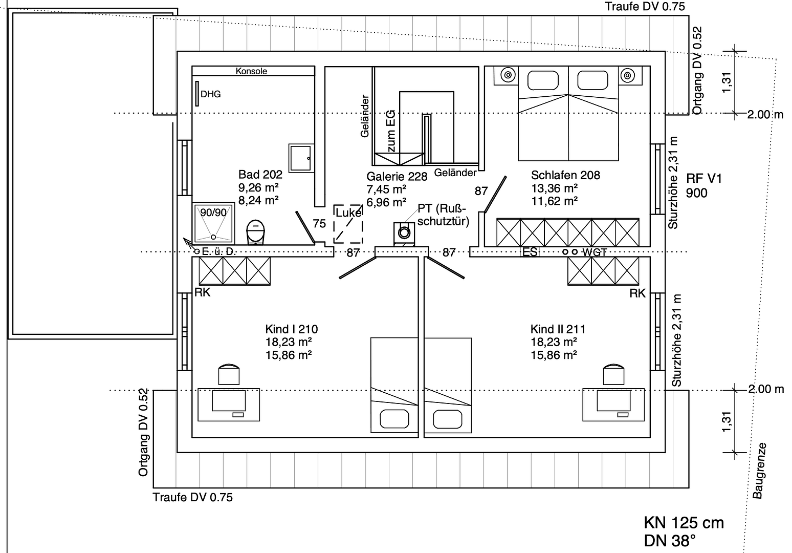
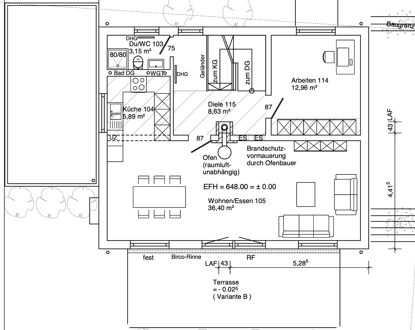
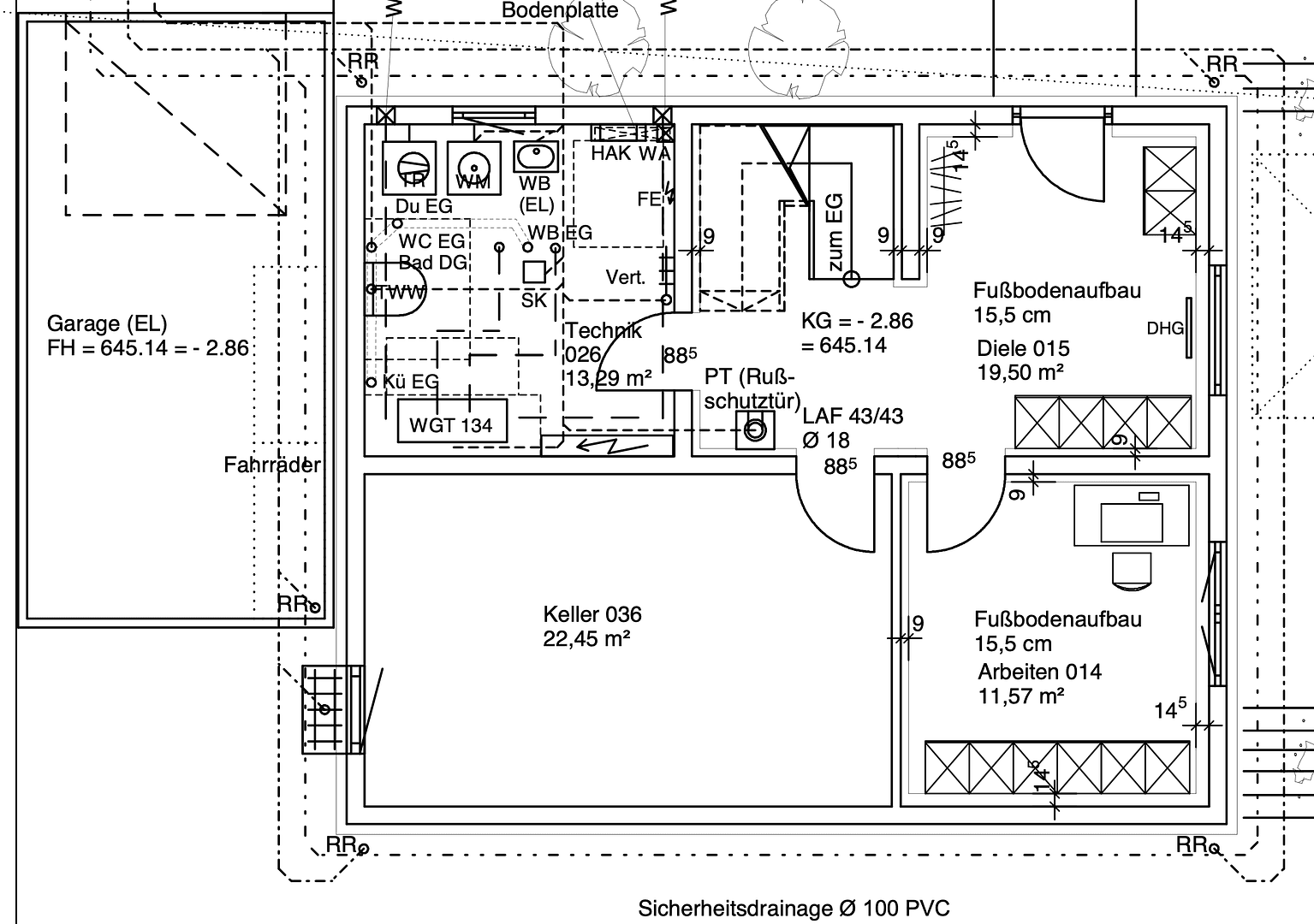
, Bádensko-WürttemberskoMHD 3 minuty pěšky • Parkování • GarážModerní rodinný dům disponuje obytným sklepem s přirozeným denním světlem, nádherným světelným konceptem, dvěma terasami orientovanými na jih s jedinečným výhledem na Gräbelesberg, kvalitně vybavenou vestavěnou kuchyní, dvěma sprchovými koupelnami, dvěma pracovněmi a dvěma samostatnými dětskými pokoji. Dům je ihned k nastěhování, má pouhých sedm let a disponuje energetickým štítkem KfW 55. Prostorný pozemek nabízí velkou trávníkovou plochu pro hrající si děti a užitkovou zahrádku se řadou záhonů a ovocných stromů. Nádherně upravená předzahrada je skutečnou atrakcí. Extra široká garáž, dvě parkovací místa a oslnivý zahradní domek (2025) splní všechna očekávání.
/// Soutěžní řízení – Startovní nabídka 725.000 €
Laufen je část Albstattu v srdci švábské Alb. Ulice Gräbelesberg se nachází v klidné obytné čtvrti a zahrnuje slepou uličku v blízkosti lesa. V obci se nachází nově postavená mateřská školka (2021) a základní škola, navíc zde je i železniční stanice, která usnadňuje dojíždění do Tübingenu nebo Stuttgartu. Obchody a lékaři jsou dosažitelní za několik minut jízdy. Tento rok začíná výstavba nového Centrálního klinického centra Zollernalb v blízké obci.
Výrobce domu: Schwörer-Haus, dřevěná konstrukce s nosným rámem
Extra široká garáž: 700 x 358 x 259 cm plus 2 parkovací místa
Pokoje: 1 ložnice, 2 dětské pokoje, 2 sprchové koupelny, 2 pracovny, prostorná obytná kuchyň spojená s jídelnou a obývacím pokojem, 2 sklepní místnosti
Vytápění: vzduch-vzduch tepelná čerpadla plus krb
Energetický standard: KfW 55
Fotovoltaická elektrárna: 9,9 kWp systém s 9 kWh baterií včetně chytré wallbox pro nabíjení přebytečné solární energie
Cistern: 7000 l (s 30letou zárukou)
Zařízení pro změkčení vody: systém BWT






