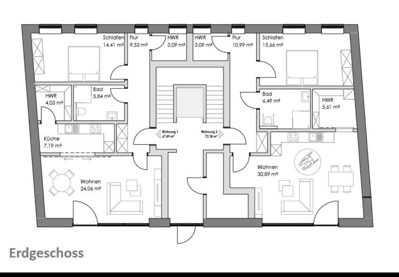
Pronájem bytu 3+1 • 98 m² bez realitkyAbdena Str. 2 Emden Emden Niedersachsen 26721
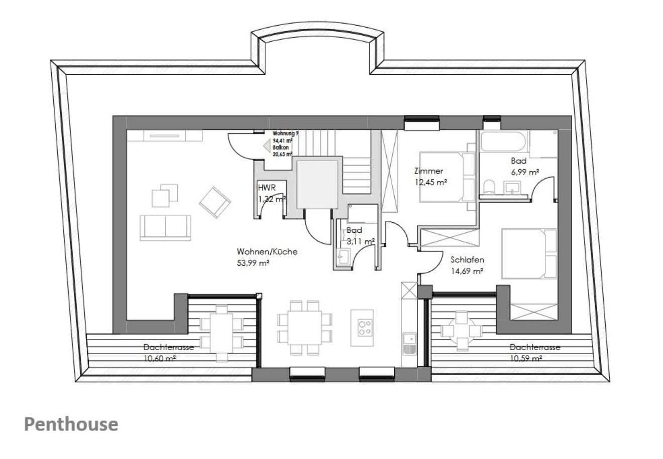
Abdena Str. 2 Emden Emden Niedersachsen 26721MHD 1 minuta pěšky • Výtah • ParkováníExkluzivní penthouse se dvěma střešními terasami v centrálním umístění Emden
V žádané městské části Emden, v ulici Abdenastraße, na vás čeká tento vysoce kvalitní penthouse, který spojuje moderní komfort bydlení s udržitelnou výstavbou. Byt byl postaven dle standardu QNG (Certifikát udržitelné budovy) a splňuje nejvyšší nároky na energetickou efektivitu, komfort a připravenost do budoucna.
Hlavní přednosti bytu
• Penthouse se dvěma prostornými střešními terasami – ideální pro relaxaci, opalování a vychutnávání si chvílí
• Dvě dobře navržené ložnice
• Otevřená obývací a jídelní část s kvalitní vestavěnou kuchyní
• Podlahové topení ve všech místnostech pro příjemné klima
• Elektrické rolety zvyšující komfort a bezpečnost
• Moderní koupelna a samostatné hostinské WC
• Výtah s přímým přístupem do bytu – maximální komfort a bezbariérový vstup
• Kvalitní materiály a promyšlené řešení dispozice
Udržitelnost a technika
• Postaveno dle standardu QNG
• Energeticky efektivní výstavba s důrazem na ekologickou šetrnost a nízké provozní náklady
• Budoucnost zajištěna moderní novostavbou
Lokalita
Ulice Abdenastraße se nachází v centru Emden a nabízí vynikající infrastrukturu. Obchody, gastronomie, lékaři, nádraží i kulturní zařízení jsou dosažitelné pěšky. Centrální poloha spojuje městský život s krátkými vzdálenostmi a vynikajícím dopravním spojením.
Závěr
Tento penthouse je ideální pro ty, kteří chtějí spojit exkluzivní bydlení, centrální lokalitu a udržitelnou výstavbu. Domov s jedinečným pocitem bydlení – nad střechami Emdenu. Projekt bude k dispozici k nastěhování koncem března 2026.
Jsou také k dispozici další byty různých velikostí a jeden penthouse.
Rádi se domluvíme na termínu prohlídky.
Ulice Abdenastraße v Emden se nachází v centru města.
Lokalita a okolí
Ulice protéká centrem města, jen pár minut chůze od nádraží Emden a autobusového nádraží.
• Vestavěná kuchyně je součástí
• Dlažba ve velkém formátu
• Ventilační systém
• Elektrické rolety
V okolí nemovitosti najdete
Stále hledáte to pravé?
Nastavte si hlídacího psa. Nabídky vybrané na míru dostanete souhrnně 1× denně e-mailem. S Premium profilem máte k ruce hlídačů rovnou 5 a když se něco objeví, informují vás obratem.












