Prodej bytu 4+1 • 105 m² bez realitkyGregor-Fuchs-Straße 38 Leipzig Anger-Crottendorf Sachsen 04318
Gregor-Fuchs-Straße 38 Leipzig Anger-Crottendorf Sachsen 04318MHD do minuty pěškyOkouzlující 4-pokojový mezoneta byt s balkonem v Lipsku – Anger-Crottendorf
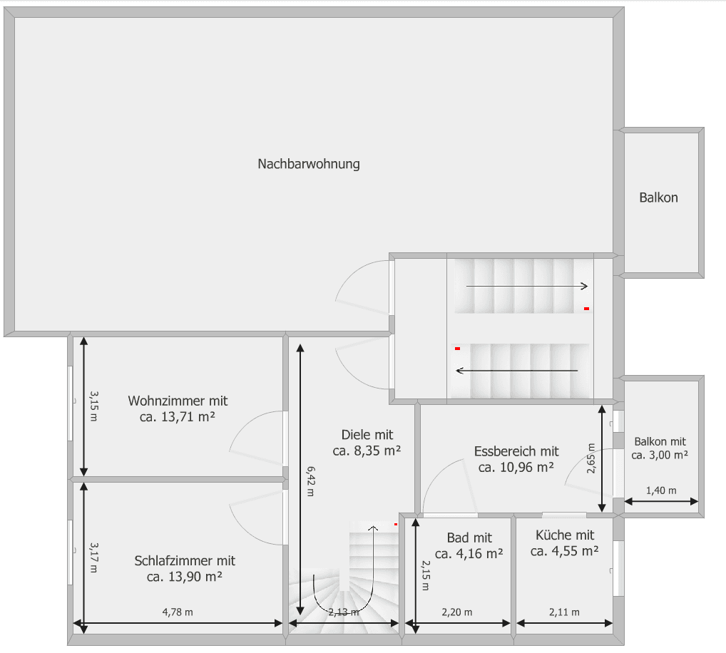
V pečlivě zrekonstruovaném, památkově chráněném vícegeneračním domě z 19. století se vás v oblíbené lipské čtvrti Anger-Crottendorf čeká atraktivní vlastnický byt o přibližně 84 m² obytné plochy. Byt se nachází ve 4. patře udržovaného staršího domu, který byl v roce 1996 kompletně zrekonstruován.
Světlý 4-pokojový mezoneta byt nabízí dostatek prostoru pro páry nebo rodiny, jež hledají útulný domov s historickým kouzlem. Obytná plocha je rozdělena do čtyř dobře uspořádaných pokojů, samostatné kuchyně a udržované koupelny. Všechny místnosti jsou pohodlně přístupné z chodby a zajišťují příjemnou a praktickou strukturu bydlení.
Srdcem bytu je otevřený obývací a jídelní kout s přímým přístupem na balkon. Tato prostorová koncepce vytváří mimořádně útulnou atmosféru – ideální pro společné chvíle s rodinou a přáteli. Balkon orientovaný na klidnou stranu vnitřního dvora zve k relaxaci a poskytuje příjemné útočiště před každodenním shonem.
Koupelna je udržovaná a vybavená vanou, umyvadlem, toaletou a ručníkovým topením. Samostatná kuchyně nabízí dostatek prostoru pro vaření a každodenní rodinný život.
Další úložný prostor poskytuje skladovací místnost umístěná na polovině schodiště a rovněž vlastní sklep, které smysluplně doplňují tuto zajímavou nemovitost.
Byt je v současnosti pronajat, čímž představuje atraktivní příležitost i pro investory. Současný čistý nájem činí 8.460 € ročně. Kromě toho zde existuje potenciál pro budoucí nárůst hodnoty a výnosu. Nemovitost je obývána klidnou a spolehlivou nájemnickou komunitou, která dům pečlivě udržuje.
Byt disponuje solidním a udržovaným vybavením a je pronajatý již od roku 2017.
Lipská čtvrť Anger Crottendorf je skvěle napojena na okolní infrastrukturu (S-Bahn (MDV), tramvaj, autobus).
Všechny služby a zařízení jsou v dostatečné míře dosažitelné pěšky (mimo jiné supermarkety, úřady, školy, školky, lékaři).
Díky blízkosti Stünzer Parku, který sousedí přímo s obytnou zónou, je tato lokalita velmi oblíbená.
Bez provize pro kupujícího
Prodej nemovitosti probíhá na základě zadání našeho zákazníka. Pro vás jako kupujícího nejsou účtovány žádné provize realitní kanceláře.
Váš kontaktní osoba
Frank Stabler
Realitní makléř
Odborník na oceňování zastavěných a nezastavěných pozemků
(certifikováno dle DIN ISO 17024 / PersCert)
Kurze Straße 4
04683 Naunhof
Termín prohlídky nemovitosti může být dohodnut mimo jiné se současnými nájemníky.
Vyloučení odpovědnosti:
Všechny údaje a ceny jsou nezávazné a bez závazku. Případné chyby či mezirezervace si vyhrazujeme. Tato nabídka byla vyhotovena na základě dokumentů poskytnutých vlastníkem a jeho údajů, bez záruky.
Právní nárok na kupní smlouvu vzniká teprve po protisignaci vlastníkem.



















