
Pronájem nebytového prostoru • 130 m² bez realitkyHauptstrasse 155, , Severní Porýní-Vestfálsko
Hauptstrasse 155, , Severní Porýní-VestfálskoMHD 4 minuty pěšky • ParkováníHier se pronajímá obchodní prostor. Prostory jsou momentálně stále lékárnou, která bohužel musela zavřít, protože nebyl nalezen nástupce s potřebnými certifikacemi. Nyní je prostor připraven pro nový "život". Už byla provedena částečná rekonstrukce, další modernizace proběhnou ještě před nastěhováním nového nájemce. Přání mohou být ještě zohledněna. Fotografie zhruba odrážejí aktuální stav.
Obchod se nachází jen 2 minuty chůze od atraktivní pěší zóny, stejně jako od nákupního centra Marktkauf, lékařů a škol. Zastávky vlaku (linka 7) a autobusu jsou prakticky přímo před dveřmi.
Frechen se nachází přímo před branami Kolína nad Rýnem a má velmi dobré dopravní spojení (A1 / A4). Letiště nebo katedrála v Kolíně jsou vzdáleny přibližně 15 km.
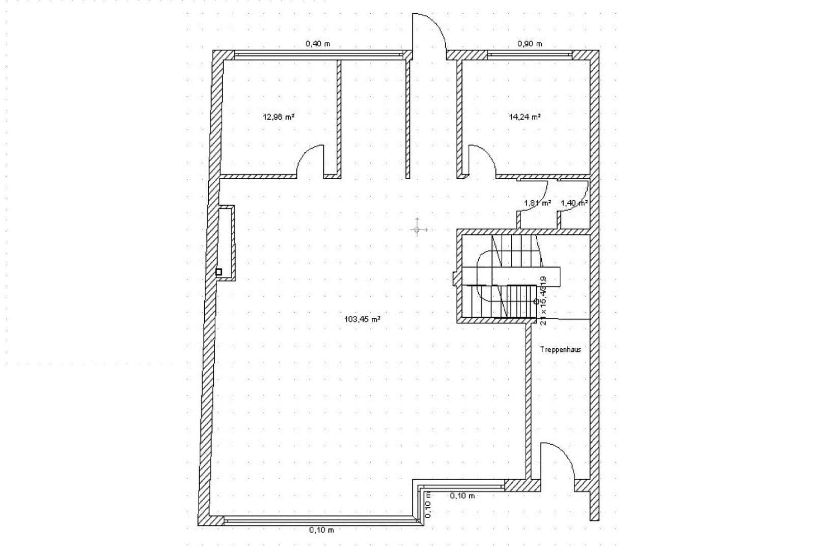
Redukce plochy je možná. V takovém případě by bylo k pronájmu pouze přední část obchodu, přičemž celková plocha by se snížila na přibližně 55 m². Pokud by to pro vás bylo zajímavější, neváhejte mě kontaktovat.
K objektu lze pronajmout také parkovací místo na dvoře. Dále jsou k dispozici parkovací místa s možností dobíjení.
Parametry nemovitosti
| Stáří | Nad 50 let |
|---|---|
| Číslo inzerátu | 1010531 |
| Cena za jednotku | 11,60 € / m2 |
| Dostupné od | 1. 7. 2026 |
|---|---|
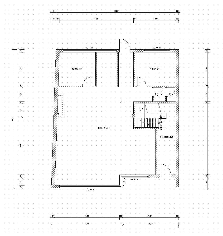
| Plocha nebytového prostoru | 130 m² |
Co tato nemovitost nabízí?
| Bezbariérový přístup | |
| MHD 4 minuty pěšky |
| Sklep | |
| Parkování |
V okolí nemovitosti najdete
Stále hledáte to pravé?
Nastavte si hlídacího psa. Nabídky vybrané na míru dostanete souhrnně 1× denně e-mailem. S Premium profilem máte k ruce hlídačů rovnou 5 a když se něco objeví, informují vás obratem.

























