Pronájem kanceláře • 110 m² bez realitkyPoststr. 17, , Braniborsko
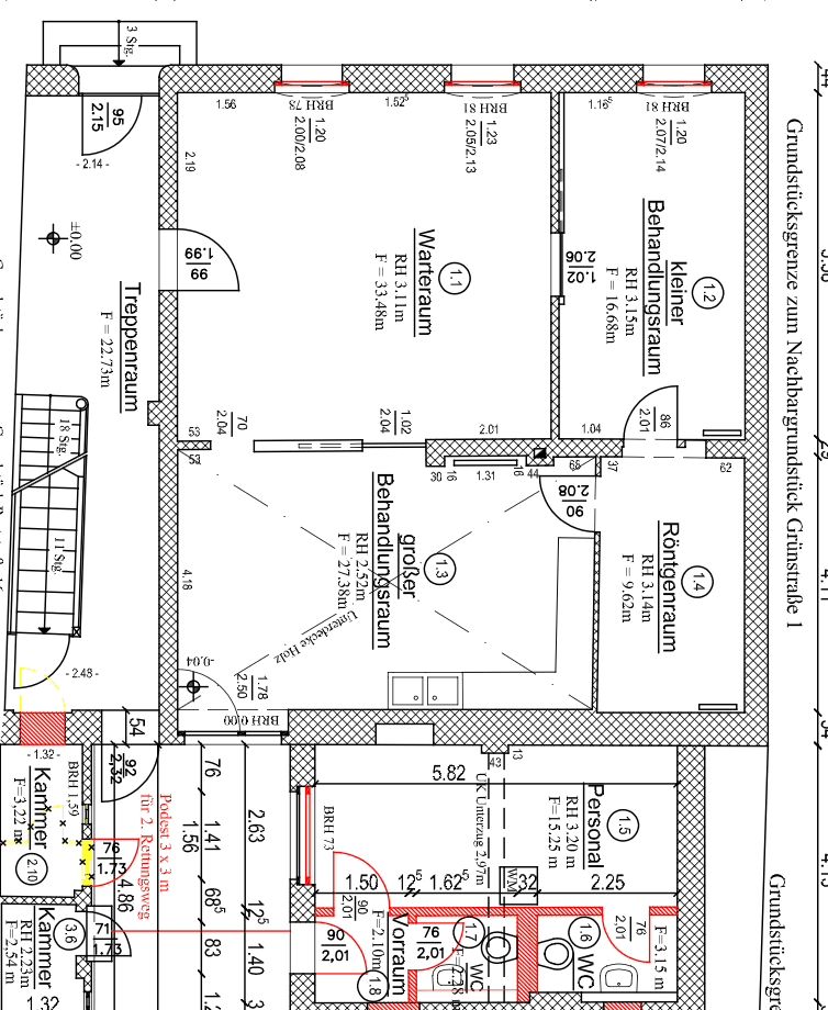
Poststr. 17, , BraniborskoMHD 1 minuta pěškySvětlá jednotka v přízemí ve centrální poloze, ideální jako ordinace, kancelář nebo advokátní kancelář. Promyšlené uspořádání prostor s několika samostatnými místnostmi a čekárnami, samostatným WC a vlastním vstupem na dvůr činí jednotku okamžitě využitelnou – bez ohledu na zamýšlené využití.
Hlavní přednosti
– Více místností flexibilně využitelných
– K dispozici čekárna a přijímací prostor
– Terasa s přístupem na dvůr
– Centrální poloha, snadná dostupnost
Možnosti využití
Struktura prostoru je obzvláště vhodná pro:
– Lékařskou či terapeutickou ordinaci – léčebny, čekárna a prostor pro personál jsou již funkčně uspořádány
– Právnickou kancelář či daňovou kancelář – reprezentativní poloha v ulici Poststraße, diskrétní rozmístění místností
– Kancelář nebo poskytovatele služeb – flexibilní využití jednotlivých místností
Beelitz je rostoucí malé město v okrese Potsdam-Mittelmark s dobrou dopravní dostupností k Berlínu a Potsdamu. Ulice Poststraße se nachází v centru a je snadno dostupná jak autem, tak i veřejnou dopravou. V bezprostřední blízkosti je dostupné dostatek parkovacích míst.
Parametry nemovitosti
| Stav | Po rekonstrukci |
|---|---|
| Plocha kanceláře | 110 m² |
| Číslo inzerátu | 1010667 |
|---|---|
| Cena za jednotku | 12,91 € / m2 |
Co tato nemovitost nabízí?
| MHD 1 minuta pěšky |
V okolí nemovitosti najdete
Stále hledáte to pravé?
Nastavte si hlídacího psa. Nabídky vybrané na míru dostanete souhrnně 1× denně e-mailem. S Premium profilem máte k ruce hlídačů rovnou 5 a když se něco objeví, informují vás obratem.








