Prodej domu 6+1 • 124 m² bez realitky, Bavorsko
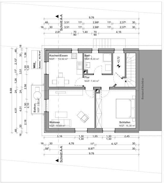
, BavorskoMHD do minuty pěškyDvojrodinný dům byl postaven či rozšířen v roce 1972 v masivním provedení a v letech 2025/2026 kompletně zrekonstruován. Díky rozdělení do dvou úrovní je možná jeho využitelnost jak jako dvojdomovní dům, tak i jako rodinný dům pro jednu rodinu. Nemovitost disponuje 6 pokoji a dvěma koupelnami s dešťovou sprchou a vanou. Obytná plocha činí přibližně 124 m². Dům byl zrekonstruován s vysoce kvalitním vybavením a nabízí na dvou patrech spoustu prostoru pro celou rodinu. Štědrý pozemek o rozloze přibližně 550 m² zve k posezení. Na pozemku se nacházejí dvě parkovací místa pro automobily, každé vybavené 11kW wallboxem. Budova je kompletně zkolaudovaná se sklepem, takže nabízí dostatek úložného prostoru. Navíc byl přistavěn balkon. Nemovitost byla energeticky kompletně zrekonstruována. Vnější izolace, tepelné čerpadlo, fotovoltaický systém, ventilační systém a trojnásobně zasklená okna činí fosilní paliva zbytečnými. V celém objektu byly položeny vysoce kvalitní vinylové podlahy. Lokalita je ideální – po silnici B16 se do Regensburgu dostanete za pouhých 5 minut a autobusová zastávka se nachází v bezprostřední blízkosti. Nemovitost je momentálně ve fázi dokončovacích prací a bude k nastěhování od května 2026.












