Prodej bytu 2+1 • 55 m² bez realitkyBahnhofstraße 10, , Bavorsko
Bahnhofstraße 10, , BavorskoMHD 1 minuta pěšky • ParkováníTento atraktivní podkrovní byt vyniká svou světlou a přátelskou atmosférou. Početná okna zajišťují příjemný přísun světla a dodávají místnostem výjimečnou útulnost.
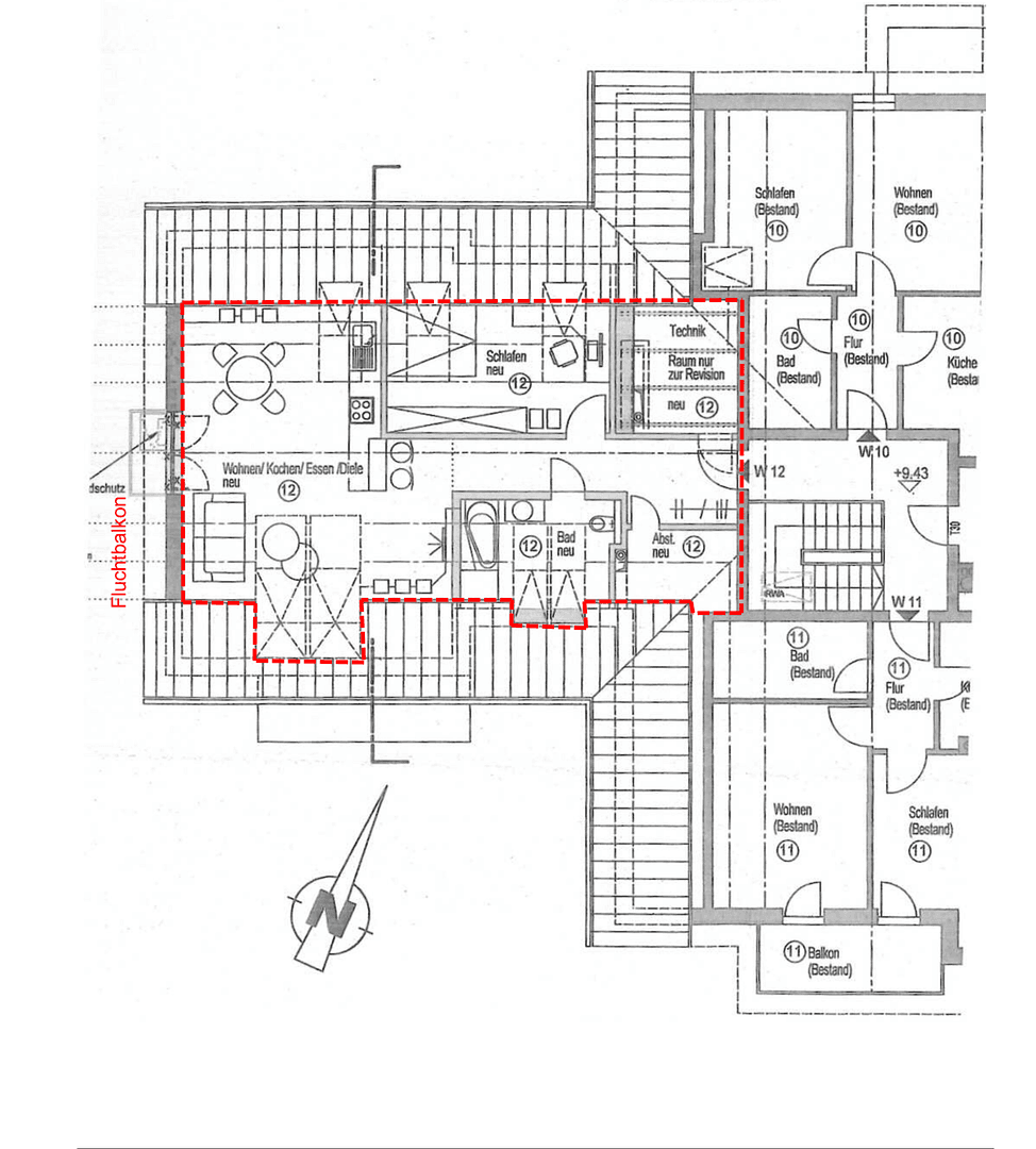
Byt disponuje ložnicí a otevřeným obývacím a jídelním prostorem s kuchyní. Je ideální pro jednotlivce nebo páry, kteří oceňují útulné a zároveň stylové bydlení a potřebují ideální dopravní spojení do Augsburgu.
Byt je rozdělen následovně:
Chodba
2 úložné prostory
Koupelna s denním světlem a vanou
Obývací a jídelna
Otevřená kuchyně
Sklepní kóje (uzamykatelná) – zvláštní užívací právo
Parkovací místo před domem – zvláštní užívací právo
Nemovitost se nachází v dopravně výhodné lokalitě v Asbach-Bäumenheim a nabízí optimální podmínky pro dojíždějící. Díky bezprostřední blízkosti k federální silnici B2 a B16 lze města Augsburg, Donauwörth a Ingolstadt rychle a bez komplikací dosáhnout.
Místní vlakové nádraží Asbach-Bäumenheim zajišťuje dobrou dopravní dostupnost regionální železniční dopravy s pravidelnými spoji, zejména do směrů Augsburg a Donauwörth. Tím je také možné pohodlné dojíždění bez auta.
Díky dobře vybudované infrastruktuře a strategicky výhodné poloze profitují pracující nejen z krátkých dojezdových časů, ale také z klidného a přírodou obklopeného bydlení mimo rušné aglomerace.
Kombinace efektivního dopravního spojení a vysoké kvality života činí tuto lokalitu zvláště atraktivní pro dojíždějící, kteří hledají vyváženou rovnováhu mezi prací a odpočinkem.
Nádraží je dosažitelné pěšky.
Světlé a přitažlivé schodiště
Pečlivě udržovaný obytný dům
Váš kontaktní zástupce:
Christine Wittig 0177 673 29 89
Wittig&Fritz Immobilien GmbH & Co KG
Ingeborg-Bachmann-Straße 27
89134 Blaustein
Telefon: (0163) 7343591, (0178) 7147703
Registrace: AG Ulm HRA 727927
Zastupuje: Wittig&Fritz Verwaltungsgesellschaft mbH
Sídlo: Ingeborg-Bachmann-Straße 27
89134 Blaustein
Registrace: AG Ulm HRB 743473
Ředitelé: Stephan WITTIG, Paul-Dieter FRITZ










