
Prodej bytu 4+1 • 98 m² bez realitkyAllerseeweg 14, , Bavorsko
Allerseeweg 14, , BavorskoMHD 1 minuta pěškyUšetříte 11 780 eur na makléřské provizi!
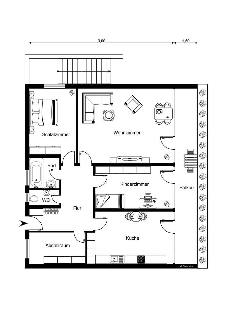
V žádané rezidenční lokalitě Höchberg Hexenbruch u Würzburgu se nachází tento prostorně řešený, bezbariérový byt v přízemí. Jednotka byla původně plánována jako byt se 4 pokoji, nicméně byl realizován ve verzi se 3 pokoji. Díky tomu vzniká mimořádně otevřený, světlý pocit prostoru s velkými obytnými částmi.
V případě potřeby lze byt opět využít jako 4-pokojový: ve sklepním prostoru jsou již připraveny přípojky pro kuchyň, neboť zde byla původně umístěna kuchyně. Současná kuchyň byla původně plánována jako ložnice a může být odpovídajícím způsobem znovu využita. Tím pádem nabízí byt flexibilní využití jako 3- nebo 4-pokojový – dle aktuální životní situace.
Rozložení místností & Zvýrazněné přednosti:
Už při vstupu do bytu zaujme prostorná vstupní část s velkým úložným prostorem a bohatým úložným potenciálem – což je v porovnání s obdobnými objekty vzácností.
Obývací pokoj, kuchyň a dětský pokoj mají všechny jednu kompletní stěnu s podlahovými okny. Ta nejenže zajišťují vynikající světelné podmínky, ale také umožňují přímý vstup na velký, krytý balkon.
Balkon se nachází na boční straně domu, je příjemně tichý a nabízí výhled do zeleně – ideální pro relaxaci venku s vysokou mírou soukromí.
Sanitární vybavení:
• Samostatná toaleta s denním světlem
• Koupelna s vanou a denním světlem
Oba prostory těží z přirozeného osvětlení a větrání.
Stav & Vybavení:
Byt byl zrenovován a představuje se ve velmi udržovaném stavu. Částečný inventář nábytku je součástí kupní ceny, což je zvláště zajímavé pro investory nebo obyvatele s krátkodobým plánem nastěhování.
Poloha v přízemí umožňuje zcela bezbariérový přístup – pohodlný pro všechny věkové skupiny.
Parkovací místa (dle potřeby):
• Parkovací stání nad zemí: 10 000 €
• Parkovací stání v podzemní garáži: 15 000 €
Obě parkovací místa lze volitelně zakoupit navíc.
Allerseeweg 14, Höchberg. Byt se nachází v žádané rezidenční oblasti Höchberg–Hexenbruch u Würzburgu – jedné z nejžádanějších a nejkvalitnějších lokalit v okolí Würzburgu. Okolí se vyznačuje udržovanou zástavbou, příjemným sousedstvím a hojností zeleně. Obchodní možnosti, mateřská školka, školy a další zařízení každodenní potřeby jsou v krátké vzdálenosti. Rovněž je výborné spojení s Würzburgem a dálnicí. Kombinace klidného bydlení, dobré infrastruktury a přírodního prostředí činí tuto lokalitu velmi atraktivní.





















