
Pronájem kanceláře • 120 m² bez realitkyBuckower Damm 235 Berlin Buckow Berlin 12349
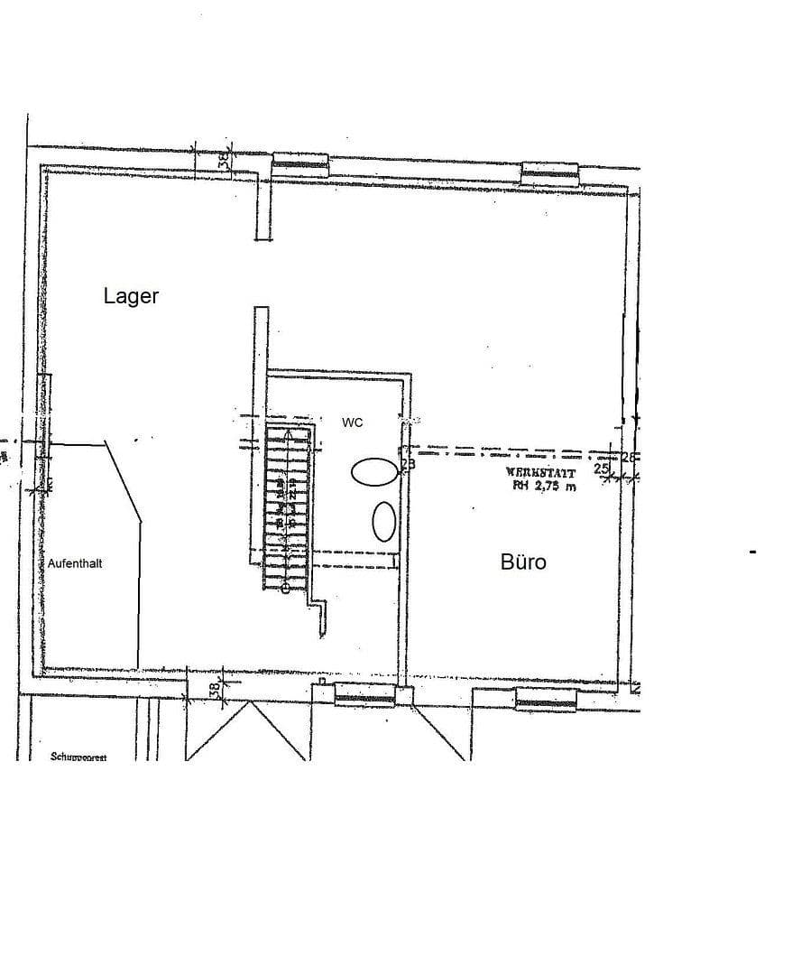
Buckower Damm 235 Berlin Buckow Berlin 12349MHD 1 minuta pěšky • ParkováníBytová jednotka se pronajímá na dvoře pozemku Buckower Damm 235 a jedná se o podnikatelskou jednotku s kanceláří, občanským prostorem a skladovými prostory v přízemí o rozloze cca 120 m². Na pozemku je rovněž umístěna truhlářská dílna/kuchyňské studio.
Podnikatelská jednotka se nachází nedaleko křižovatky Buckower Damm / Johannisthaler Chaussee a je dopravně výborně dostupná díky několika autobusovým linkám. Nejbližší příjezdy z AB (Gradestr. a Johannisthaler Chaussee) jsou vzdáleny cca 4 km.
Kancelář a prostor za ní jsou vybaveny laminátovou podlahou. U skladu je zajištěn druhý, větší vstup.
Energetický průkaz je v žádosti.
Parametry nemovitosti
| Dostupné od | 20. 4. 2026 |
|---|---|
| Číslo inzerátu | 1011312 |
| Cena za jednotku | 10,42 € / m2 |
| Stav | Dobrý |
|---|---|
| Plocha kanceláře | 120 m² |
Co tato nemovitost nabízí?
| MHD 1 minuta pěšky |
| Parkování |
V okolí nemovitosti najdete
Stále hledáte to pravé?
Nastavte si hlídacího psa. Nabídky vybrané na míru dostanete souhrnně 1× denně e-mailem. S Premium profilem máte k ruce hlídačů rovnou 5 a když se něco objeví, informují vás obratem.















