Prodej domu • 250 m² bez realitkyHauptstr. 151 Mannheim-Feudenheim Feudenheim Baden-Württemberg 68259
Pečlivě zrestaurovaný polodvojdom ve stylu secese s luxusními detaily a nejmodernější technikou
Uprostřed malebné městské části Feudenheim v Mannheimu vzniká opravdový klenot bydlení:
Starší polodvojdom, pečlivě zrestaurovaný, který spojuje historický charakter s nejmodernější technikou a luxusními detaily.
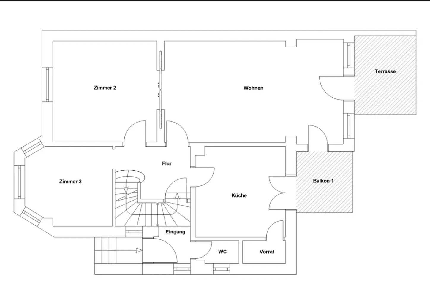
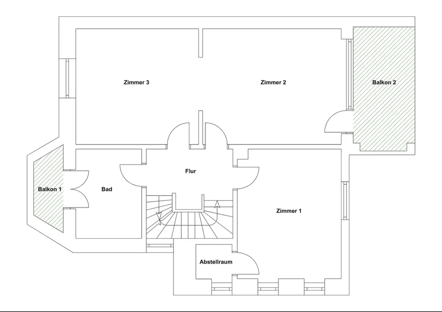
Na přibližně 250 m² obytné plochy se rozprostírá promyšlené dispozice s devíti místnostmi, dvěma balkony, zahradou (jihozápadní strana), garáží a parkovacím místem – ideální pro rodiny, které kladou důraz na design, komfort a udržitelnost.
Luxusní vybavení zahrnuje elegantní dubovou parketu v rybí kost, terazzo v kuchyni a koupelně, trojskleněná dřevěná okna s elektrickými hliníkovými rolety, hladce omítnuté stěny a stropy s výškou přes 2,90 metru – což jednoznačně podtrhuje důraz na styl a prostornost.
Interiér oslní italským designem koupelen s černými armaturami od Gessi, moderními umyvadly značky neoro, zakázkovým koupelnovým nábytkem a designovou keramikou od Kartell by Laufen – to vše doplněno o přírodní kámen evokující nadčasovou eleganci.
Nejvyšší komfort bydlení zajišťuje chytré řízení světel a rolet, videopředvolací systém, spínač JUNG LS990, samostatné hostinské WC, praktická prádelna a připravený prostor pro home-office v horním patře.
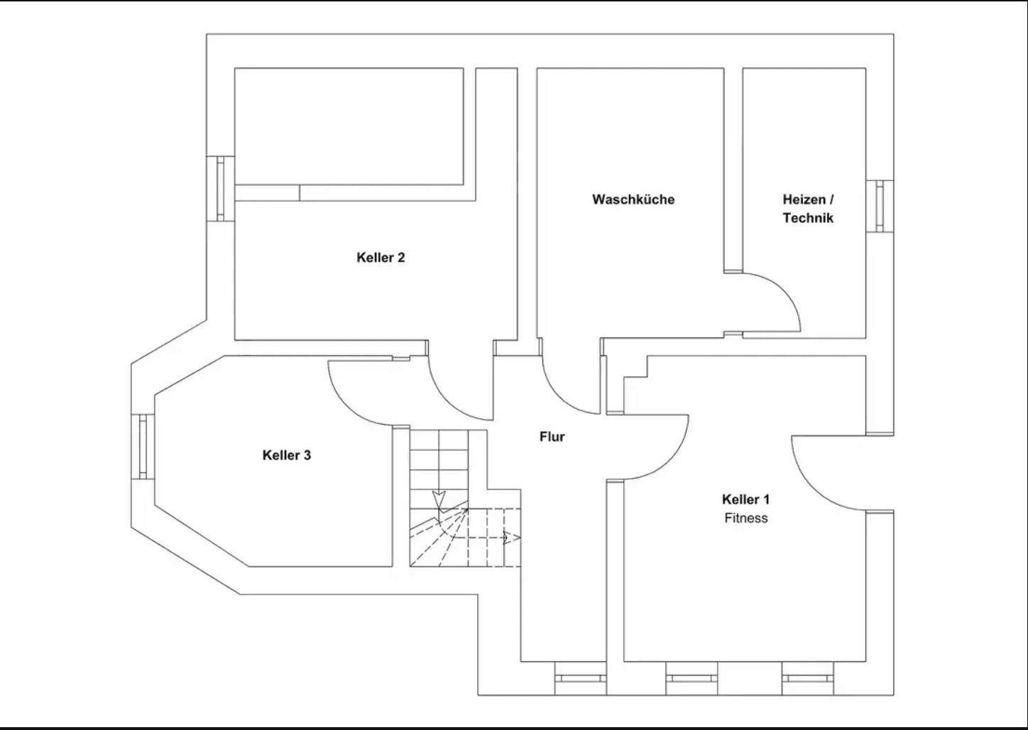
Moderní vzduchové tepelné čerpadlo, prostorný sklep a předinstalovaná přípojka pro elektromobilitu dokonale doplňují udržitelný energetický koncept.
Feudenheim sám o sobě nabízí pečlivě udržované ulice, vysokou kvalitu bydlení a blízkost centra – jeden z nejžádanějších rezidenčních lokalit Mannheimu, ideální pro ty, kteří hledají něco výjimečného.
Dům je v současnosti v rámci celkové rekonstrukce. Dokončení je plánováno do ledna 2026. Kdo se rozhodne nyní, může mít vliv na finální úpravy.
Váš nový domov se nachází uprostřed malebné městské části Feudenheim v Mannheimu.
Nabídka obchodů a služeb, převážně rodinně orientovaných, pokrývá všechny potřeby. Navíc se každou pátek u radnice koná týdenní trh. Oblast dále nabízí několik jeslí, základní školu, reálnou školu i gymnázium pro děti a mládež.
Obchody, lékaři a kavárny jsou pohodlně dosažitelné pěšky. Městská hromadná doprava (autobusy, tramvaje) je vynikajícím způsobem rozvinutá – centrum Mannheimu, Heidelberg i Frankfurt jsou rychle dostupné.
Blízký řeka Neckar, četné zelené plochy a dobře vybudovaná síť cyklostezek nabízejí odpočinek přímo za prázdnými dveřmi.
Pečlivě zrestaurovaný starší polodvojdom s luxusními detaily a nejmodernější technikou:
• Podlahy: Parketa ve vzoru rybí kost z dubu, stylové dřevěné podlahové desky a terazzo ve všech prostorách
• Okna: Trojskleněná dřevěná okna s elektricky ovládanými hliníkovými rolety
• Stěny: Hladce omítnuté povrchy (bez tapet), natřené na bílou – ideální pro moderní design
• Koupelny: Vysoce kvalitní přírodní kamenný vzhled, elegantní design s italskými černými armaturami Gessi, moderní umyvadla od neoro a zakázkový koupelnový nábytek
• Sanitární vybavení: Designová keramika od Kartell by Laufen
• Chytrá domácnost: Inteligentní ovládání světel a rolet, integrovaný videopředvolací systém, elegantní spínače od JUNG LS990
• Energetické řešení: Nové, energeticky účinné vzduchové tepelné čerpadlo s výměníkem tepla
• Sklep: Prostorný, suchý sklep s dostatkem úložného prostoru pro koníčky, zásoby nebo techniku
• Hostinské WC v přízemí
• Pracovna/Home-office v 1. nebo 2. patře
• Elektrické a vodovodní přípojky v zahradě (příprava pro E-nabíječku)
• Nová rozvody (voda, kanalizace, topení)
• Odolné proti vloupání vstupní dveře
• Výška místností přibližně 3 metrů
• Samostatná prádelna umístěná v kuchyni
Parametry nemovitosti
| Stáří | Nad 50 let |
|---|---|
| Číslo inzerátu | 1011485 |
| Užitná plocha | 250 m² |
| Celkem podlaží | 3 |
| Stav | Po rekonstrukci |
|---|---|
| PENB | B - Velmi úsporná |
| Plocha pozemku | 311 m² |
| Cena za jednotku | 5 920 € / m2 |
Co tato nemovitost nabízí?
| Balkón | |
| Garáž | |
| Parkování | |
| Terasa |
| Sklep | |
| MHD 1 minuta pěšky |










