
Pronájem bytu 2+1 • 58 m² bez realitkyObere Rodstr. 3 Pforzheim Pforzheim Baden-Württemberg 75173
Obere Rodstr. 3 Pforzheim Pforzheim Baden-Württemberg 75173MHD 1 minuta pěškyTento světlý a dobře uspořádaný byt okouzlí svou příjemnou obytnou atmosférou a promyšleným rozmístěním místností. Dvě prostorné místnosti plus úložný prostor nabízejí rozmanité možnosti využití a vytvářejí komfortní domov.
Dům byl v roce 2024 energeticky kompletně zrekonstruován – s 16 cm venkovní izolací a trojitě zasklenými okny, elektrickými žaluziemi, novými stěnovými a podlahovými krytinami a kompletní výměnou všech rozvodů. To zajišťuje přehledné dodatečné náklady. Jedním z vrcholů je podlahové vytápění, které dodává příjemné teplo v zimě.
Kromě velkého a útulného obývacího-jídelního pokoje s úžasnou vinylovou podlahou ve stylu loft z dubu se nachází světlá ložnice a úložna, ve které lze umístit pračku a sušičku. Moderní, téměř nová kuchyně je vybavena praktickými vestavěnými skříňkami a elektrospotřebiči (včetně indukční varné desky, trouby, myčky nádobí, digestoře a velké kombinované chladničky-mrazáku) a nabízí dostatek úložného prostoru pro každodenní použití. Nájemné za kuchyň činí 80 eur měsíčně navíc ke studené nájemné.
Pěkný balkon je plánován na léto 2026.
Nabídku doplňuje vlastní sklep, který poskytuje další úložný prostor. V klidné obytné čtvrti je navíc obvykle k dispozici dostatek parkovacích míst.
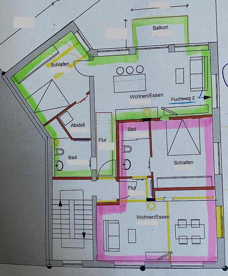
Půdorys je na obrázku vyznačen zeleným okrajem.
Dům pro 8 rodin se nachází ideálně – v docházkové vzdálenosti do centra a zároveň na okraji města, blízko parků a zelených ploch. V bezprostřední blízkosti se také nachází pekárna, zmrzlinárna, restaurace, kavárny a supermarket.
- téměř nová vinylová podlaha v dubovém vzhledu
- podlahové vytápění
- elektrické rolety
- velká koupelna s přístupnou sprchou
- téměř nová vestavěná kuchyně se všemi elektrospotřebiči
Kontaktujte nás ještě dnes pro prohlídku!
Prosím, uveďte počet osob, které se nastěhují, důvod vašeho plánovaného stěhování, vaše povolání a čistý příjem a také něco o vás, abychom vás mohli lépe poznat jako potenciálního nájemce.
V okolí nemovitosti najdete
Stále hledáte to pravé?
Nastavte si hlídacího psa. Nabídky vybrané na míru dostanete souhrnně 1× denně e-mailem. S Premium profilem máte k ruce hlídačů rovnou 5 a když se něco objeví, informují vás obratem.










