Prodej domu • 217 m² bez realitkyKatzstraße 23,25, , Porýní-Falc
Katzstraße 23,25, , Porýní-FalcMHD 2 minuty pěšky • GarážU nabízené nemovitosti se jedná o dvojdům, který především zaujme svým prostorným pozemkem s mnoha možnostmi využití. Celková plocha přibližně 4 494 m² je rozdělena na dvě samostatné parcely, z nichž každá má vlastní příjezdovou cestu. Budova byla postavena v roce 1949 v masivní stavbě. V roce 1967 byly provedeny rozsáhlé přestavby a modernizace, při nichž byla mimo jiné obnovena střecha, zmodernizován vnitřní prostor a nainstalována trojsklená okna.
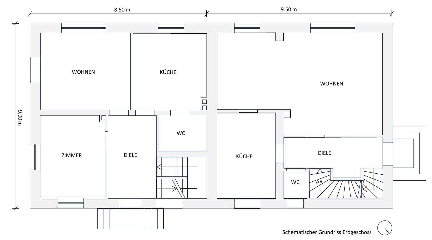
Dvojpodlažní dvojdům s klasickou sedlovou střechou je orientován na východ a západ a nabízí obytnou plochu přibližně 217 m², rozdělenou do celkem 9 místností. Obě poloviční domy disponují dispozicí s halou, kuchyní, toaletou, koupelnou i obývacím pokojem. K dispozici jsou ještě další místnosti – v jednom dvojdomě tři, v druhém čtyři – což otevírá pestré možnosti využití. Kupní cena za celý objekt, který zahrnuje dvojdům a pozemek, činí 650 000 €.
Pozemek se nachází v dobré části města Speicher, mezi centrem a okrajovými oblastmi. V bezprostřední blízkosti evangelické kostely působí vynikajícím dojmem díky velmi příjemnému a rodinně orientovanému prostředí. Okolí se vyznačuje výbornou sociální infrastrukturou, zahrnující základní školu, gymnázium, mateřskou školu a dětské hřiště. Všechny tyto zařízení jsou bezpečně a pohodlně dosažitelné během méně než deseti minut chůze, aniž by bylo nutné přecházet rušné silnice – což je zvlášť výhodné pro rodiny s dětmi. I zdravotní péče je v bezprostředním okolí dobře zajištěná; v těsné blízkosti se nachází zdravotní centrum s fyzioterapeutickou ordinací, zubní lékař a další zdravotnická zařízení. Tato lokalita tak nabízí rovněž dobré podmínky pro bydlení přizpůsobené potřebám seniorů.
Samotný pozemek se vyznačuje prostornou plochou a poměrně malými omezeními v oblasti stavebních možností. Tyto podmínky otevírají atraktivní rozvojové perspektivy jak pro klasickou obytnou výstavbu, tak i pro jiné koncepce bydlení, například v oblasti bydlení přizpůsobeného potřebám starších obyvatel. Městské centrum s katolickým kostelem je vzdáleno pouhých asi 500 metrů a nabízí příjemné občerstvení v podobě kavárny a lékárny. Dva supermarkety se nacházejí přibližně jedno kilo metr a jsou rovněž dobře dostupné. Nabídku doplňuje několik restaurací.
Lokalita také vyniká svou infrastrukturou. Autobusová zastávka je dosažitelná během dvou minut chůze, což zajišťuje přímé propojení s veřejnou dopravou. Nádraží je vzdáleno asi 4 kilometry a autem se k němu dostanete přibližně za deset minut. Vzdušná základna Spangdahlem, významný zaměstnavatel regionu, se nachází jen asi 10 kilometrů od zdejší lokality. Nejbližší větší město Bitburg je dosažitelné přibližně za 20 minut jízdy, zatímco historické město Trier, důležité hospodářské a pracovní centrum regionu, je vzdáleno asi 40 minut. Město Speicher kombinuje velmi atraktivně kvalitu života maloměsta s venkovským šarmem. Okolí je charakterizováno klidným obytným prostředím, přírodou a dobře vybudovanou občanskou vybaveností.
Dvojdům zaujme také svým upraveným vybavením s funkčními detaily. Obytné místnosti mají různorodé podlahové krytiny, mezi něž patří parkety, dlaždice, laminát a linoleum. Jeden z dvojdomů disponuje upravenou vestavěnou kuchyní včetně funkčních elektrických spotřebičů. Obě jednotky mají v přízemí návštěvnickou toaletu. Hlavní koupelny se nachází v horním patře – v jednom domě je k dispozici koupelna se sprchou a toaletou, v druhém domě pak koupelna, sprcha a toaleta. Koupelny byly zmodernizovány v 2010. letech a prezentují se v odpovídajícím moderním stavu.
Vnější prostor představuje zvláštní přednost nemovitosti: Neobvykle velký pozemek nabízí řadu možností využití a prostor pro individuální vybudování. Tuto přednost doplňuje zpevněný příjezd, který je zároveň využitelný jako dvůr a venkovní plocha. Pro automobily je k dispozici dvojgaráž s elektrickým připojením. Co se týče technického vybavení, je instalováno centrální topení na olej, přičemž jeho hořák byl v roce 2014 vyměněn. K dispozici je také energetický štítek. Internetové připojení je v současné době zajištěno přes DSL, přičemž je podána žádost o optické připojení. Další úložný prostor poskytují částečné sklepení a půda budovy.
Parametry nemovitosti
| Stáří | Nad 50 let |
|---|---|
| Číslo inzerátu | 1012278 |
| Užitná plocha | 217 m² |
| Celkem podlaží | 2 |
| Stav | Dobrý |
|---|---|
| PENB | G - Mimořádně nehospodárná |
| Plocha pozemku | 4 494 m² |
| Cena za jednotku | 2 995,39 € / m2 |
Co tato nemovitost nabízí?
| Sklep | |
| Garáž | |
| MHD 2 minuty pěšky |




