Prodej bytu 3+1 • 59 m² bez realitkyAmberg Amberg Bayern 92224
Amberg Amberg Bayern 92224MHD 1 minuta pěšky • ParkováníDiese hochwertig kernsanierte Wohnung ist ideal für Eigennutzer, die sofort einziehen möchten, oder für Kapitalanleger, die eine pflegeleichte und attraktive Wohnung suchen.
Tento vysoce kvalitně zrekonstruovaný byt je ideální pro vlastníka, který se chce okamžitě nastěhovat, nebo pro investory hledající bezúdržbový a atraktivní byt.
Auf rund 60 m² Wohnfläche überzeugt die Wohnung durch eine helle, freundliche Atmosphäre, eine durchdachte Raumaufteilung und eine zeitgemäße Ausstattung. Große Fenster sorgen für viel Tageslicht und schaffen ein angenehmes Wohngefühl.
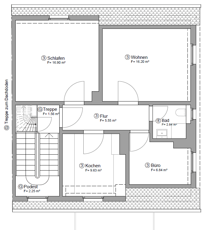
Byt o přibližně 60 m² obytné plochy se vyznačuje světlou, příjemnou atmosférou, promyšleným uspořádáním místností a moderním vybavením. Velká okna zajišťují spoustu denního světla a vytvářejí příjemný pocit z bydlení.
Ein besonderer Vorteil: Durch die umfassende Kernsanierung 2025/2026 des gesamten Hauses befinden sich sowohl die Wohnung als auch das Gebäude in einem sehr guten und modernen Zustand. Für Käufer bedeutet das vor allem eines: kein Renovierungsstau und keine größeren Investitionen in den nächsten Jahren.
Jedinečná výhoda: Díky komplexní rekonstrukci celého domu v letech 2025/2026 jsou jak byt, tak budova ve velmi dobrém a moderním stavu. Pro kupující to především znamená jedno – žádné opožděné renovace a žádné větší investice v následujících letech.
Highlights auf einen Blick
Hlavní výhody na první pohled
• ca. 60 m² Wohnfläche
• cca 60 m² obytné plochy
• Komplett kernsaniertes Gebäude
• Kompletně zrekonstruovaná budova
• Sofort bezugsfertiger Zustand – keine Renovierung notwendig
• Stav okamžitě k nastěhování – renovace nejsou nutné
• Sehr helle Räume durch große Fensterflächen
• Velmi světlé místnosti díky velkým okenním plochám
• Moderne LED-Deckenspots für stilvolle Lichtgestaltung
• Moderní LED stropní světla pro stylové osvětlení
• Elektrische Rollläden für Komfort und Energieeffizienz
• Elektrické rolety pro pohodlí a energetickou účinnost
• Modernes Badezimmer mit Fenster & Handtuchheizung
• Moderní koupelna s oknem a topením pro ručníky
• Hochwertige Bodenbeläge
• Kvalitní podlahové krytiny
• Für zusätzlichen Wohnkomfort wird in der Wohnung noch eine Klimaanlage installiert
• Pro zvýšení komfortu je v bytě plánována instalace klimatizace
• Kellerabteil mit Waschmaschinenanschluss
• Sklepní kóje s připojením pro pračku
• Zugang zum Dachboden
• Přístup na půdu
• Gemeinschaftlich nutzbarer Garten
• Společná zahrada
Der Garten hinter dem Haus bietet zusätzlichen Freiraum und ist besonders in den warmen Monaten ein attraktiver Ort zum Entspannen.
Zahrada za domem poskytuje další volný prostor a je obzvlášť v teplých měsících atraktivním místem pro odpočinek.
Die Wohnung befindet sich im 2. Obergeschoss und ist über ein gepflegtes Treppenhaus erreichbar. Das Haus umfasst insgesamt nur drei Wohneinheiten, wodurch eine ruhige und private Wohnatmosphäre entsteht.
Byt se nachází ve 2. patře a je přístupný z udržovaného schodiště. Dům obsahuje celkem pouze tři bytové jednotky, což zajišťuje klidnou a soukromou atmosféru bydlení.
Durch die Kombination aus moderner Ausstattung, gepflegtem Gesamtzustand und attraktiver Größe eignet sich die Wohnung sowohl hervorragend für Eigennutzer als auch als langfristig stabile Kapitalanlage.
Díky kombinaci moderního vybavení, udržovaného celkového stavu a atraktivní velikosti je byt vhodný jak pro vlastní bydlení, tak jako dlouhodobě stabilní investice.
Zur Wohnung gehört ein komfortabler Stellplatz im Innenhof direkt vor der Haustür. Dieser wird gemeinsam mit der Wohnung verkauft. Der Gesamtkaufpreis beträgt 214.500 € (199.500 € für die Wohnung zzgl. 15.000 € für den Stellplatz). Es fallen keine Maklergebühren an.
K bytu náleží pohodlné parkovací místo ve vnitřním dvoře přímo před domem. Toto místo se prodává společně s bytem. Celková kupní cena činí 214 500 € (199 500 € za byt plus 15 000 € za parkovací místo). Realitní kanceláři nejsou účtovány žádné poplatky.
Die Wohnung befindet sich in der Pfistermeisterstraße in 92224 Amberg. Die Lage überzeugt durch eine ruhige und gewachsene Wohnumgebung mit gleichzeitig guter Anbindung. Einkaufsmöglichkeiten, öffentliche Verkehrsmittel sowie Einrichtungen des täglichen Bedarfs sind schnell erreichbar.
Byt se nachází na ulici Pfistermeisterstraße v 92224 Amberg. Lokalita zaujme díky své klidné a vyspělé obytné oblasti a zároveň vynikající dopravní dostupnosti. Obchody, veřejná doprava a zařízení pro každodenní potřeby jsou snadno dosažitelné.
Besonders attraktiv ist auch die Nähe zum Amberger Mariahilfberg. Das beliebte Naherholungsgebiet mit zahlreichen Spazier- und Wanderwegen liegt nur wenige Minuten entfernt und bietet viel Natur direkt vor der Haustür. Gleichzeitig ist auch die Amberger Innenstadt schnell erreichbar.
Obzvlášť atraktivní je také blízkost k Amberger Mariahilfberg. Oblíbená oblast pro rekreaci s četnými pěšími a turistickými stezkami se nachází jen několik minut odtud a nabízí spoustu přírody přímo před domem. Zároveň je rychle dostupné i centrum města Amberg.
Der Energieausweis wird gerade erstellt.
Energetický průkaz je právě ve fázi vyhotovení.














