Prodej nebytového prostoru • 2889 m² bez realitky, Bavorsko
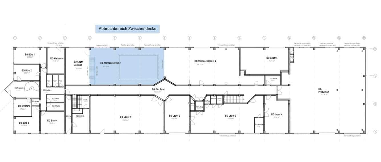
, BavorskoMHD 4 minuty pěšky • VýtahObjekt je využíván jako budova určená pro výrobu a administrativu. Vstup do kancelářských prostor se nachází na západní straně, přímo u příjezdové komunikace pozemku. Jak studio, tak výrobní hala disponují velkými rolovacími vraty. Tyto prostory mají k vysokým halám přizpůsobenou výšku. Dále jsou k dispozici tři další místnosti s menšími vraty (sklad 5, montážní oblast 2, sklad 2).
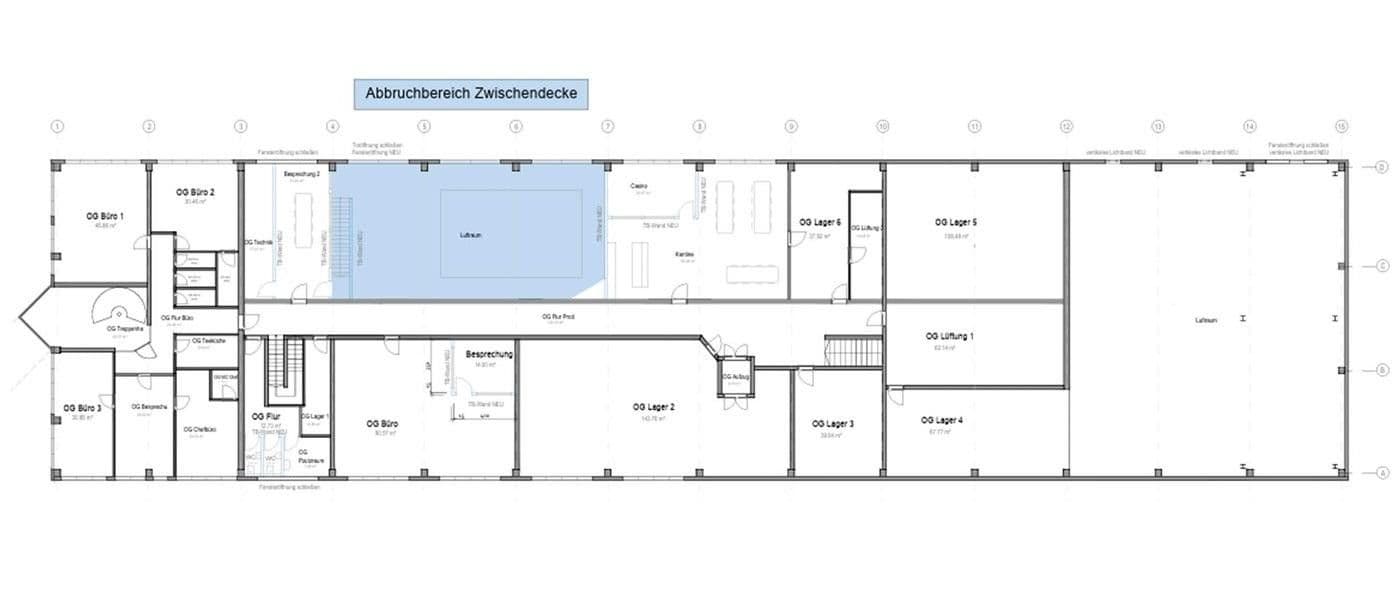
Na obou podlažích se pro horizontální přípojku využívá středovým umístěný chodba. Na západní straně budovy je umístěn administrativní sektor, zatímco výroba je umístěna na východní straně. Celkem je zde k dispozici 8 kanceláří. Toalety jsou umístěny na obou podlažích. V horním patře se dále nacházejí 2 zasedací místnosti, kantýna a 5 skladovacích prostor.
Díky konstrukci z železobetónového skeletu je možná velmi dobrá úprava vnitřních prostor. Vertikální přípojka je na východní i západní straně zajištěna schodišti. K tomu je centrálně umístěn také funkční nákladní výtah. 50 venkovních parkovacích míst doplňuje nemovitost a zajišťuje dostatečnou nabídku parkování pro zaměstnance i zákazníky.
V katastru je zapsáno věcné užívací právo. Podrobnosti jsou následující:
- Doba trvání: do roku 2065 s možností prodloužení
- Roční nájemné (tzv. Erbbauzins) činí 8.032,50 €
- Výhoda pro kupujícího: nižší pořizovací náklady
Obec Hengersberg se nachází v srdci Bavorské Švýcarska, asi 10 kilometrů jihovýchodně od Deggendorfu a zhruba 40 kilometrů od města Passau, známého díky setkání tří řek. Jako součást metropolitní oblasti Regensburg nabízí Hengersberg dokonalou rovnováhu mezi venkovským klidem a dobře vybudovanou infrastrukturou.
Hengersberg disponuje výborným dopravním spojením: Dálnice A3 (Regensburg–Passau) je dostupná během několika minut, čímž je zajištěno rychlé spojení s hospodářskými centry Bavorského regionu. Blízkost silnice B533 dále zvyšuje regionální dostupnost. Veřejná doprava, například autobusové linky, zajišťují dobrou dostupnost do Deggendorfu a dalších sousedních obcí. Nejbližší letiště je v Mnichově, asi hodinu jízdy.
V Hengersbergu je k dispozici několik možností nakupování – mimo jiné supermarkety, pekárny, řeznictví i menší specializované obchody. Školy, mateřské školy a zdravotní služby dělají z Hengersbergu atraktivní lokalitu jak pro rodiny, tak pro zaměstnance. Národní park Bavorské Švýcarsko a cyklostezka podél Dunaje se nacházejí v bezprostřední blízkosti a nabízejí široké možnosti pro milovníky přírody.
- 4 klimatizace
- Obecný stav objektu je velmi dobrý, neboť probíhaly pravidelné rekonstrukce:
• Výměna topení: 2015
• Výměna oken: 2019/20, trojitá zasklení
• Renovace fasády: dodatečně provedena, rok výstavby 2019/20
- 50 venkovních parkovacích míst
Návrhy na jednání mohou být posouzeny pouze v případě, že od Vás obdržíme následující údaje: jméno, příjmení, adresa, telefonní číslo, číslo mobilu, e-mailová adresa.
Veškeré údaje o objektu, informace, dokumentace, plány apod. jsou založeny na poskytnutých informacích vlastníků nebo třetích stran. Za správnost a úplnost těchto informací nelze převzít odpovědnost. Je proto na zákaznících, aby si ověřili správnost obsažených informací a údajů.
Parametry nemovitosti
| Stáří | Nad 50 let |
|---|---|
| Číslo inzerátu | 1012363 |
| Plocha pozemku | 5 355 m² |
| Stav | Dobrý |
|---|---|
| Plocha nebytového prostoru | 2 889 m² |
| Cena za jednotku | 584,98 € / m2 |
Co tato nemovitost nabízí?
| MHD 4 minuty pěšky |
| Výtah |




















