Pronájem kanceláře • 45 m² bez realitkyGeorg-Huber-Str. 12 Zorneding, Ortsteil Pöring Bayern 85604
Georg-Huber-Str. 12 Zorneding, Ortsteil Pöring Bayern 85604MHD 4 minuty pěšky • ParkováníPoznámka: Pronájem výhradně podnikatelům s doložitelným DPH.
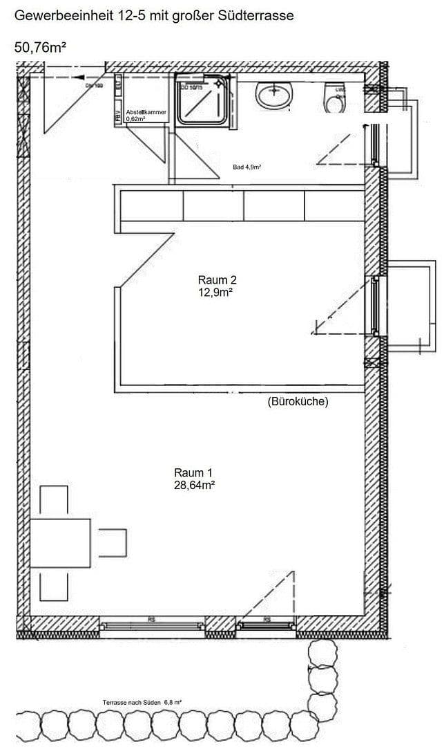
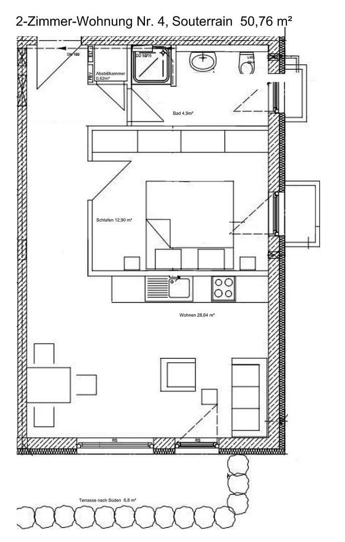
Moderní a světlá obchodní jednotka v suterénu vysoce kvalitní novostavby (2022) v Zornedingu. Plocha o velikosti cca 44,84 m² se ideálně hodí jako kancelář, studio nebo ordinace. Okna od podlahy směřující na jih a vlastní jižní terasa vytvářejí příjemnou pracovní atmosféru. Příležitostné přespání je také možné.
Budova zaujme energeticky efektivní zděnou konstrukcí (A+) se moderním vzduchovým tepelným čerpadlem (žádný olej/plyn) a trojitě zasklenými okny.
Vybavení: koupelna se sprchou, plně vybavená vestavěná kuchyň, reprezentativní schodiště.
Dobrá infrastruktura v docházkové vzdálenosti. S-Bahn (S4/S6) cca 8 minut chůze, dálnice A99 přibližně 5 minut.
Náklady:
880 € čistý nájem + DPH
100 € poplatky za služby + DPH
Smíšená zóna na okraji obchodní oblasti Zorneding West s velmi dobrou infrastrukturou (maloobchod, gastronomie, služby). S-Bahn (S4/S6) 5–8 minut chůze, dálnice A99 cca 5 minut, centrum Mnichova a letiště jsou vzdáleny přibližně 25 minut. V bezprostředním okolí se nachází možnosti pro rekreaci.
Velmi světlá obchodní jednotka s okny od podlahy a přístupem na jižní terasu.
Moderní vestavěná kuchyň (včetně trouby, sporáku, myčky atd.) a koupelna s oknem a bez prahu sprchou.
Další přednosti:
• Optické připojení ve stavbě, multimediální zásuvky k dispozici
• Elektronický sluneční ochranný systém (žaluzie)
• Trojitě zasklená okna s protihlukovou úpravou
• Podlahové topení ve všech místnostech
• Komfortní větrání s rekuperací tepla
• Vysoce kvalitní vinylová podlaha, obklady v koupelně
• Vnitřní dveře v bílé barvě (hedvábně matné)
Bez zprostředkovatelů
Pronájem možný pouze pro podnikatele s doložitelným DPH.
Parametry nemovitosti
| Stáří | Nad 50 let |
|---|---|
| Podlaží | Podlaží neuvedeno |
| Plocha kanceláře | 45 m² |
| Stav | Velmi dobrý |
|---|---|
| Číslo inzerátu | 1012660 |
| Cena za jednotku | 19,56 € / m2 |
Co tato nemovitost nabízí?
| MHD 4 minuty pěšky |
| Parkování | |
| Terasa |
V okolí nemovitosti najdete
Stále hledáte to pravé?
Nastavte si hlídacího psa. Nabídky vybrané na míru dostanete souhrnně 1× denně e-mailem. S Premium profilem máte k ruce hlídačů rovnou 5 a když se něco objeví, informují vás obratem.






















