Prodej domu 3+1 • 98 m² bez realitky, Porýní-Falc
, Porýní-FalcMHD 3 minuty autem • ParkováníLuxusně vybavený bungalow byl dokončen a nastěhován v roce 2024. Kuchyně, zařízená prvotřídními materiály a spotřebiči, stejně jako solární elektrárna s akumulací a invertorem, jsou zahrnuty v kupní ceně – stejně jako carport se sklepkem na nářadí. Energetické řešení je díky spolupráci solární elektrárny, akumulačního modulu, tepelného čerpadla a wallboxu extrémně optimalizováno. Roční náklady na energii pro vytápění a ohřev vody jsou pod 1 000 €. Pěkně udržovaná venkovní zahrada, zdobená přírodními kameny a rostlinami, je opravdovým okouzlením. Velká zastřešená terasa se v létě stává druhým obývacím pokojem. Nastěhujte se a začněte se cítit skvěle!
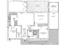
Tento dům představuje dokonalou kombinaci moderního, energeticky efektivního komfortu bydlení a venkovského kouzla s přátelským sousedstvím a živým vesnickým životem s pravidelnými akcemi pro všechny věkové kategorie. Samostatně stojící bungalow, situovaný v klidné části Nastätten s vynikající dopravní dostupností (silnice B 260 – Bäderstraße Wiesbaden – Bad Ems, B 274 – St. Goarshausen – Limburg) a pravidelným autobusovým spojením ze zastávky, představuje nejen ideální útočiště, ale také umožňuje z home office vychutnat pohled do zeleně. Jeho přirozené okolí poskytuje ideální podmínky pro dlouhé procházky, cyklistické výlety a další aktivity v přírodě, například v rozsáhlé turistické oblasti Wispertrails, podél Rheinsteigu či Limes.
Přitom se nemusíte vzdát výhod dobré občanské vybavenosti. V Nastätten (8–10 minut jízdy) naleznete rozmanité možnosti nakupování (např. Aldi, Lidl, Edeka), drogerie, stavebniny, lékárny, optiky, nemocnici, ordinace, základní i střední školy, školky, kino a řadu dalších zařízení. Díky své poloze trvá cesta do atraktivních lokalit jako Koblenz, Wiesbaden, Bad Schwalbach, Bad Ems, Limburg i do regionálních oblastí pro volný čas a rekreaci (Loreley/Mittelrheintal, Rüdesheim/Rheingau/Bingen) mezi 30 a 45 minutami.
Vybavení domu (viz také další informace):
• Kuchyně vybavená prvotřídními materiály a elektrickými spotřebiči
• Spotřebiče: trouba a myčka od Siemens; velká indukční varná deska s integrovaným odsavačem Bora
• Otevřený obývací a jídelní prostor
• Koupelna s dostatkem denního světla a bezbariérovou sprchou v moderním a nenáročném designu
• Podlahové krytiny po celé ploše: jemné kamenické dlaždice s dřevěným vzhledem
• Zahradní sklep na nářadí s elektrickým připojením a venkovním osvětlením – plynulý přechod z carportu přes terasu až do domu
• Možnost využití podkroví
• Dešťová cisterna o objemu 4 000 l
• Rozmanité zahradní nářadí
• Některá okna mají zevnitř další stínění pomocí plisovaných žaluzií
• Všechna okna jsou vybavena elektrickými venkovními rolety
• Vysoce kvalitní moskytiérové sítě u dveří vedoucích na terasu a u různých oken
• Integrované energetické řízení solární elektrárny pomocí aplikace, včetně invertoru, wallboxu a tepelného čerpadla
• Základní konstrukce (základová deska, nosné vnější a vnitřní stěny, stropy a střešní konstrukce) je na vadu zaručena výrobcem až do roku 2054
Další poznámky k aktuálnímu odhadu hodnoty / minimální ceně:
• Průměrné stavební náklady za m² vyššího standardu cca 3 500 € x 98 m² = 343 000 €
• Hodnota pozemku (podle datených hodnot z webu bodensatzwerte-boris.de) pro Brunnenstraße, Weidenbach: 65 € x 650 m² = 42 250 €
• Exteriér / dlažba: 20 000 €
Následující prvky vybavení, zahrnuté v celkové ceně, mohou být využity ke snížení daně z převodu nemovitosti (až 5 % kupní ceny je finančním úřadem uznáváno):
• Kuchyně: 11 200 €
• Solární elektrárna: 20 500 € (lze prodat jako firemní majetek; aktuální hodnota cca 18 000 € plus výnosová hodnota na pět let 2 500 €)
• Carport / sklep na nářadí: 8 000 €


















