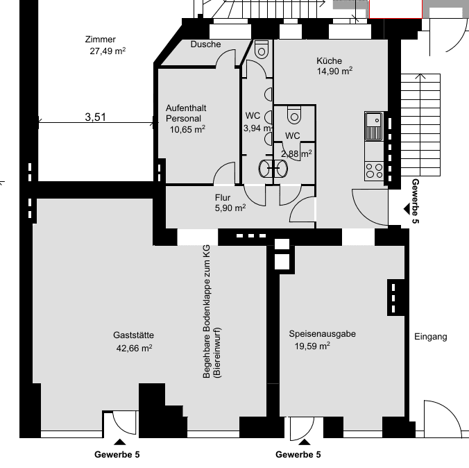
Prodej nebytového prostoru 3+1 • 140 m² bez realitkyBerlin Schöneberg Berlin 10827
Berlin Schöneberg Berlin 10827MHD 1 minuta pěškyRestaurace se nachází v přízemí historické budovy v berlínské čtvrti Schöneberg. Indexovaná nájemní smlouva nabízí plánovatelné příjmy až do 31.07.2029. Poté existuje potenciál na zvýšení hodnoty prostřednictvím nového pronájmu.
V současné době je objekt ještě vytápěn pomocí centrálního olejového kotle. Nový topný systém a další modernizace budovy jsou již plánovány. Náklady na tyto úpravy zatím hradí prodávající.
Restaurace se nachází v žádané berlínské čtvrti Schöneberg (okres Tempelhof‑Schöneberg), kterou charakterizuje architektura Gründerzeit, živé ulice a rozvinutá místní občanská vybavenost. Kavárny, supermarkety a další obchody s každodenními potřebami jsou přímo v dosahu.
Zelené plochy pro krátkou relaxaci jsou v pěší vzdálenosti a také Volkspark Schöneberg‑Wilmersdorf je rychle dosažitelný. V bezprostředním okolí se nachází mateřské školy a základní školy, což podtrhuje příznivou polohu pro každodenní život.
Dopravní spojení je vynikající: autobusová zastávka (cca 100 m), S-Bahn (cca 300 m) a stanice metra (cca 700 m) spojují rychle s City‑West a City‑Ost. Regionální/dálkové nádraží je vzdáleno přibližně 1,2 km a městská dálnice A100 se nachází asi 750 m.












