
Pronájem bytu 2+1 • 43 m² bez realitkyFriesenstraße 57 Magdeburg Stadtfeld Sachsen-Anhalt 39108
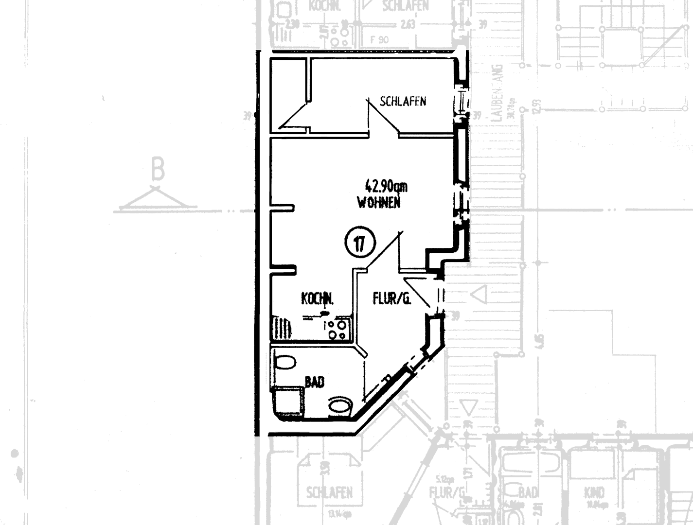
Byt 17 se nachází ve 2. patře zrekonstruovaného předního domu na adrese Friesenstraße 57. S obytnou plochou cca 42,90 m² a dvěma pokoji nabízí tato jednotka dostatek prostoru pro jednotlivce či páry. Rozložení místností je funkční a díky umístění ve vyšším patře je zajištěno dobré přirozené osvětlení obytných prostor.
Dům se nachází v centrální části oblíbené čtvrti Magdeburg-Stadtfeld Ost. Infrastruktura v bezprostředním okolí je velmi dobře rozvinutá:
Supermarkety, pekárny, lékárny a lékaři jsou snadno dosažitelní pěšky. Rovněž nabídka mateřských škol a škol v této čtvrti je rozsáhlá. Spojení s veřejnou dopravou je zajištěno díky nedalekým zastávkám tramvají a autobusů. Hlavní nádraží v Magdeburgu a centrum města jsou dosažitelné za necelých 10 minut. Pro odpočinek a relaxaci slouží mimo jiné nedaleký park podél cesty Schrote.
Byt byl modernizován dle současných standardů a nabízí následující vybavení:
Obývací pokoj a ložnice: Podlahy v obytných místnostech a chodbách jsou opatřeny údržbovým povrchem s dřevěným vzhledem. Stěny jsou natřeny bílou s texturou imitující Raufaser. Charakteristické, mírně zaoblené okenní oblouky typické pro dobu výstavby zůstaly zachovány.
Kuchyň: Byt disponuje předinstalovanou vestavěnou kuchyní s bílými čely a pracovní deskou v dřevěném vzhledu. Vybavení zahrnuje keramickou varnou desku, troubu, myčku nádobí a digestoř. Bílá dlaždicová stěna chrání stěny v pracovní oblasti.
Koupelna: Světlá koupelna je vybavena velkoformátovými dlaždicemi v krémovém odstínu s kamenem připomínajícím vzhledem. Sanitární vybavení zahrnuje vanu, závěsnou toaletu a umyvadlo s odpovídající skříňkou pod ním.
Zaujali jsme Vás? Napište nám prosím zprávu!
Impressum:
Vasto Alpha GmbH
Lilienthalstraße 2
12529 Schönefeld
V okolí nemovitosti najdete

Pronájem bytuAlexander-Puschkin-Str. 58 Magdeburg Stadtfeld Sachsen-Anhalt 39108- 2+1
- 56 m²
500 € + 150 €



Stále hledáte to pravé?
Nastavte si hlídacího psa. Nabídky vybrané na míru dostanete souhrnně 1× denně e-mailem. S Premium profilem máte k ruce hlídačů rovnou 5 a když se něco objeví, informují vás obratem.




