
- 5+kk
- 123 m²
- 569 m²
Ušetříte 1 010 000 Kč
Tato nemovitost již od 59 807 Kč měsíčně s roční úrokovou sazbou od 4,59 %.
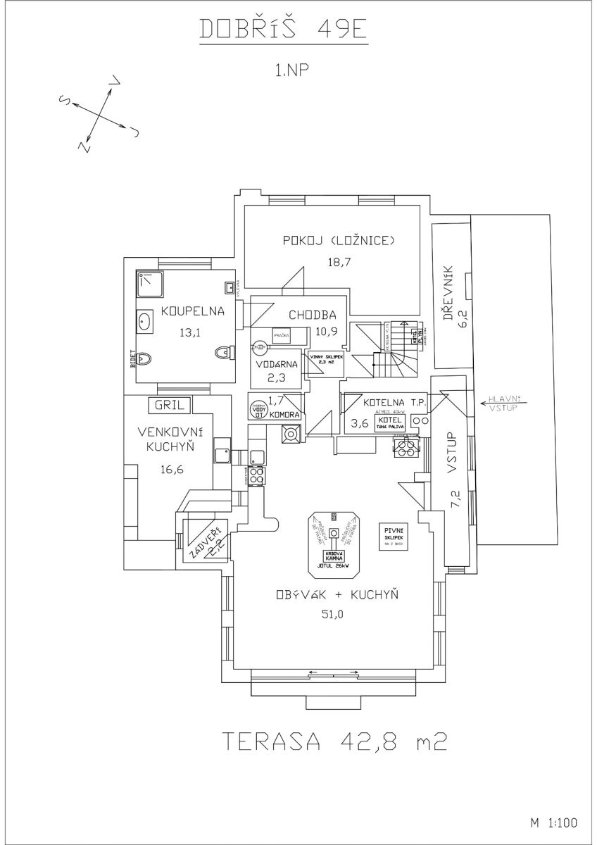
Nabízíme prostorný rodinný dům 5+kk situovaný na okraji Dobříše v klidné lokalitě. Umístění na rozhraní zástavby a lesa přináší soukromí, výhledy do krajiny a každodenní kontakt s přírodou bez kompromisu v dostupnosti služeb – centrum Dobříše 8 minut, dálnice D4 5 minut, Praha (Barrandovský most) 30 minut. Nemovitost je velmi vhodná pro rodinu s dětmi díky bezpečnému prostředí, rozlehlému pozemku a zázemí pro každodenní život i volný čas.
Hlavní přednosti:
• zastavěná plocha 198 m²,
• udržovaná zahrada 1946 m²,
• velkorysá obytná místnost 51 m² + terasa 42 m² orientovaná na jihozápad,
• dvě koupelny, dvě kuchyňské zóny, relaxační místnost v nejvyšším patře,
• bazén, venkovní kuchyně, altán, dílna, kryté parkování, sklady,
• dvě studny, tři zdroje vytápění, septik, ČOV, retenční nádrž.
Původní chata prošla dvěma zásadními rekonstrukcemi s výrazným rozšířením. Výsledkem je domov, který působí útulně, ale zároveň překvapí svou velikostí a funkčností. Ve třech podlažích najdete atypické dispoziční řešení, dvě koupelny, dvě kuchyňské zóny a dokonce i relaxační místnost v nejvyšším patře. Dominantou domu je velká obytná místnost s kuchyní a vysokým stropem (51 m2), ze které je přímý vstup na velkou terasu (42 m2) orientovanou na jihozápad – ideální na dlouhé večery se sklenkou vína a výhledem do krajiny. Pozemek nabízí nejen soukromí, ale i bohaté zázemí: kryté parkování pro dva vozy, venkovní kuchyni s posezením a grilem, bazén (20 m³), altán, dětské hřiště, dílnu a prostorné sklady. Součástí domu je také vinný sklípek (2,3 m²) a malý pivní sklípek, oba přístupné zevnitř domu. Užitná plocha činí 183 m² bez venkovní kuchyně a zastřešené části.
Konstrukce domu kombinuje původní cihlové zdivo a novější část z Ytongu, obojí zateplené. Okna jsou dřevěná eurookna s dvojsklem. Střecha je částečně Bramac a částečně šindel, vše s kvalitní tepelnou izolací.
Vytápění radiátorů UT je řešeno dvěma zdroji: moderní kotel na tuhá paliva Atmos (účinnost 81-88 %) a plynový kotel Junkers (Pb). V obývací místnosti jsou krbová kamna Jotul s rozvodem tepla do patra.
Zásobování kvalitní pitnou vodou zajišťují dvě studny (vrtaná 23 m, kopaná 9 m). Odpad je veden do septiku (20 m³) s možností napojení na čističku a retenční nádrž (10 m³).
V oblasti je nově posílená elektrická infrastruktura vhodná pro další modernizaci (např. tepelné čerpadlo, elektromobilita).
V případě zájmu o prohlídku mě neváhejte kontaktovat.
Prosíme, realitní kanceláře nevolat.
Cena je konečná – neplatíte žádné provize ani poplatky.
Nemovitost je v soukromém vlastnictví bez právních vad.
| Dostupné od | 17. 4. 2026 |
|---|---|
| Konstrukce budovy | Cihla |
| Vybaveno | Vybaveno |
| Vlastnictví | Osobní |
| Poloha domu | Samostatný |
| Plocha pozemku | 2 144 m² |
| Cena za jednotku | 80 219,78 Kč / m2 |
| Stav | Velmi dobrý |
|---|---|
| Dispozice | 5+kk |
| Číslo inzerátu | 1013718 |
| PENB | G - Mimořádně nehospodárná |
| Užitná plocha | 182 m² |
| Rizika | Prověřit » |
| Sklep 2,3 m² | |
| Parkování |
| Garáž | |
| Lodžie 7,3 m² | |
| Terasa 42 m² |
Tato nemovitost již od 59 807 Kč měsíčně s roční úrokovou sazbou od 4,59 %.
