
Prodej bytu 2+1 • 49 m² bez realitkyArnethgasse 63 Wien 16. Bezirk Wien 1160
Arnethgasse 63 Wien 16. Bezirk Wien 1160MHD 2 minuty pěšky • VýtahTento vysoce kvalitně vybavený byt se nachází ve 3. patře (s výtahem) a je momentálně v závěrečné fázi dokončování. Přibližně od poloviny dubna bude byt čerstvě zrenovován a připraven k nastěhování. Prohlídky jsou již nyní možné a případné návrhy na úpravy mohou být po konzultaci ještě zohledněny.
Fotografie pocházejí z již dokončeného bytu se stejným vybavením.
V rámci generální rekonstrukce budou kompletně obnovena všechna rozvody (elektroinstalace a další instalace), budou instalovány nové vnitřní dveře a provedeny nová koupelna se stylovým obklady a odděleným WC – obojí s moderními porcelánovými dlaždicemi o rozměrech 30 × 60 cm.
Obývací a ostatní místnosti se pyšní elegantním podlahovým parketem ve stylu venkovských dřevěných prken, které vytváří teplou a útulnou atmosféru. Nová trojitě zasklená okna a moderní LED stropní osvětlení v předsíni, kuchyni i koupelně dokonale doplňují promyšlené vybavení interiéru.
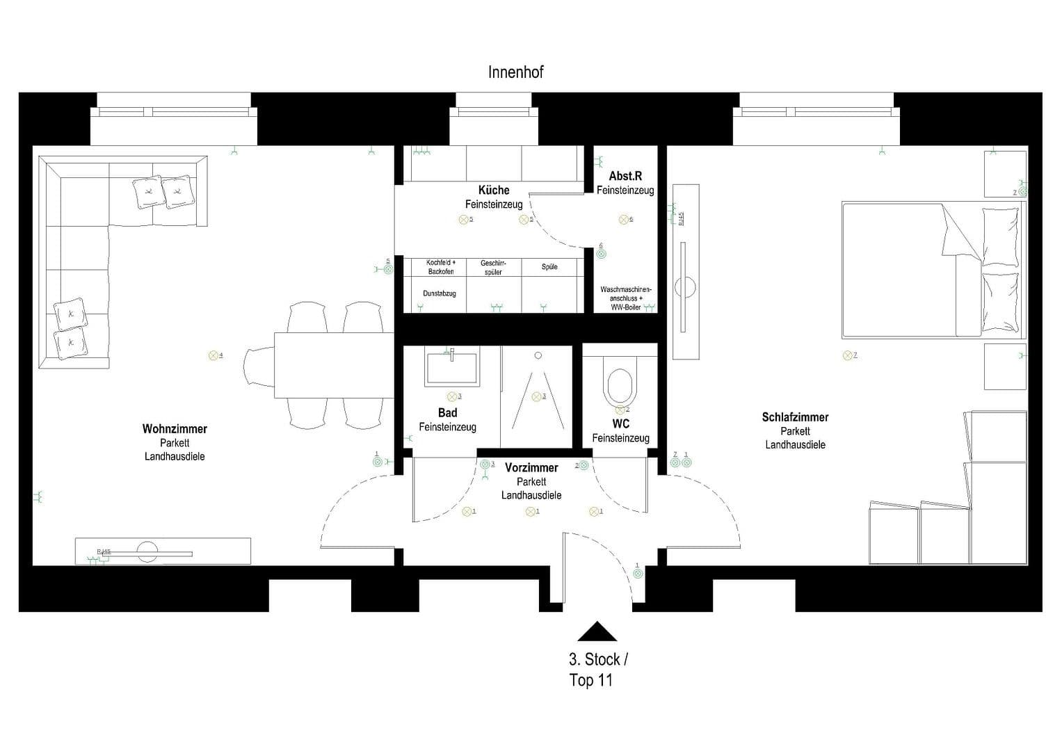
Dispozice bytu je jasně strukturovaná: Všechny místnosti jsou centrálně přístupné ze vstupní haly. Odtud se dostanete přímo do ložnice, obývacího pokoje, koupelny a WC. Ke kuchyni je navíc připojen úložný prostor s připojením pro pračku, což poskytuje dodatečné místo na uskladnění.
Praktická stránka rovněž přesvědčí: K bytu náleží prostorný sklep, který poskytuje další úložný prostor.
Kuchyně je připravena se všemi potřebnými připojeními, takže si můžete svůj kuchyňský prostor upravit dle vlastních představ. Na požádání může být poskytnut i návrh kuchyně.
Nemovitost na adrese Arnethgasse 63 vyniká excelentní dostupností k veřejné dopravě: V docházkové vzdálenosti se nachází několik dopravních prostředků, které zajišťují přímé spojení do centra města i dalších čtvrtí.
Dopravní spojení:
• Přibližně 150 m od bytu se nachází tramvajová zastávka „Redtenbachergasse“, kterou se dostanete přímo do centra města (Schottentor).
• Autobusovými linkami 46A a 46B se rychle dostanete do nedaleké rekreační oblasti Wilheminenberg.
• Stanice metra a rychlokomotivy Ottakring je vzdálena jen několik minut chůze (cca 500 m). Pouhými sedmi minutami jízdy dorazíte do Bahnhofcity WienWest a na nákupní ulici Mariahilferstraße. Za pouhých 14 minut, bez nutnosti přestupu, se dostanete do centrální části města (stanice Stephansplatz).
Nákupní možnosti v okolí:
Jen několik minut chůze od bytu se nachází ulice Ottakringer Straße a Thaliastraße, nejoblíbenější lokální komerční ulice v 16. obvodu. Zde naleznete pestrou nabídku obchodních zařízení. Supermarkety jako Denns BioMarkt, Spar, Billa a Penny se nacházejí v okruhu méně než deseti minut. Drogerie, sportovní obchody, restaurace, kavárny a také trh s ovocem a zeleninou jsou rovněž v docházkové vzdálenosti.
Rekreační oblast Ottakringer Wald:
Bezprostředně v okolí bytu se nachází řada zelených únikových míst, například Ottakringer Wald s dobře vybudovanou sítí cest, a také napojení na městskou pěší trasu č. 4. Tato rekreační oblast nabízí množství lesních hřišť, grilovacích míst a zajímavých lokalit, jako je zámek Wilhelminenberg či Jubilejní věž.
Vybavení a materiály:
• HARO parketová podlaha z dubového dřeva v designu venkovských prken
• Moderní jemná kamenina v koupelně, WC, kuchyni i úložném prostoru
• Stropní osvětlení s LED reflektory v předsíni, koupelně a kuchyni
• Nová trojitě zasklená okna
• Sanitární keramika od značek LAUFEN Pro / Villeroy Boch
• Sprchový systém od Grohe s brausovým termostatem, dešťovou sprchou a ruční sprchou
• Skleněná sprchová zeď s nanovrstvou a bezpečnostním sklem (ESG)
• Vypínače, zásuvky a síťové zásuvky od Berker
MNPV GmbH
Nákup a prodej nemovitostí,
Pronájem a poradenské služby v oblasti nemovitostí
FN 649248b
Obchodní soud: Obchodní soud ve Vídni
E-mailový kontakt: office (at) mnpv.at













