
Pronájem kanceláře • 143 m² bez realitkyPrinz-Albert-Strasse 13 Bonn Südstadt Nordrhein-Westfalen 53113
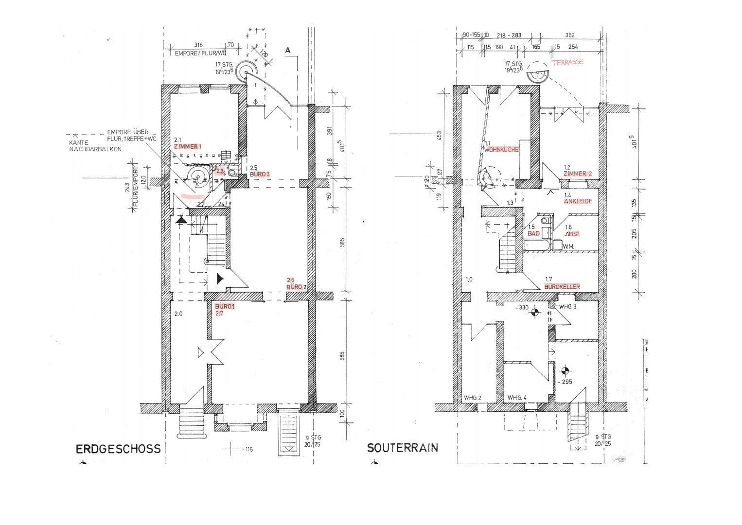
Prinz-Albert-Strasse 13 Bonn Südstadt Nordrhein-Westfalen 53113MHD 1 minuta pěškyReprezentativní kancelářské či ordinace prostory v přízemí a v přistupném suterénu, který je na úrovni zahrady, památkově chráněného domu z doby zakladatelů, se hodí pro různé využití, a to i v kombinaci s bydlením, protože některé místnosti jsou volitelně přístupné samostatně. Dům se nachází v centru, jen pár kroků od bonnského hlavního nádraží, a díky vysokým štukovaným stropům, zdobeným dveřím, původnímu parketovému podlahovému krytu a prostornému vstupnímu sálu se schodištěm nabízí kouzlo období zakladatelů.
Dům byl v roce 1998 kompletně a s láskou zrenovován majiteli, architektonickým párem, přičemž bylo spojeno to staré s decentními novými, detailně propracovanými prvky.
V přízemí se kromě malé sprchy nachází ještě jedna koupelna a v suterénu pak chodba a úložný prostor. Kuchyň a samostatná místnost pro tým se nacházejí u terasy, která v létě zve k odpočinku.
Zahrada na zadní straně budovy nabízí i z přízemí zelený výhled a je navíc přístupná pomocí venkovního schodiště.
Současní nájemci se rozrostli, a proto prostory bohužel již nestačí. Převzetí části vybavení je možné, stejně tak je případně možné dřívější nastěhování.
Nájemné je uváděno bez DPH; v závislosti na využití budou přičteny zákonné daně z přidané hodnoty.
Prosíme, zašlete nám výstižný dotaz ohledně vašeho záměru. Rád vám odpovím e-mailem nebo vám zavolám zpět.
Nemovitost se nachází centrálně u bonnského hlavního nádraží a je výborně dostupná veřejnou dopravou. Všechny obchody a zařízení každodenní potřeby jsou v docházkové vzdálenosti.
Parametry nemovitosti
| Stáří | Nad 50 let |
|---|---|
| Stav | Dobrý |
| Plocha kanceláře | 143 m² |
| Dostupné od | 1. 9. 2026 |
|---|---|
| Číslo inzerátu | 1014133 |
| Cena za jednotku | 12,24 € / m2 |
Co tato nemovitost nabízí?
| Terasa |
| MHD 1 minuta pěšky |
V okolí nemovitosti najdete
Stále hledáte to pravé?
Nastavte si hlídacího psa. Nabídky vybrané na míru dostanete souhrnně 1× denně e-mailem. S Premium profilem máte k ruce hlídačů rovnou 5 a když se něco objeví, informují vás obratem.


























