Prodej domu 4+1 • 120 m² bez realitkyFärbergasse 5, , Bádensko-Württembersko
Färbergasse 5, , Bádensko-WürttemberskoMHD 2 minuty pěšky • ParkováníMarklerprovisionsfreies Haus in Ettlinger Altstadt
Architektonicky zajímavý městský dům (rok výstavby 1988) s parkovacím místem a terasou – přímo v historickém centru města a v bezprostřední blízkosti pěší zóny a Alb.
Přibližně 120 m² obytné plochy je rozložených do posunutých úrovní se čtyřmi místnostmi a otevřeným mezipodlažím. Přímo u domu se nachází parkovací místo pro automobil – v této centrální poloze starého města je to vzácnost.
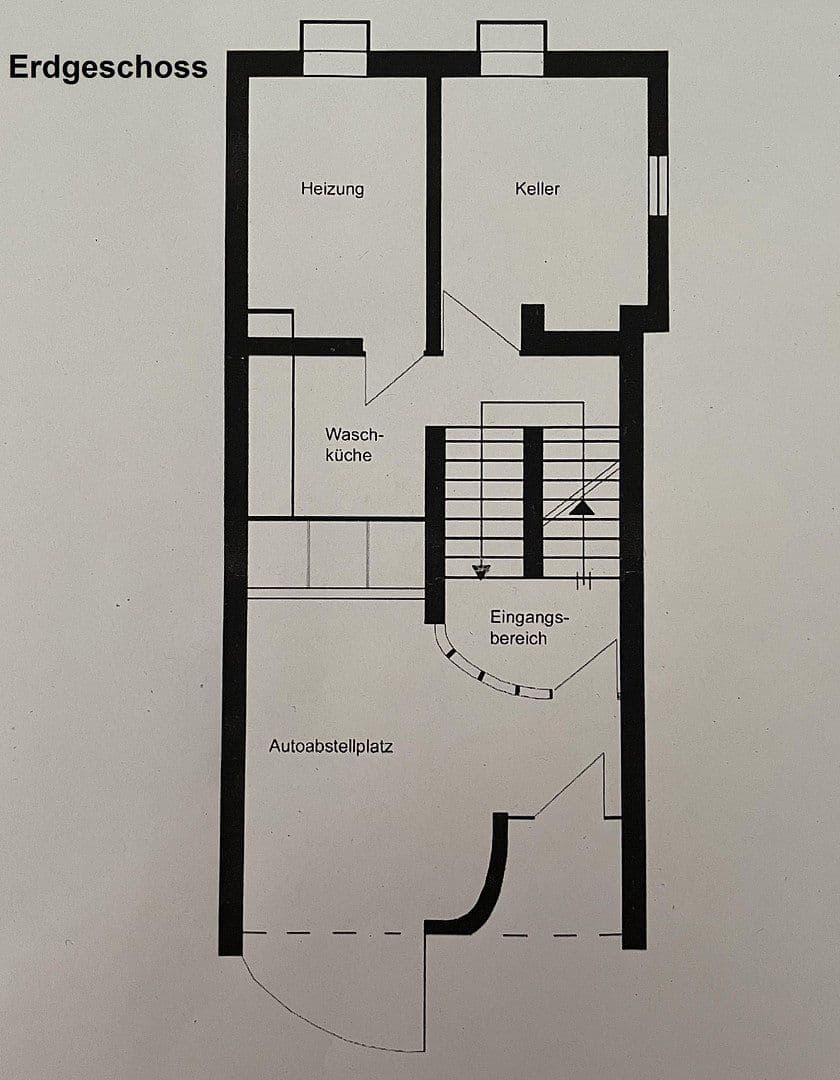
Z vstupní haly se dostanete buď do sklepa s prostorným úložným prostorem a prádelnou, anebo do vyšších pater s obytnými a ložnicovými prostory. Dvě místnosti stejně velké s výhledem do světla nádvoří se hodí jako dětské nebo pracovny. Větší místnost s připojenou toaletou je ideální jako hlavní ložnice.
Otevřený obývací a kuchyňský prostor zaujme dostatkem světla. Švédský krb může – jako doplněk ke konvenčnímu plynovému kondenzačnímu topení – zajistit útulné teplo. Otevřené mezipodlaží a střešní terasa ve vyšších patrech nabízejí další místa pro odpočinek na gauči nebo při slunění.
Nejdůležitější přehled:
• Rok výstavby 1988, cca 120 m² obytné plochy, 4 místnosti, posunutá patra
• Absolutně klidná poloha blízko Alb a historického centra (Färbergasse)
• Dvě stejně velké místnosti vhodné jako dětské či pracovní
• Hlavní ložnice s vlastní toaletou
• Obývací/jídelna s otevřenou kuchyní
• Střešní terasa a otevřené mezipodlaží
• Parkovací místo (pro malé/střední vozidlo) přímo u domu
• Prostorné sklepní místnosti v historické zdivu
• Plynové kondenzační topení z roku 2013 (servisované do roku 2025)
K dispozici ihned, bez provize pro makléře.
Nemovitost se nachází v centrální a přesto velmi klidné lokalitě v historickém centru Ettlingenu. Tržní náměstí, zámek a četné kavárny, restaurace a obchody jsou snadno dostupné pěšky.
Mateřské školy, školy, lékaři a lékárny se nacházejí v bezprostředním okolí. Také možnosti volnočasových a rekreačních aktivit podél Alb a v Horbachparku jsou vzdáleny jen pár minut pěšky.
Velmi dobré napojení na veřejnou dopravu je zajištěno díky blízkým zastávkám autobusů a městské dráhy. Po dálnici B3 a dálnici A5 se dostanete do Karlsruhe a okolních měst během krátké doby.
Energetický štítek z roku 2019 (třída D) je k dispozici a lze si jej při prohlídce prohlédnout.
Všechny informace jsou uvedeny bez záruky. Rádi se přesvědčíte osobně o kvalitách nemovitosti při prohlídce, kde si můžete detailně prohlédnout a prodiskutovat všechny informace.
















