
Pronájem bytu 2+1 • 82 m² bez realitkyErich-Böhmke-Str. 28, , Mecklenburg-Vorpommern
Erich-Böhmke-Str. 28, , Mecklenburg-VorpommernMHD 3 minuty pěšky82 m² s balkonem o rozloze 10 m² | Fleischervorstadt | Energetická účinnost třídy A+ | Podlahové topení | Druhý uživatel
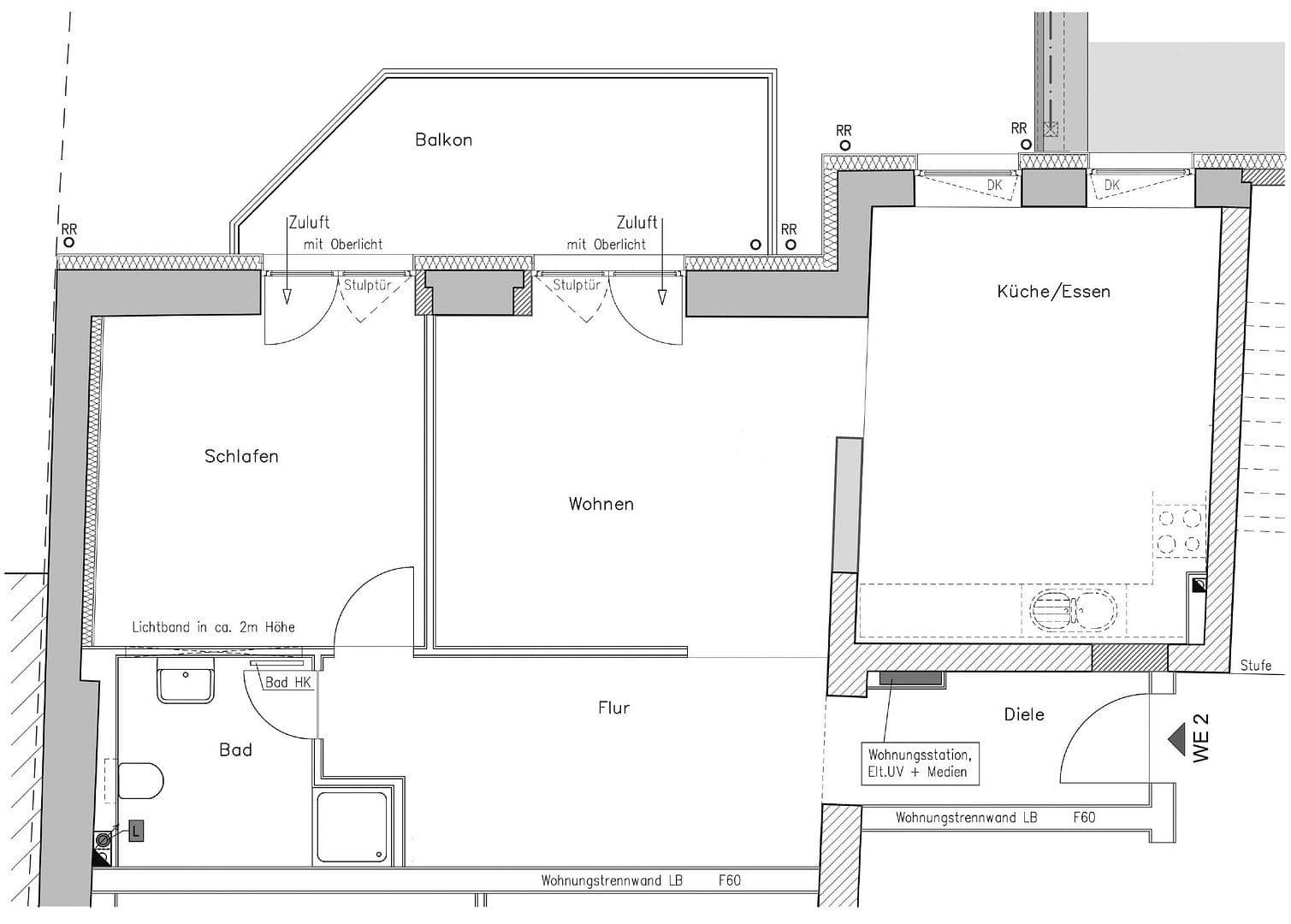
Nabízený loftový byt se nachází ve vyšším přízemí budovy z roku 1900, která byla v roce 2024 kompletně rekonstruována, v oblíbené Fleischervorstadt. Při rekonstrukci bylo kladen důraz na pečlivost a lásku k detailu: původní terazzo parapety oken byly znovu použity, nově vložené ocelové nosníky i omítnuté zdivo vnější stěny zůstaly viditelné. Oddělující místnost mezi otevřenou kuchyní a obývacím pokojem tvoří historické průmyslové okno. Snadno udržovatelný, celoplošně bez pražců polohladký cementový podklad s podlahovým topením zajišťuje příjemné teplo.
Z obývacího i ložnice je vstup na 10 m² velký balkon orientovaný na východ, který poskytuje ranní slunce. Stojaté závěsy od podlahy až ke stropu umožňují úplné zatemnění obývacího pokoje i ložnice. V chodbě pak nástěnná skříň přes celou výšku místnosti nabízí dostatek úložného prostoru a možnost umístit do ní pračku a připojit ji.
Nájemné se skládá následovně:
– Základní nájemné: 984 €
– Provozní náklady 220 €, které zahrnují příplatek za vybavení 80 €
(za vestavěnou kuchyň, nástěnnou skříň v chodbě, zakázkově vyrobené závěsy v obývacím pokoji a ložnici), zálohu na náklady za vytápění 30 € a zálohu na ostatní provozní náklady 200 €.
Perfektní pro jednotlivce a páry.
Bohužel není vhodné pro sdílené byty (uspořádání místností nevyhovuje).
Fleischervorstadt v Greifsvalu je oblíbená, klidná čtvrť s výbornou infrastrukturou a vysokou kvalitou života. Obchody s denními potřebami, stejně jako lékaři a další služby, jsou dobře dostupné. Veřejná doprava i dálková doprava jsou zajištěny, což umožňuje flexibilní pohyb po městě i mimo něj. Nedaleké zelené plochy a blízkost centra nabízejí řadu rekreačních možností.
Byt disponuje nadstandardním vybavením: Vestavěná kuchyň s kvalitními spotřebiči (indukční varná deska značky AEG, trouba značky Bosch, myčka nádobí značky Bosch Silence) byla vyrobena na míru, koupelna nabízí bezbariérovou dešťovou sprchu s termostatem a umyvadlový pult s kovovým rámem a zrcadlem. Světelná lišta u ložnice zajišťuje během dne dostatek světla.
Existuje možnost převzít od předchozí nájemnice za přiměřenou částku retro lednici, televizor s otočným nástěnným držákem, kuchyňský stůl se židlemi, malý psací stůl a osvětlení ve všech místnostech. Podrobnosti lze sjednat při osobním setkání.
V okolí nemovitosti najdete
Stále hledáte to pravé?
Nastavte si hlídacího psa. Nabídky vybrané na míru dostanete souhrnně 1× denně e-mailem. S Premium profilem máte k ruce hlídačů rovnou 5 a když se něco objeví, informují vás obratem.

























