
Prodej domu 4+kk • 105 m² bez realitky, Bavorsko
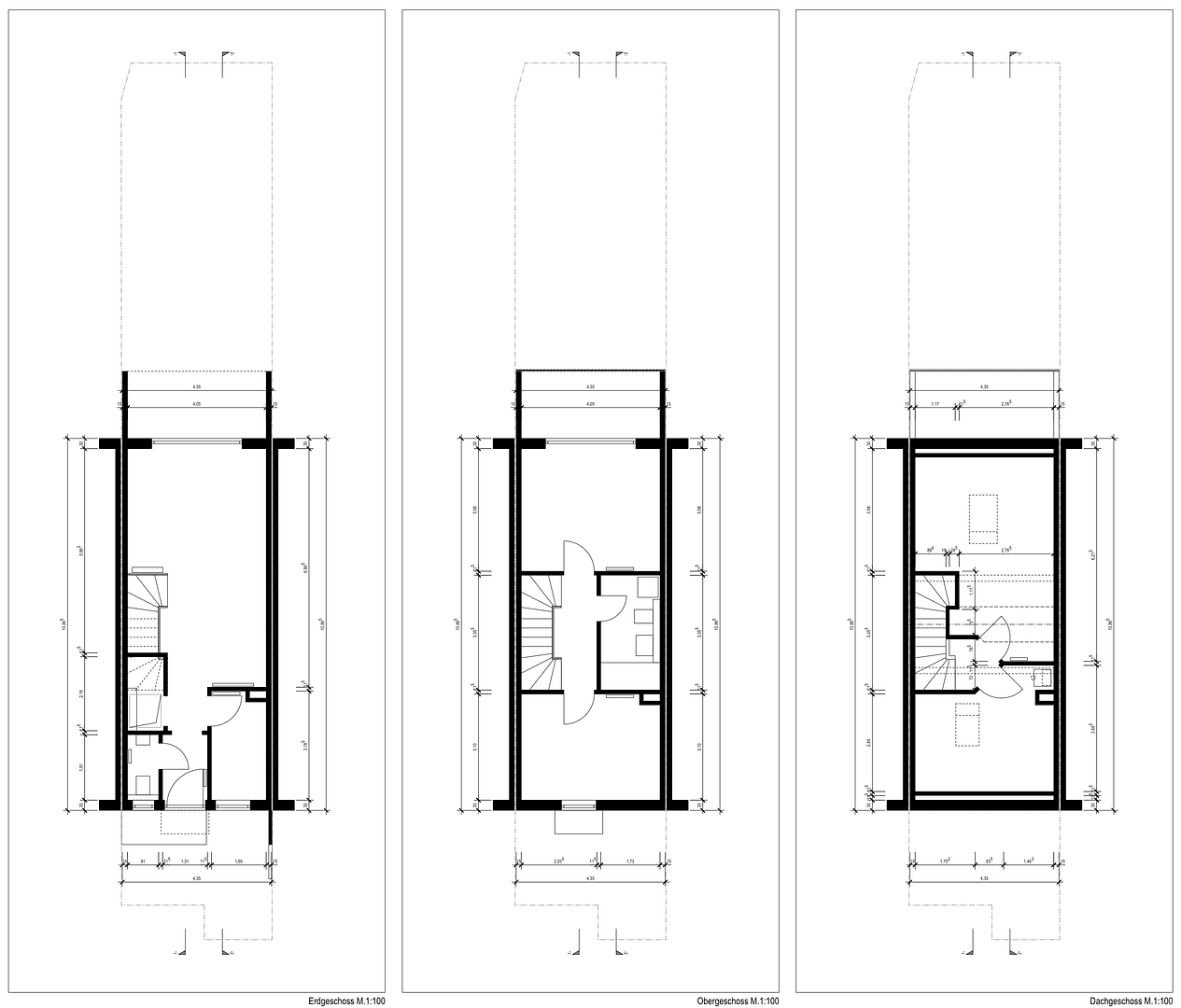
, BavorskoMHD do minuty pěšky • Parkování • GarážCentrálně, avšak klidně situovaný řadový dům se zahrádkou a velkým balkonem. Celková obytná plocha činí 104 m² na pozemku o rozloze 110 m². V přízemí se nachází obývací pokoj s přístupem na terasu a do zahrady, kuchyň, hostinská toaleta a komora.
První patro je rozděleno na dvě ložnice – jedna z nich má velkou prosklenou fasádu a balkon – a vnitřní koupelnu.
V půdním podlaží se nachází prostorná ložnice a další malý pokoj, který využíváme jako pracovnu a pokoj pro hosty.
Sklep není k dispozici, ale je zde místo v zahradní chatě a komoře.
V letech 2024 a 2025 proběhly rozsáhlé rekonstrukce a modernizační práce, takže se můžete nastěhovat bez dalších úprav.
Vnější parkovací místo se nachází přímo za domem a je zahrnuto v kupní ceně. Dále je možné zakoupit podzemní parkovací místo (určené pro dvojité parkování) v přilehlém domě za 15 000 €.
Převzetí nemovitosti může proběhnout k 1. září 2026 nebo dle domluvy.
Dům se nachází v klidné a centrální obytné oblasti v Kemptenu s příjemným sousedstvím. Leží jižně od centra, jen pár kroků od řeky Iller (v blízkosti bývalé Spinnerei). Ulice je slepá, bez průjezdu. Peší zóna je dosažitelná přibližně za 10 minut chůze a k hlavnímu nádraží jste pěšky za méně než 15 minut.
V letech 2024/25 byly provedeny rozsáhlé modernizační práce, mezi něž patří například:
• Nové plynové topení od Viessmann
• Dotažení a obroušení parket s následným novým nátěrem
• Kvalitní linoleum na půdním podlaží
• Nové vchodové dveře
• Nová kuchyň se značkovými spotřebiči (Siemens a Bosch), která je v ceně zahrnuta
• Dvě velká nová střešní okna
• Obnova oddělovacích stěn balkonů
Všechny modernizační práce prováděly místní odborné firmy. Energetický štítek byl vystaven před zahájením rekonstrukčních prací; podle našich aktuálních spotřebních hodnot by byla dosažena energetická třída B.
Cena 569 000 € je minimální cenou v rámci cenového řízení s dolním stropem. Nabídky budou zohledněny pouze po prohlídce nemovitosti a nabídky pod tuto cenu nebudou přijaty.
Dotazy s potvrzeným financováním mají přednost.













