Prodej domu 7+1 • 173 m² bez realitky, Bavorsko
Typ: Samostatně stojící rodinný nebo dvojrodinný dům v strategicky atraktivní lokalitě Teisbach.
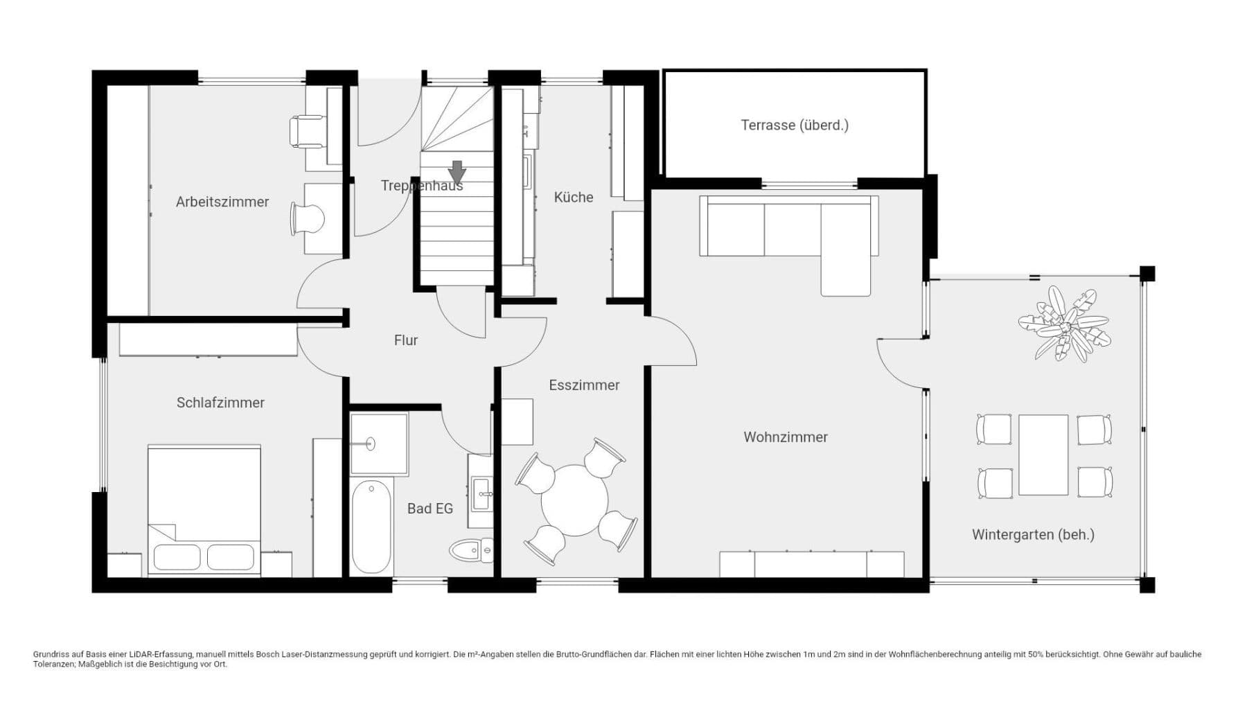
Rozlohy: Přibližně 173 m² obytné plochy a asi 159 m² užitné plochy na prostorném, 1 189 m² velkém svahovém pozemku se soukromou rovinatou částí.
Rozdělení: 7 místností, včetně vyhřívané zimní zahrady (postavené v roce 2004) a dvou koupelen.
Stav a technika: Postaveno v roce 1981, průběžně modernizováno (například koupelna v přízemí, izolace, okna v roce 2014); dům je vybaven fotovoltaickou elektrárnou včetně úložiště a plynovým kondenzačním kotlem.
Zvláštnost: Prodej soukromou osobou bez provize; k dispozici od září/října 2026.
Důležitá poznámka pro zájemce:
Pro další údaje o nemovitosti a kompletní, 29stránkovou expozici využijte, prosím, náš kontaktní formulář. Jednoduše nám zašlete dotaz prostřednictvím tohoto portálu – poté obdržíte automaticky odkaz na formulář a po jeho vyplnění obdržíte podrobný dokument.
Mikrolokace: Idylicky umístěn v historickém jádru Teisbachu na chráněném obytném plateau.
Infrastruktura: Mateřská škola a obecní obchod s pekárnou jsou dosažitelné pěšky pouhých cca 200–300 metrů; základní škola se nachází asi 450 metrů od domu.
Dopravní spojení: Prvotřídní dostupnost BMW továrny v Dingolfing (cca 3–4 km) a dálnice A92 (cca 5–6 minut jízdy).
Mobilita: Městský autobus „Dingo“ zastavuje v dosahové vzdálenosti a nabízí spojení na nádraží v Dingolfing.
Flexibilita: Dům nabízí díky promyšlenému řešení předsálí ve vstupní oblasti možnost snadného rozdělení na dvě samostatné bytové jednotky (ideální pro vícigenerační bydlení nebo částečné pronajímání).
Bývací komfort: Otevřená obývací a jídelní část s kvalitní rohovou lavicí z dubu a přímým vstupem do světlé, vyhřívané zimní zahrady.
Exteriér: Zastřešená zahrada s ovocnými stromy, stromovým domečkem, pavilonem a grilovacím místem na plateau úrovni.
Doplňující prostory: Dům je zcela podkroven s prostorným koníčkovým pokojem (37 m²), dílnou a posilovnou, a dále disponuje dvojgaráží s elektrickými vraty.
















