Pronájem bytu 3+1 • 75 m² bez realitkyauf Anfrage Bad Wiessee Bayern 83707
auf Anfrage Bad Wiessee Bayern 83707MHD 1 minuta pěšky • ParkováníRenovovaný 3-pokojový byt se nachází ve 2. patře / podkroví bytového domu s celkem 7 jednotkami, postaveného v roce 1964.
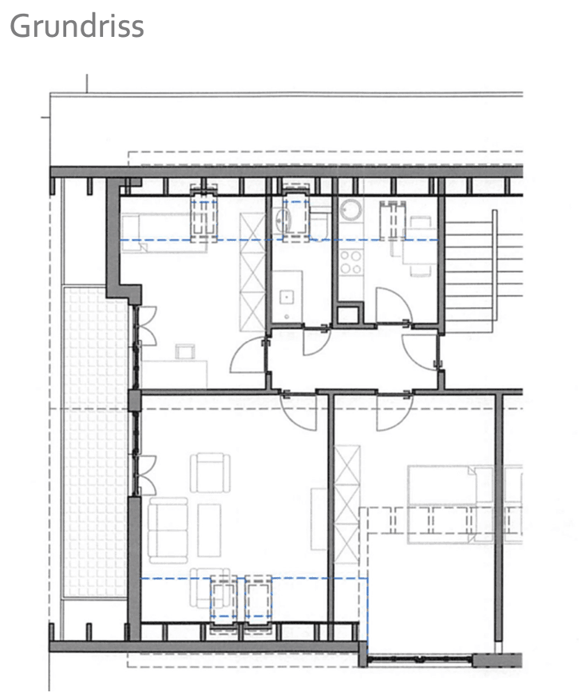
Přes udržované schodiště vstoupíte do prostorné chodby bytu, ze které jsou přístupné všechny místnosti. Díky výšce místnosti alespoň 2,45 m a integrovanému stropnímu osvětlení, v kombinaci s parketovou podlahou a bílými dveřmi, se při vstupu i zavírání dveří okamžitě cítíte uvolněně a jako doma.
Po pravé straně se nachází kuchyň, kde je umístěna plně vybavená vestavěná kuchyňská linka včetně elektrospotřebičů. Díky klasické barevné kombinaci bílých čel a tmavé pracovní desky je kuchyň elegantní a nadčasová.
V koupelně se nachází prostorná sprcha, umyvadlo, záchod a oddělená část s připojením pro malou pračku nebo sušičku.
Přes první ze tří pokojů se dostanete na prostorný západní balkon s nádherným výhledem na hory. Místnost je díky balkonovým dveřím a přilehlým okenním prvkům velmi světlá a může být například využita jako dětský pokoj, pokoj pro hosty nebo kancelář.
Na druhé straně chodby, rovněž s přístupem na balkon, se nachází světlý obývací pokoj, který disponuje navíc dvěma střešními okny a malým oknem v nižší části stropu. Na západním balkoně si můžete užít výhled na hory a večer sledovat západ slunce.
Vedle obývacího pokoje se nachází ložnice, rovněž světlá a útulná, se čtyřmi okny v dormerovém výklenku.
Obec Bad Wiessee, uznávaný lázeňský resort od roku 1922, se nachází na západním břehu jezera Tegernsee, asi 50 km jižně od Mnichova.
Obchody běžné denní potřeby jsou jen kousek od bytu; Lindenplatz v centru Bad Wiessee s dalšími maloobchodníky, poštou, lékárnami apod. je dosažitelný autem za 1 minutu.
Možnosti volnočasových aktivit (tenis, jízda na koni, plachtění, lyžování, turistika, golf apod.) stejně jako nejbližší lesní a loukové stezky jsou prakticky přímo před domem.
Nádraží v Gmundu (bavorské regionální dráhy s napojením na Mnichov, Rosenheim/Salzburg, Schliersee/Neuhaus a Lenggries) lze dorazit autem za 5 minut. Dálniční přípojka v Holzkirchenu (A8) ve směru na Mnichov a Salzburg je vzdálena pouze cca 20 km, tedy asi 30 minut jízdy autem.
Autobusová zastávka, směřující do Gmund nebo Rottach-Egern, se nachází přibližně 100 m od domu.
• Dubové parketové podlahy ve všech obytných i chodbových prostorech
• Kvalitní keramické dlaždice ve sprše a na WC
• Exkluzivní sanitární zařízení a armatury ve sprše a na WC
• Prostorná sprcha
• Vysoce kvalitní vestavěná kuchyňská linka včetně všech elektrospotřebičů
• Nově zrekonstruovaná okna a dveře s trojitým zasklením
• Dodatečná střešní okna
• Bílé, kassettirované místnostní dveře
• Komplexní řešení osvětlení na stěnách a stropě
• Nová elektroinstalace, kabeláž a rozvaděč
• Nové radiátory
V okolí nemovitosti najdete
Stále hledáte to pravé?
Nastavte si hlídacího psa. Nabídky vybrané na míru dostanete souhrnně 1× denně e-mailem. S Premium profilem máte k ruce hlídačů rovnou 5 a když se něco objeví, informují vás obratem.














