Prodej bytu 1+1 • 32 m² bez realitkyŽižkova, Týnec nad Labem - Týnec nad Labem, Středočeský kraj
Žižkova, Týnec nad Labem - Týnec nad Labem, Středočeský krajParkování • Lodžie 5,74 m²Využít program Bydlím hned, koupím později
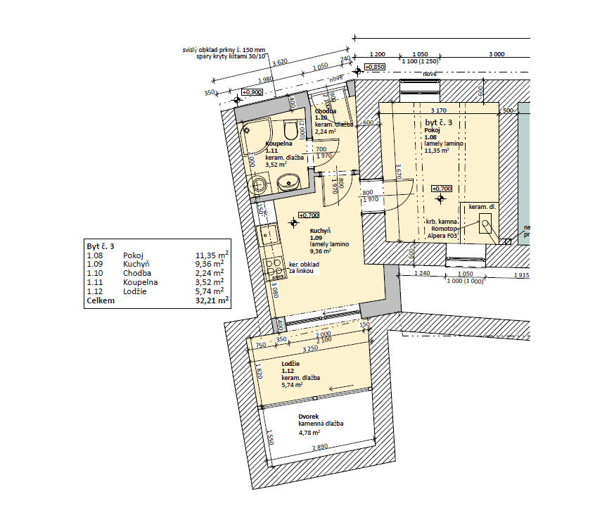
Nabízíme k prodeji útulný 1+1 byt o výměře 32 m², situovaný v přízemí rodinného domu. Nemovitost je v rekonstrukci, což představuje jedinečnou příležitost ji přizpůsobit svým vlastním představám a vkusu. Byt je nabízen v osobním vlastnictví a dosud není zařízen, takže máte možnost zařídit si jej přesně podle svých potřeb. Byt je zcela samostatný, vlastní měření el. energie, tudíž vlastní ohřev vody el. bojlerem a topení tepelným čerpadlem, případně krbovými kamny. Vážným zájemcům je možnost zaslat vizualizace.
Součástí bytu je také lodžie o rozloze 5,74 m², která služebně rozšiřuje obytnou plochu a nabízí prostor pro chvíle odpočinku.
Kontaktujte nás prosím prostřednictvím zpráv na komunikační platformě. Těším se na Vaši nabídku a možnosti společné prohlídky této nemovitosti, která čeká jen na nového majitele, jenž ji promění ve své ideální místo k životu. Na jakékoliv projevy realitních makléřů či kanceláří nebude brán zřetel.
Parametry nemovitosti
| Stáří | 30 - 50 let |
|---|---|
| Stav | V rekonstrukci |
| Dispozice | 1+1 |
| Podlaží | Přízemí |
| Vytápění | Ostatní |
| Vlastnictví | Osobní |
| Rekonstrukce | Kompletní |
| Užitná plocha | 32 m² |
| Cena za jednotku | 57 812,50 Kč / m2 |
| Dostupné od | 31. 8. 2026 |
|---|---|
| Konstrukce budovy | Cihla |
| Vybaveno | Nevybaveno |
| Provedení | Standardní |
| Číslo inzerátu | 1015037 |
| PENB | G - Mimořádně nehospodárná |
| Umístění | Centrum |
| Rizika | Prověřit » |
Vybíráte byt?
Mějte jistotu, že máte všechny důležité informace!
Co tato nemovitost nabízí?
| Parkování |
| Lodžie 5,74 m² |
V okolí nemovitosti najdete
Využít program Bydlím hned, koupím později




