
Pronájem bytu • 71 m² bez realitkyBremerhaven Geestendorf Bremen 27570
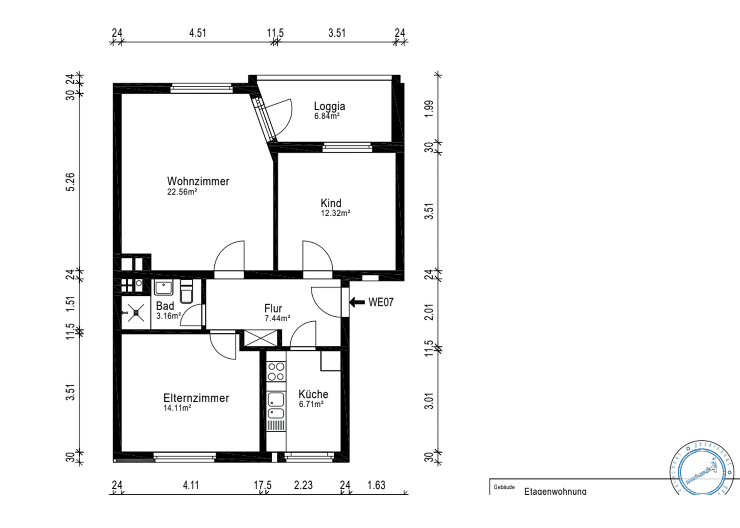
Bremerhaven Geestendorf Bremen 27570MHD 1 minuta pěškyTento světlý 3-pokojový byt ve 3. patře vlevo v udržovaném více rodinném domě zaujme svou praktickou dispozicí a vhodností pro spolubydlení na přibližně 70 m² obytné plochy.
Dispozice je ideální pro spolubydlení, jelikož jsou všechny pokoje dobře řešené a mají samostatný vstup:
• Prostorný obývací pokoj (cca 22,56 m²) – perfektní jako společenská místnost nebo jako velký pokoj pro spolubydlení
• Ložnice (cca 14,11 m²)
• Dětský/pracovní pokoj (cca 12,32 m²) – ideální jako další pokoj pro spolubydlení nebo domácí kancelář
Nabídku místností doplňuje samostatná kuchyně, koupelna a prostorná lodžie, která poskytuje zvýšený komfort bydlení – ideální pro uvolněné večery nebo společné chvíle.
Díky promyšlenému uspořádání je byt výborný pro:
Spolubydlení (2–3 osoby)
Ke bytu dále patří sklep a velký půdní prostor, který nabízí další úložný prostor.
Udržovaný více rodinný dům zahrnuje celkem 8 bytů a vytváří příjemné, snadno ovladatelné sousedství.
Nemovitost se nachází v ulici Kehdinger v oblíbené čtvrti Geestemünde v Bremerhavenu. Lokace je charakteristická centrální a zároveň klidnou atmosférou bydlení. Dřevo přístav, kostel i týdenní trh jsou hned za rohem.
3-pokojový byt ve 3. patře nabízí funkční a osvědčené vybavení, které bylo nedávno kompletně zrekonstruováno:
- Kompletní elektřina 2025
- Nová koupelna 2025
- Nová podlaha a čerstvě zrekonstruované stěny 2025
- S vestavěnou kuchyní
Byt je poprvé k nastěhování po rekonstrukci.
K bytu náleží také velký půdní prostor a sklep.
Prosím, žádné nabídky makléřů!
Parametry nemovitosti
| Stáří | Nad 50 let |
|---|---|
| Vybaveno | Nevybaveno |
| Číslo inzerátu | 1015205 |
| Užitná plocha | 71 m² |
| Dostupné od | 22. 4. 2026 |
|---|---|
| Podlaží | 3. podlaží |
| PENB | D - Méně úsporná |
| Cena za jednotku | 12,68 € / m2 |
Co tato nemovitost nabízí?
| Balkón | |
| Sklep | |
| MHD 1 minuta pěšky |
V okolí nemovitosti najdete
Stále hledáte to pravé?
Nastavte si hlídacího psa. Nabídky vybrané na míru dostanete souhrnně 1× denně e-mailem. S Premium profilem máte k ruce hlídačů rovnou 5 a když se něco objeví, informují vás obratem.









