Prodej bytu 6+1 • 160 m² bez realitkyEmser Str. 76 Berlin Neukölln Berlin 12051
Emser Str. 76 Berlin Neukölln Berlin 12051MHD 4 minuty pěškyNíže naleznete překlad textu označeného XML tagem do češtiny:
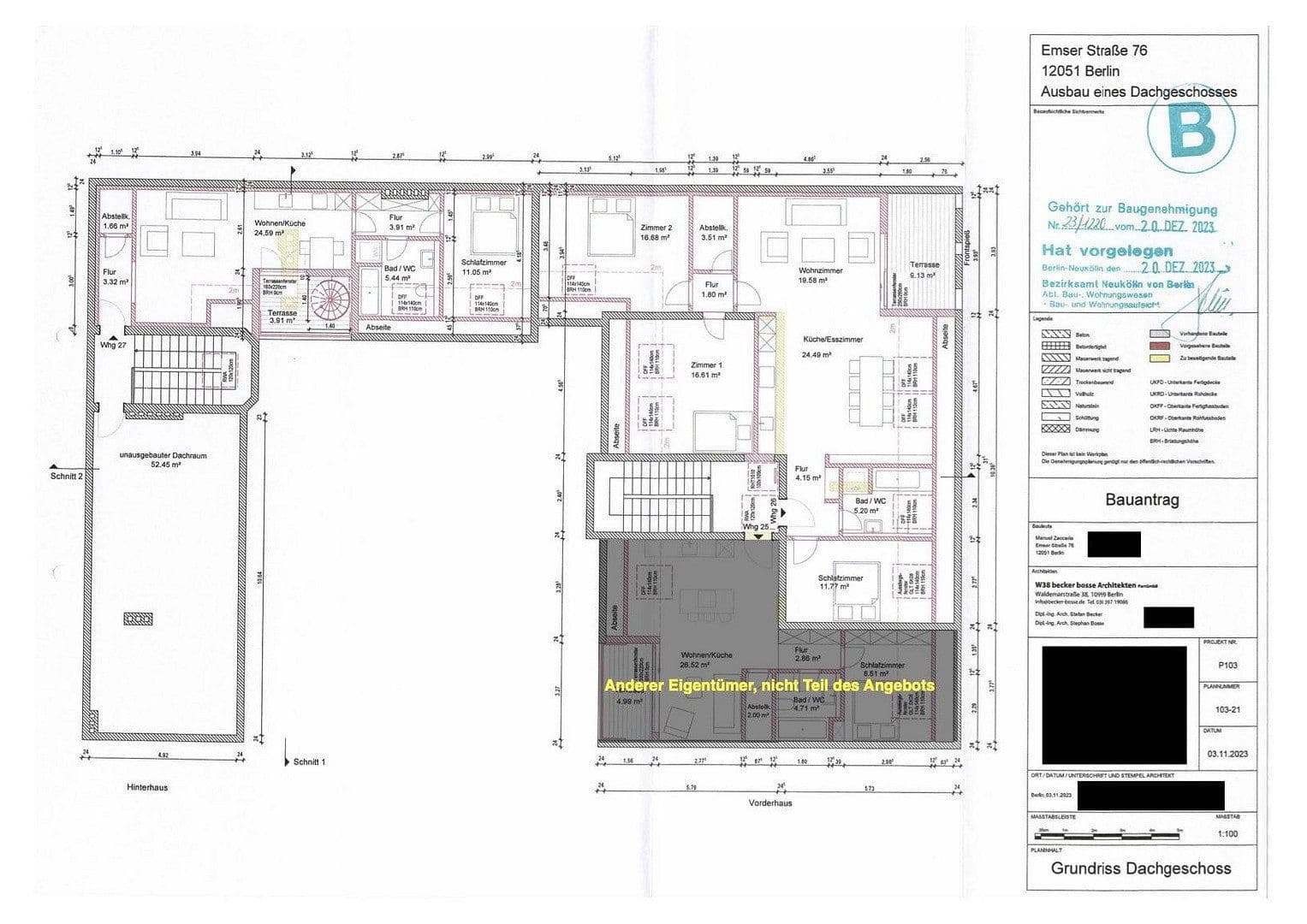
V žádané lokalitě blízko Tempelhofer Feld na vás čeká tento prostorný nedokončený podkrovní prostor o přibližně 200 m², připravený pro vaši vizi. Již je k dispozici platné stavební povolení pro dva podkrovní byty s celkovou obytnou plochou přibližně 160 m² – ideální, pokud chcete začít s realizací co nejdříve.
Podkroví se nachází v udržované historické budově na adrese Emser Straße 76 v berlínském Neuköllnu. Schválení sdružení vlastníků bytů (WEG) již bylo uděleno. V současnosti nechávám upravovat prohlášení o členění a vyhotovují se katastrální výměry pro nové jednotky, takže můžete čerpat z pokročilého stavu projektu.
Anglická verze:
V žádané lokalitě blízko Tempelhofer Feld na vás čeká tento prostorný podkrovní prostor o přibližně 200 m², připravený pro vaši vizi. Platné stavební povolení pro dva podkrovní byty s celkovou obytnou plochou přibližně 160 m² již bylo vydáno – ideální, pokud chcete okamžitě začít s realizací.
Podkroví se nachází v udržované historické budově na adrese Emser Straße 76 v berlínském Neuköllnu. Schválení sdružení vlastníků bytů (WEG) již bylo poskytnuto. V současnosti nechávám upravovat prohlášení o členění a vyhotovují se katastrální zápisy pro nové jednotky, takže můžete využít pokročilý stav projektu.
Emser Straße 76 se nachází v bezprostřední blízkosti Tempelhofer Feld – jednoho z největších městských volných prostranství v Evropě. Tato jedinečná čtvrť vám nabízí přímý přístup ke rozsáhlé ploše určené pro volnočasové aktivity, sport i odpočinek – ideální pro běžce, cyklisty, rodiny a všechny, kteří si přejí kombinovat městský život s přírodou. Veřejná doprava je zde vynikající, městská dálnice je dosažitelná během několika minut a supermarkety, kavárny, restaurace i školky jsou dostupné pěšky. Čtvrť je zároveň klidná i živá – ideální místo pro bydlení i život.
Anglická verze:
Emser Straße 76 se nachází v bezprostřední blízkosti Tempelhofer Feld – jednoho z největších vnitroměstských volných prostorů v Evropě. Tato unikátní lokalita nabízí přímý přístup k rozlehlému areálu pro volnočasové aktivity, sport a rekreaci – ideálnímu pro běžce, cyklisty, rodiny a všechny, kteří chtějí propojit městský život s přírodou. Veřejná doprava je vynikající a městská dálnice dosažitelná během několika minut. Supermarkety, kavárny, restaurace a školky jsou dosažitelné pěšky. Čtvrť je zároveň klidná i pulzující – ideální místo pro bydlení a práci.
Výjimečnosti:
• (Německá verze)
– Stavební povolení je k dispozici – výstavba může začít okamžitě
– Schválení sdružení vlastníků bytů (WEG) bylo uděleno
– Jsou plánovány dva moderní byty s celkovou obytnou plochou přibližně 160 m²
– Prohlášení o členění se momentálně upravuje
– Společné poplatky se začnou platit až po obsazení bytů
– Bez makléřských poplatků – prodej probíhá soukromě
• (Anglická verze)
– Stavební povolení je k dispozici – výstavba může začít okamžitě
– Schválení sdružení vlastníků bytů (WEG) je zatím ve stavu schvalování
– Jsou plánovány dva moderní byty s celkovou obytnou plochou přibližně 160 m²
– Odhad nákladů na výstavbu je k dispozici
– Prohlášení o členění se momentálně upravuje
– Společné poplatky jsou splatné až po obsazení bytů
– Žádné makléřské poplatky – prodej probíhá soukromě
Jako kupující těžíte z pokročilého stavu projektu a nakupujete přímo od vlastníka – bez makléřské provize. Při vážném zájmu vám ráda poskytnu relevantní dokumenty, jako jsou stavební povolení, plány, odhady nákladů či zápisy ze schůzí vlastníků.
Máte zájem? Napište mi prosím – zašlu vám další dokumenty nebo domluvím termín prohlídky.
Anglická verze:
Jako kupující těžíte z dobře rozvinutého projektu a nakupujete přímo od vlastníka – bez makléřské provize. Pokud máte vážný zájem, rád vám poskytnu potřebné dokumenty, jako jsou stavební povolení, plány, odhady nákladů nebo zápisy ze schůzí vlastníků.
Máte zájem? Neváhejte mi napsat – zašlu vám další dokumenty nebo domluvím termín prohlídky.








