Pronájem bytu 3+1 • 91 m² bez realitkySchwaig 5 Ruhpolding Schwaig Bayern 83324
Schwaig 5 Ruhpolding Schwaig Bayern 83324MHD 8 minut pěšky • ParkováníModerní. Udržitelný. Bezbariérový. Bydlení v idylickém lázeňském letovisku.
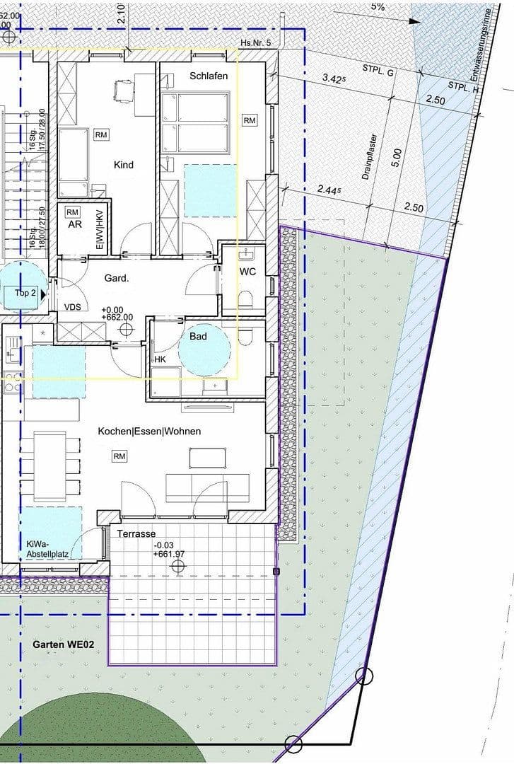
Schwaig 5, Ruhpolding
V architektonicky náročném novostavbě QnG STANDARD na vás čekají kvalitní 3-pokojové byty s balkonem nebo terasou. Byty oslní promyšlenými dispozicemi, moderní technikou a mimořádně udržitelným způsobem výstavby – ověřeno certifikací QNG (certifikační známka udržitelné budovy).
Maximální efektivita – minimální spotřeba
Budova splňuje přísný standard KfW-40 PLUS a je certifikována QNG – to znamená nejvyšší energetickou účinnost, zdravé stavební materiály a ověřeně udržitelné stavění. Takto budete bydlet bezpečně do budoucna, komfortně a zároveň šetřit náklady.
Bydlení v Ruhpoldingu – v těsném kontaktu s přírodou,
kde jiní tráví dovolenou!
Schwaig 5 nabízí klidné bydlení s krátkými cestami ke všem obchodům, lékařům, školám a veřejné dopravě. Chiemsee Alpy jsou doslova za dveřmi – ideální pro všechny, kteří mají rádi blízký kontakt s přírodou.
⸻
Nyní pronajměte a nastěhujte se!
První bydlení – kvalitní, energeticky účinné, bezbariérové
Domluvte si termín prohlídky – těšíme se na vás!
Přehled výhod vašeho bydlení
• 3-pokojové byty s terasou nebo balkonem
• Venkovní parkovací stání
• Bezbariérové přístupy do domu a mnoho bezbariérových bytů
• Ekologicky postavené – bez škodlivin a udržitelné
• Certifikováno QNG: ověřeno podle nejvyšších standardů udržitelnosti
• Podlahové topení a kvalitní tepelná izolace
• Ventilace obytných prostor s rekuperací tepla
• Tepelné čerpadlo a inteligentní energetické řízení
• Příprava pro wallbox pro elektromobilitu
• Elektricky ovládané rolety
• K dispozici stání pro jízdní kola
V okolí nemovitosti najdete
Stále hledáte to pravé?
Nastavte si hlídacího psa. Nabídky vybrané na míru dostanete souhrnně 1× denně e-mailem. S Premium profilem máte k ruce hlídačů rovnou 5 a když se něco objeví, informují vás obratem.









